ISTRIENS GEHEIMTIPP FÜR ANSPRUCHSVOLLE: GARTENKUNST, POOLLUXUS UND EIN HAUS MIT SEELE
Lage & Außenbereich
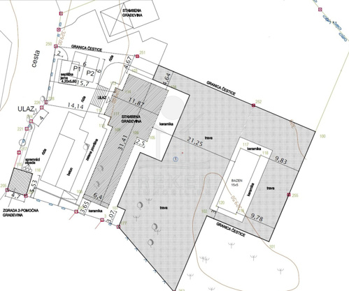
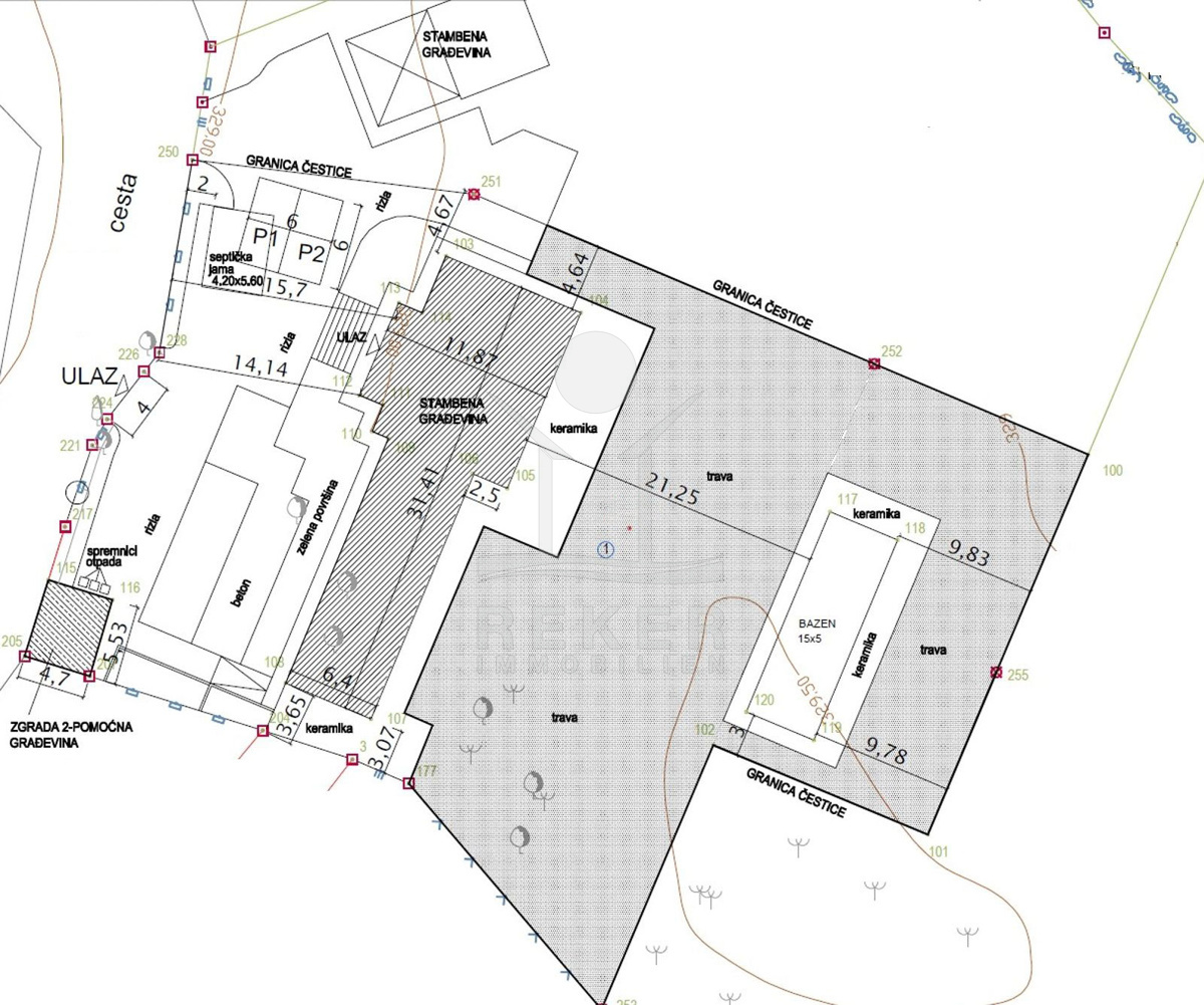
Zwischen Kanfanar und Svetvinčenat, eingebettet in die friedliche Hügellandschaft Istriens, liegt diese beeindruckende Villa auf einem über 6.000 m² großen Grundstück. Hier wohnen Sie in absoluter Ruhe und doch sind Sie in nur 20 Minuten in Rovinj. Die Zufahrt ist asphaltiert, das Gelände von einer traditionellen Steinmauer umgeben. Ein motorisiertes Einfahrtstor sorgt für Sicherheit und Komfort. Der großzügige Vorplatz bietet viel Raum – auch für mehrere Fahrzeuge. Die Umgebung: ländlich, grün, herrlich mediterran.
Im Garten kommt sofort Urlaubsgefühl auf: Die Fläche ist liebevoll gestaltet, mit Oleander, Zypressen, Lavendel und gepflegtem Rasen. Ein Highlight ist der große Skimmer-Pool (15 x 5 m) mit gefliestem Sonnendeck – ideal für entspannte Sommertage. Direkt daneben die große Terrasse mit Pergola, Sitzplätzen und Sonnenliegen – perfekt für lange Abende im Freien. Ein kleines Boccia-Feld ergänzt das Angebot. Das separate Nebengebäude fügt sich harmonisch in den Garten ein und bietet Platz für Gäste. Automatische Bewässerung, Tröpfchensystem und Außenbeleuchtung machen das Gesamtbild rund.
Innenraum & Interieur
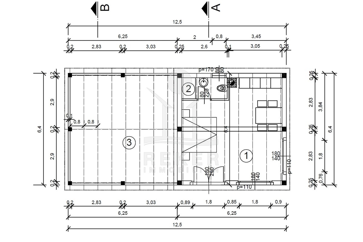
Innen setzt sich der hohe Standard fort. Im Erdgeschoss erwartet Sie ein großzügiger Wohnbereich mit Kamin, viel Tageslicht und direktem Zugang zur Terrasse. Die offene Küche in heller Holzoptik ist modern und funktional – hier kocht man gern auch für Gäste. Zwei Schlafzimmer mit eigenen Bädern bieten Privatsphäre. Dazu kommen ein Arbeitszimmer, Gäste-WC, Speisekammer und Waschküche. Im Obergeschoss finden Sie drei weitere Schlafzimmer, alle mit eigenem Bad – eines davon mit Ankleide und Zugang zur überdachten Terrasse mit Blick in den Garten. Ein weiteres Zimmer mit Schlafmöglichkeiten für sechs Personen rundet das Angebot ab. Auch hier: hochwertige Böden, Maßmöbel, viel Licht. Technisch ist alles auf dem neuesten Stand: Klimaanlage, Daikin-Wärmepumpen, Belüftungssystem, Videoüberwachung, SAT-TV. Viele Möbel sind im Kaufpreis enthalten.
Die Villa erwartet Sie in Svetvinčenat!
- Ort: Svetvinčenat (Dorf)
- Einwohnerzahl: 2.202 (2011)
- Region: Istrien
- Autobahnentfernung: ca. 9 km *
- Nächster Flughafen: Pula / ca. 27 km *
Immobiliendaten
- Objektart: Haus
- Objekttyp: Villa
- Baujahr: 2018
- ID: 8996
- Kaufpreis: 1.800.000 €
- Provision: 3,75 % inkl. MwSt. in Kroatien
- Grundstücksgröße: 6133 m²
- Wohnfläche: 428 m²
- Anzahl Zimmer: 7
- Anzahl Schlafzimmer: 6
- Anzahl Badezimmer: 6
- Land: Kroatien
- Region: Istrien
- Ort: Svetvinčenat
- Lage: Ortslage
- Meerentfernung: 21 m
Haben Sie Interesse die schöne Villa zu besitzen?
Nehmen Sie gerne Kontakt mit mir auf!
Ich bin Heiner Reker, Gründer und
Geschäftsführer von Reker Immobilien d.o.o. Ich begleite Sie bei Ihrer aufregenden Reise in die Welt der Immobilien in Kroatien.
Gerne organisiere ich persönlich mit meinen qualifizierten Partnern jeden Schritt bei Ihrem rechtssicheren und stressfreien Immobilienkauf in Kroatien.
Füllen Sie das Formular aus und ich melde mich gerne zum gewünschten Zeitpunkt bei Ihnen.
Bis bald
Exposé mitnehmen?
Laden Sie unser PDF-Exposé herunter und Sie haben die wichtigste Objektdaten & Bilder immer zur Hand
Exposé mitnehmen?
Nehmen Sie Kontakt mit uns auf, ein Exposé schicken wir gerne per E-Mail
Ihre Traum-Immobilie noch nicht gefunden?
Besuchen Sie diese Seiten!


































































