VILLA IM ROHBAU MIT MEERBLICK UND 32 M² POOL IN GREBAŠTICA
Lage & Außenbereich
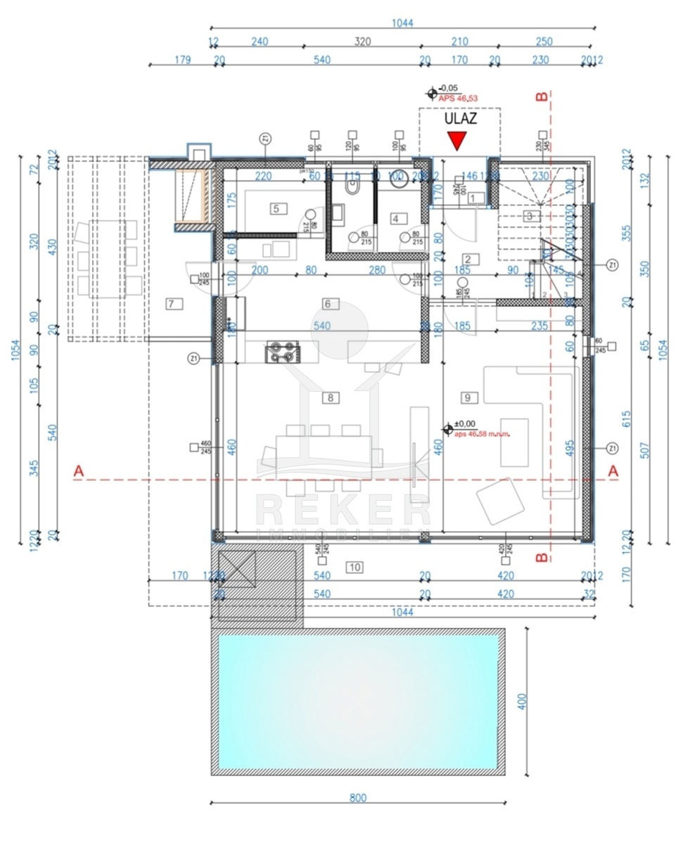
In Grebaštica entsteht eine moderne Villa in grüner Umgebung mit schönem Meerblick. Das Meer ist nur 700 m Luftlinie entfernt. Zum Außenbereich gehören ein überdachter Bereich und Stellplätze. Besonders spannend ist der aktuelle Stand des Projekts. Verkauft wird die Villa bis zum Abschluss des Rohbaus. Fundament, Wände und Flachdach sind bereits fertig. Auch die Installationen für Strom sowie Zu- und Abfluss wurden schon ausgeführt. Die Anschlüsse für Versorgung und Strom sind im Preis enthalten. Sämtliche Unterlagen sind vollständig vorhanden, darunter Eigentumsurkunde, Baugenehmigung und Bauantrag. Der Preis ist verhandelbar. Außerdem können Sie das Haus auch schlüsselfertig erwerben.
Das Grundstück umfasst 560 m². Vorgesehen ist ein Swimmingpool mit 8 x 4 m. Dazu kommt eine große Terrasse. Sie erweitert den Außenbereich sinnvoll und nimmt den Blick in die grüne Umgebung schön auf. So entsteht eine ausgewogene Verbindung aus Freiraum, Aufenthaltsqualität und Privatsphäre. Ein Plus für viele Lebensmodelle.
Innenraum & Interieur
Auf zwei Ebenen, Erdgeschoss und 1. Obergeschoss, stehen Ihnen 267 m² Nettowohnfläche zur Verfügung. Im Erdgeschoss erwartet Sie ein großes Wohnzimmer mit Küche sowie ein WC. Im Obergeschoss sind drei Schlafzimmer geplant. Jedes Zimmer verfügt über ein eigenes Bad. Eine große Terrasse ergänzt diese Etage. Die Aufteilung trennt den Wohnbereich klar von den privaten Zimmern. Das sorgt für Komfort im Alltag und macht das Haus auch für Aufenthalte mit Familie oder Gästen sehr interessant.
Die Villa erwartet Sie in Grebaštica!
- Ort: Grebaštica (Dorf)
- Einwohnerzahl: 937 (2011)
- Region: Dalmatien-Sibenik
- Autobahnentfernung: ca. 18 km *
- Nächster Flughafen: Split / ca. 50 km *
Immobiliendaten
- Objektart: Haus
- Objekttyp: Villa
- Baujahr: 2026
- ID: 9690
- Kaufpreis: 380.000 €
- Provision: 3,75 % inkl. MwSt. in Kroatien
- Grundstücksgröße: 560 m²
- Wohnfläche: 267 m²
- Anzahl Zimmer: 4
- Anzahl Schlafzimmer: 3
- Anzahl Badezimmer: 3
- Land: Kroatien
- Region: Dalmatien-Sibenik
- Ort: Grebaštica
- Meerentfernung: 700 m
Haben Sie Interesse die schöne Villa zu besitzen?
Nehmen Sie gerne Kontakt mit mir auf!
Ich bin Heiner Reker, Gründer und
Geschäftsführer von Reker Immobilien d.o.o. Ich begleite Sie bei Ihrer aufregenden Reise in die Welt der Immobilien in Kroatien.
Gerne organisiere ich persönlich mit meinen qualifizierten Partnern jeden Schritt bei Ihrem rechtssicheren und stressfreien Immobilienkauf in Kroatien.
Füllen Sie das Formular aus und ich melde mich gerne zum gewünschten Zeitpunkt bei Ihnen.
Bis bald
Exposé mitnehmen?
Laden Sie unser PDF-Exposé herunter und Sie haben die wichtigste Objektdaten & Bilder immer zur Hand
Exposé mitnehmen?
Nehmen Sie Kontakt mit uns auf, ein Exposé schicken wir gerne per E-Mail
Ihre Traum-Immobilie noch nicht gefunden?
Besuchen Sie diese Seiten!













