EXKLUSIVES WOHNERLEBNIS: LUXUSVILLA MIT PRIVATEM POOL, WELLNESS & SPA RESORT
Einzigartiges Luxusressort in Bilice
Die Luxusvilla liegt nur 1 km vom Meer entfernt und fügt sich harmonisch in die unberührte Natur von Bilice ein. Die ruhige Umgebung und die malerischen Buchten und Strände in der Nähe bieten eine entspannte Lebensweise, während das Zentrum des Ortes bequem erreichbar ist. Bilice, ein kleiner Ort im Landkreis Sibenik-Knin, besticht durch seine natürliche Schönheit und seine Nähe zu touristischen Attraktionen wie der Altstadt von Sibenik, dem Krka-Nationalpark, Skradin und dem Nationalpark Kornati. Die Gemeinde selbst lockt mit 24 kleinen Buchten und 4 Stränden, die zur Erholung und Entspannung einladen. Während der Sommersaison finden hier traditionelle Feste und Veranstaltungen statt, die Besucher aus aller Welt anziehen. Diese außergewöhnliche Villa bietet nicht nur luxuriöses Wohnen, sondern auch einen Zugang zu unvergleichlichen Naturerlebnissen und kulturellen Highlights.
Ein Paradies für Luxusliebhaber
Das Anwesen erstreckt sich auf einem 436 m² Grundstück mit 211 m² Wohnfläche auf 2 Etagen. Die geplante Fertigstellung im Sommer 2025 verspricht modernste Ausstattungsmerkmale wie Video-Gegensprechanlage, Sicherheitstechnik, Smart-Home-System, Fußbodenheizung und Klimaanlage. Ein Ort, der ultimativen Luxus und Komfort bietet, um den Bewohnern ein unvergleichliches Wohnerlebnis zu bescheren.
Die großzügige, überdachte Terrasse der Luxusvilla bietet einen malerischen, privaten Poolbereich, der dazu einlädt, die herrliche Umgebung zu genießen und unter freiem Himmel zu entspannen. Dieser exklusive Außenbereich ist der ideale Rückzugsort, um das luxuriöse Wohnambiente in vollen Zügen zu erleben. Mit zwei Parkplätzen ist auch für praktische Parkmöglichkeiten gesorgt, um das Leben in dieser Traumvilla noch angenehmer zu gestalten.
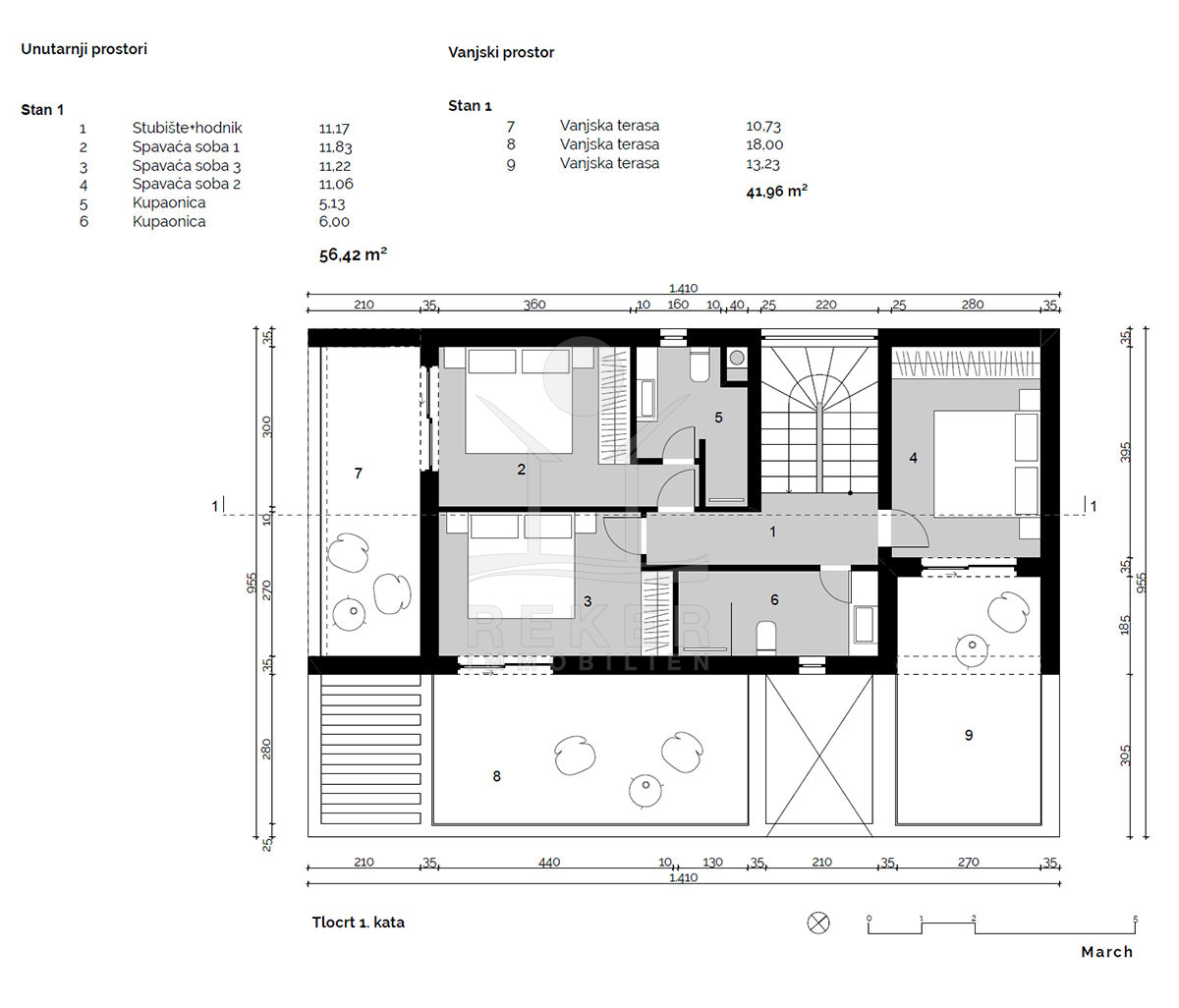
Willkommen in einem luxuriösen Zuhause, das keine Wünsche offen lässt. Im Erdgeschoss erwartet Sie ein großzügiger Eingangsbereich, ein offenes Konzept mit Ess- und Wohnraum, eine moderne Küche, ein Gäste-WC und Zugang zur Außenterrasse mit einem wunderschönen Garten und einem erfrischenden Pool. Eine interne Treppe führt Sie in das Obergeschoss mit drei Schlafzimmern, mit zwei Bädern und Terrassen, die einen herrlichen Ausblick bieten und Entspannung versprechen.
Als Bewohner profitieren Sie von einem umfassenden Serviceangebot, darunter Überwachung der Vermietung, Wartungsdienstleistungen, Rezeption und Immobilienvermietungsservices. Der luxuriöse Spa-Bereich mit Innenpool, Sauna, Fitnessstudio und Tennisplatz sorgt für zusätzlichen Komfort und Entspannung.
Mit neuen Bootsliegeplätzen im Hafen von Bilice und einem geplanten Golfplatz mit Hotel, Restaurants, Cafés und Hafen in Proklejan bietet diese Immobilie großes Potenzial für eine hohe Auslastung und langfristige Wertsteigerung.








Die Immobilie
- Villa in Bilice, Dalmatien-Sibenik
- Baujahr: 2025
- Zustand: Erstbezug
- Wohnfläche: 211 m² – Grundstücksgröße: 436 m²
- Etagenzahl: 2
- Überdachte Terrasse
Mediterraner Garten
- Beheizter Pool
Ausstattung
- Anzahl Zimmer: 4
- Anzahl Schlafzimmer: 3
- Anzahl Badezimmer: 2
- Heizung: Fußbodenheizung, Klimaanlage
- Sicherheit: Video-Gegensprechanlage, Sicherheitstür, Smart-Home-System
Immobiliendaten
- Objektart: Haus
- Objekttyp: Villa
- Baujahr: 2025
- ID: 6814
- Kaufpreis: 599.000 €
- Provision: 3,75 % inkl. MwSt. in Kroatien
- Grundstücksgröße: 436 m²
- Wohnfläche: 211 m²
- Anzahl Zimmer: 4
- Anzahl Schlafzimmer: 3
- Anzahl Badezimmer: 2
- Land: Kroatien
- Region: Dalmatien-Sibenik
- Ort: Bilice
- Meerentfernung: 1 km
- Ortsmitte: 2 km
Haben Sie Interesse die schöne Villa zu besitzen?
Nehmen Sie gerne Kontakt mit mir auf!
Ich bin Heiner Reker, Gründer und
Geschäftsführer von Reker Immobilien d.o.o. Ich begleite Sie bei Ihrer aufregenden Reise in die Welt der Immobilien in Kroatien.
Gerne organisiere ich persönlich mit meinen qualifizierten Partnern jeden Schritt bei Ihrem rechtssicheren und stressfreien Immobilienkauf in Kroatien.
Füllen Sie das Formular aus und ich melde mich gerne zum gewünschten Zeitpunkt bei Ihnen.
Bis bald
Exposé mitnehmen?
Laden Sie unser PDF-Exposé herunter und Sie haben die wichtigste Objektdaten & Bilder immer zur Hand
Exposé mitnehmen?
Nehmen Sie Kontakt mit uns auf, ein Exposé schicken wir gerne per E-Mail
Ihre Traum-Immobilie noch nicht gefunden?
Besuchen Sie diese Seiten!



























