LEBEN SIE DEN MEDITERRANEN LIFESTYLE: STEINHAUS-VILLA MIT BEHEIZTEM POOL IN DER NÄHE VON POREČ
Exklusives Wohnen in der Nähe von Poreč
Die attraktive Villa befindet sich in einer kleinen istrischen Stadt, nur 14 km vom pulsierenden Zentrum von Poreč und den traumhaften Stränden entfernt. Die Region Poreč im Nordwesten Istriens gilt als eine der Perlen Kroatiens und bietet eine Vielzahl an kulturellen und Freizeitaktivitäten. In der Nähe der Villa befinden sich Restaurants und ein Geschäfte für den täglichen Bedarf. Die Umgebung ist grün und ländlich geprägt, perfekt für Naturliebhaber und Ruhesuchende. Poreč selbst beeindruckt mit Sehenswürdigkeiten wie der Euphrasia Basilika (UNESCO-Weltkulturerbe) und einem vielseitigen Tourismusangebot. Die mit der "Blauen Flagge" ausgezeichneten Strände laden zum Entspannen und Baden ein, während kulturelle Veranstaltungen und ein lebhaftes Nachtleben für Abwechslung sorgen. Genießen Sie die Gastfreundschaft der Einheimischen und entdecken Sie die vielseitigen Möglichkeiten, die Poreč und die Umgebung zu bieten haben.
Die attraktive Villa begeistert auf einem 850 m² großen Grundstück mit einem weitläufigen, automatisch bewässerten Garten. Das zweistöckige Gebäude mit 190 m² Wohnfläche wurde 2022 erbaut und besticht durch eine moderne Ausstattung, darunter Fußbodenheizung und Klimaanlagen mit Wärmepumpe für ganzjährigen Komfort. Stellplätze auf dem Grundstück bieten praktische Parkmöglichkeiten für Bewohner und Gäste.
Die überdachte Terrasse der Villa lädt zum Verweilen ein und führt zum beheizten Pool, der an warmen Tagen eine erfrischende Abkühlung verspricht. Eine Außendusche ergänzt das Angebot, um sich nach dem Schwimmen frisch zu machen. Diese luxuriöse Villa bietet dank ihres großzügigen Außenbereichs und des modernen Designs eine perfekte Umgebung, um die warmen Tage im Freien zu genießen.
Luxus pur - Möblierte Villa zum Verlieben
Diese traumhafte Villa wird komplett möbliert verkauft und bietet luxuriösen Wohnkomfort auf höchstem Niveau. Im Erdgeschoss erwartet Sie ein offener Wohn-, Ess- und Küchenbereich, ein Schlafzimmer, ein Badezimmer, ein Abstellraum, ein Hauswirtschaftsraum und ein WC. Zudem haben Sie Zugang zur überdachten Terrasse.
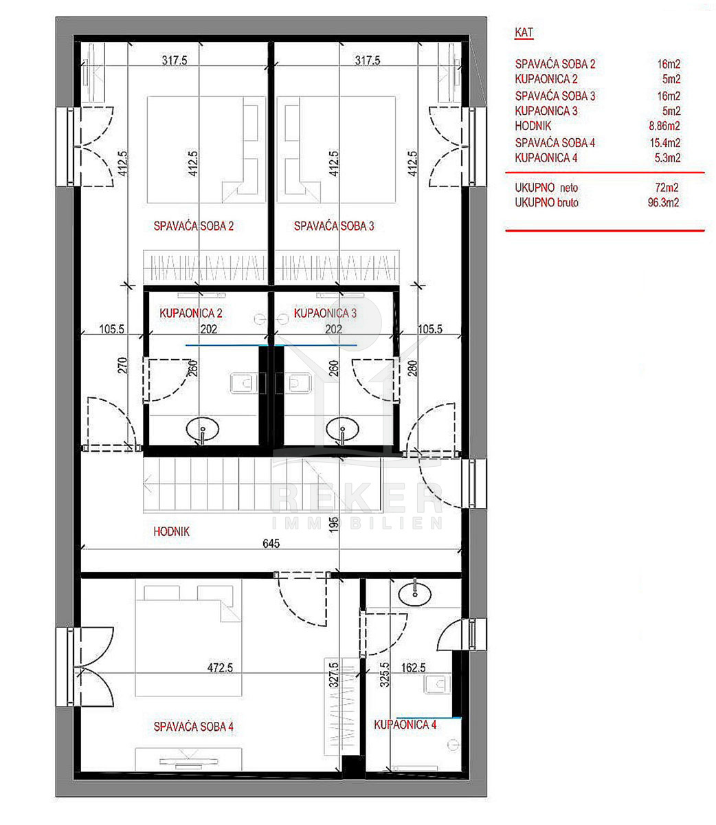
Eleganz im Obergeschoss
Im ersten Stock der Villa befinden sich zwei weitere großzügige Schlafzimmer und zwei luxuriöse Badezimmer. Die Inneneinrichtung besticht durch Eleganz und Stil, sodass Sie sich vom ersten Moment an wie zu Hause fühlen.
Die Villa erwartet Sie in Poreč!
Die Stadt ist wegen der guten Lage und des umfangreichen Tourismusangebots mehrfach ausgezeichnet worden. Sie ist eine der bedeutendsten Küstenstädte an der Westküste der Halbinsel Istrien in Kroatien.
- Ort: Poreč (Stadt)
- Einwohnerzahl: 16.696 (2011)
- Region: Istrien
- Autobahnentfernung: ca. 10 km *
- Nächster Flughafen: Pula / ca. 56 km *
Immobiliendaten
- Objektart: Haus
- Objekttyp: Villa
- Baujahr: 2022
- ID: 7106
- Kaufpreis: 781.250 €
- Provision: 3,75 % inkl. MwSt. in Kroatien
- Grundstücksgröße: 800 m²
- Wohnfläche: 190 m²
- Anzahl Zimmer: 5
- Anzahl Schlafzimmer: 4
- Anzahl Badezimmer: 4
- Land: Kroatien
- Region: Istrien
- Ort: Poreč
- Lage: Ortslage
- Meerentfernung: 14 km
Haben Sie Interesse die schöne Villa zu besitzen?
Nehmen Sie gerne Kontakt mit mir auf!
Ich bin Heiner Reker, Gründer und
Geschäftsführer von Reker Immobilien d.o.o. Ich begleite Sie bei Ihrer aufregenden Reise in die Welt der Immobilien in Kroatien.
Gerne organisiere ich persönlich mit meinen qualifizierten Partnern jeden Schritt bei Ihrem rechtssicheren und stressfreien Immobilienkauf in Kroatien.
Füllen Sie das Formular aus und ich melde mich gerne zum gewünschten Zeitpunkt bei Ihnen.
Bis bald
Exposé mitnehmen?
Laden Sie unser PDF-Exposé herunter und Sie haben die wichtigste Objektdaten & Bilder immer zur Hand
Exposé mitnehmen?
Nehmen Sie Kontakt mit uns auf, ein Exposé schicken wir gerne per E-Mail
Ihre Traum-Immobilie noch nicht gefunden?
Besuchen Sie diese Seiten!
































