STEINHAUS IN TOPLAGE VON VODICE: MIT 2 PARKPLÄTZEN, 1 LADENGESCHÄFT & DACHTERRASSE
Zentrale Lage in der malerischen Küstenstadt Vodice
Das Steinhaus befindet sich in erstklassiger Lage, nur etwa 150 Meter vom kristallklaren Meer entfernt. In der lebhaften Küstenstadt Vodice, zwischen Sibenik und Biograd na Moru, erleben Sie das ursprüngliche kroatische Lebensgefühl hautnah. Die historische Altstadt und die geschäftige Uferpromenade sind bequem fußläufig erreichbar, wo zahlreiche Geschäfte, Cafés und Restaurants mit köstlichen Spezialitäten der dalmatinischen Küche auf Sie warten – oft mit einem traumhaften Blick auf die Marina. Für Ihren täglichen Bedarf stehen in der unmittelbaren Nähe Banken, Supermärkte und ein Kino zur Verfügung, was Ihnen den Alltag erleichtert.
Der beliebte Strand Plava Plaza, bekannt für seinen flach ins Wasser abfallenden Kieselstrand, ist besonders familienfreundlich und perfekt für entspannte Tage am Meer. An heißen Sommertagen laden zahlreiche Eisdielen und Bars dazu ein, sich mit erfrischenden Getränken und italienischem Cappuccino verwöhnen zu lassen. Die Umgebung und die Uferpromenade bieten über 4 Kilometer Möglichkeiten für Sport und Freizeit, sodass Langeweile am Strand keine Chance hat. Erkunden Sie die malerischen Buchten rund um Vodice oder machen Sie einen Ausflug in den beeindruckenden Nationalpark Krka mit seinen außergewöhnlichen Wasserfällen, nur etwa 15 km entfernt. Mit der optimalen Anbindung haben Sie auch die Möglichkeit, die Nationalparks Kornati und Krka oder die malerischen Inseln der Region zu erkunden. Genießen Sie das Leben in Vodice, wo jeder Tag ein neues Abenteuer bereithält!
Das Anwesen bezaubert mit einer durchdachten Aufteilung über 3 Etagen und einer Wohnfläche von 152 m². Nach der letzten Modernisierung im Jahr 2021 erstrahlt das Anwesen in frischem Glanz und bietet zeitgemäßen Komfort, ohne den traditionellen Charakter des Hauses zu verlieren. Ausgestattet mit einer effizienten Klimaanlage, modernen Sanitäranlagen und hochwertigen Fußböden trifft zeitgenössische Ästhetik auf gemütliche Behaglichkeit. Zu dieser charmanten Immobilie gehören, was unschätzbarer Wert und Vorteil dieser Immobilie ist, 2 Pkw-Parkplätze, die für zusätzlichen Komfort sorgen.
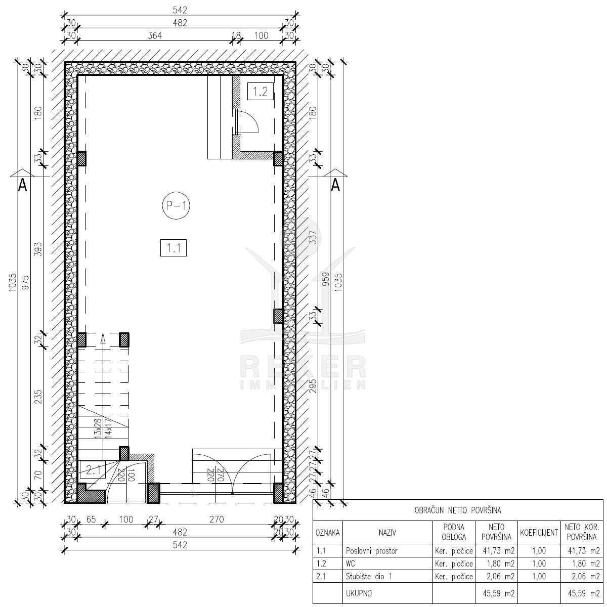
Ein besonderes Merkmal des Hauses ist die 46 m² große Laden-/Geschäftsfläche, die vielseitig genutzt werden kann. Ob für eigene geschäftliche Zwecke oder zur Vermietung, dieser Raum bietet zahlreiche Möglichkeiten für eine individuelle Anpassung.
Vielseitiges Steinhaus mit unendlichem Potenzial
Das Steinhaus wird inklusive Möbeln verkauft und bietet Ihnen zahlreiche Gestaltungsmöglichkeiten. Das Untergeschoss beeindruckt mit 46 m² Fläche und verfügt über einen separaten Eingang. Es ist ideal für eine Laden-/Geschäftsnutzung – dank der vorhandenen Küchenanschlüsse und einem WC sind Ideen wie eine Taverne, ein Büro oder ein Geschäft nur einen Schritt entfernt.
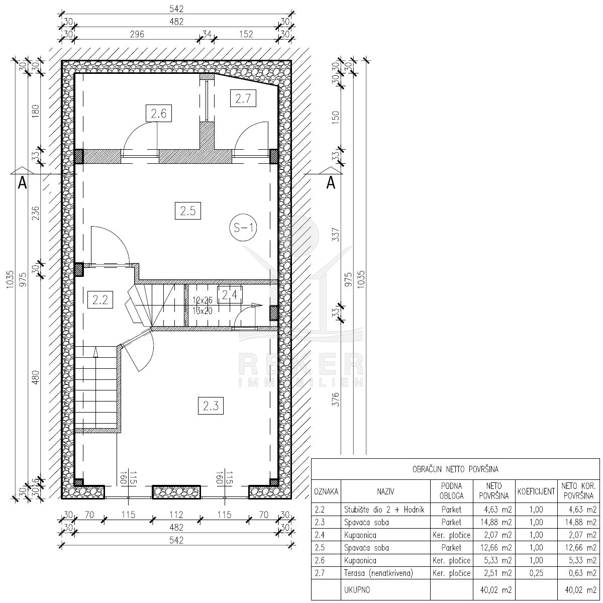
Im Erdgeschoss führt ein separater Eingang Treppe hoch zu einem einladenden Eingangsbereich, der 2 gemütliche Schlafzimmer sowie 2 Badezimmer auf einer Wohnfläche von 40 m² beherbergt. Ideal, um Platz für Familienmitglieder oder Gäste zu schaffen.
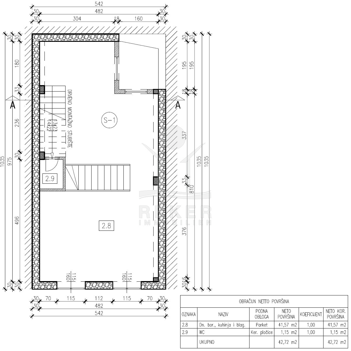
Das erste Obergeschoss bietet mit einem Wohn-, Ess- und Küchenbereich auf 43 m² Raum für Geselligkeit, ergänzt durch ein separates WC. Küche ist mit Geschirrspüler, Gefrierschrank und großem Kühlschrank ausgestattet. Hier können Sie in geselliger Runde entspannen und den gemeinsamen Alltag genießen.
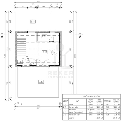
Im zweiten Obergeschoss finden Sie 1 weiteres Schlafzimmer und Badezimmer auf 46 m². Doch das wahre Highlight ist die traumhafte Dachterrasse mit 21 m². Sie ist der perfekte Ort, um Zeit im Freien mit Familie und Freunden zu verbringen und die Aussicht auf den Stadtpark, die Altstadt und die Kornaten zu genießen.
Das Reihenhaus erwartet Sie in Vodice!
- Ort: Vodice (Stadt)
- Einwohnerzahl: 8.875 (2011)
- Region: Dalmatien-Sibenik
- Autobahnentfernung: ca. 16 km *
- Nächster Flughafen: Zadar / ca. 62 km *
Immobiliendaten
- Objektart: Haus
- Objekttyp: Reihenhaus
- ID: 7733
- Kaufpreis: 395.000 €
- Provision: 3,75 % inkl. MwSt. in Kroatien
- Grundstücksgröße: 47 m²
- Wohnfläche: 152 m²
- Anzahl Zimmer: 4
- Anzahl Schlafzimmer: 3
- Anzahl Badezimmer: 3
- Land: Kroatien
- Region: Dalmatien-Sibenik
- Ort: Vodice
- Lage: Stadtzentrum
- Meerentfernung: 150 m
- Ortsmitte: 600 m
Haben Sie Interesse das schöne Reihenhaus zu besitzen?
Nehmen Sie gerne Kontakt mit mir auf!
Ich bin Heiner Reker, Gründer und
Geschäftsführer von Reker Immobilien d.o.o. Ich begleite Sie bei Ihrer aufregenden Reise in die Welt der Immobilien in Kroatien.
Gerne organisiere ich persönlich mit meinen qualifizierten Partnern jeden Schritt bei Ihrem rechtssicheren und stressfreien Immobilienkauf in Kroatien.
Füllen Sie das Formular aus und ich melde mich gerne zum gewünschten Zeitpunkt bei Ihnen.
Bis bald
Exposé mitnehmen?
Laden Sie unser PDF-Exposé herunter und Sie haben die wichtigste Objektdaten & Bilder immer zur Hand
Exposé mitnehmen?
Nehmen Sie Kontakt mit uns auf, ein Exposé schicken wir gerne per E-Mail
Ihre Traum-Immobilie noch nicht gefunden?
Besuchen Sie diese Seiten!

































































