EIN ECHTES ORIGINAL: MEISTERHAFTES STEINHAUS MIT SEELE UND MEERSICHT
Lage & Außenbereich
Nur ein paar Schritte vom Alltag entfernt – aber mitten im mediterranen Leben. Dieses Steinhaus befindet sich in einem kleinen, ruhigen Dorf auf der Insel Korčula. Ein Ort, wo die Zeit langsamer vergeht und die Natur mit Meerblick und grünen Weinbergen direkt vor der Tür beginnt. Die Zufahrt führt Sie direkt ans Haus, der eigene Parkplatz auf einem separaten Grundstück schafft Platz für drei große Fahrzeuge. Geschäfte, Cafés, Restaurants und Strände – alles erreichen Sie schnell, und trotzdem genießen Sie hier absolute Ruhe.
Der Innenhof empfängt Sie mit einem typischen dalmatinischen Flair: Naturstein, geschmiedete Gitter, Pflanzen in alten Tontöpfen und ein schattiger Sitzplatz für die Morgenkaffee-Rituale. Auf der großzügigen Terrasse können Sie den Tag langsam beginnen oder abends lange ausklingen lassen. Highlight: der gemauerte Grill aus Stein, perfekt ergänzt durch die separate Sommerküche im Nebengebäude – ideal für das nächste Sommer-Dinner mit Freunden.
Innenraum & Interieur
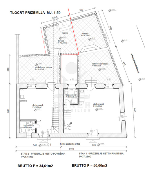
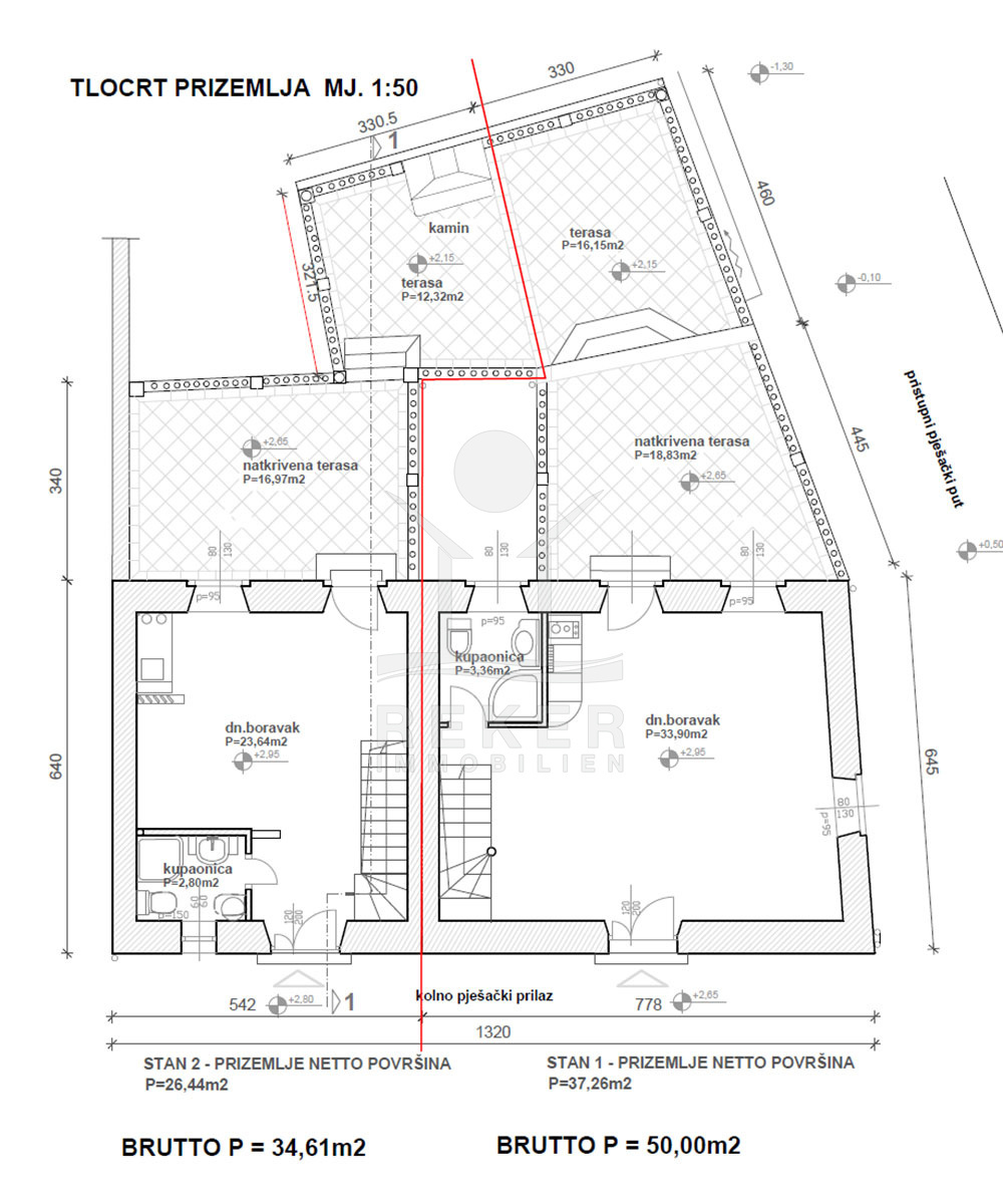
Innen überzeugt das Haus auf 254 m² mit einer durchdachten Raumaufteilung auf mehreren Ebenen. Vier Schlafzimmer, vier Wohnzimmer, zwei Küchen und vier Badezimmer bieten mehr als genug Raum – für Familie, Freunde oder Gäste. Der Stil bleibt dabei durchgehend klar: massive Steinwände, warme Terrakottafliesen, rustikale Möbel und charmante Details. Und weil Meerblick nie Alltag wird, gibt’s den gleich mehrfach: von mehreren Balkonen, die ganz unterschiedliche Perspektiven auf die Landschaft bieten.
Das Mehrfamilienhaus erwartet Sie in Čara!
- Ort: Čara (Dorf)
- Einwohnerzahl: 616 (2011)
- Region: Dubrovnik-Neretva
- Autobahnentfernung: ca. 106 km *
- Nächster Flughafen: Dubrovnik / ca. 184 km *
Immobiliendaten
- Objektart: Haus
- Objekttyp: Mehrfamilienhaus
- ID: 7587
- Kaufpreis: 535.000 €
- Provision: 3,75 % inkl. MwSt. in Kroatien
- Grundstücksgröße: 254 m²
- Wohnfläche: 355 m²
- Anzahl Zimmer: 8
- Anzahl Schlafzimmer: 4
- Anzahl Badezimmer: 4
- Land: Kroatien
- Region: Dubrovnik-Neretva
- Ort: Čara
- Lage: Ortslage
- Meerentfernung: 3 km
Haben Sie Interesse das schöne Mehrfamilienhaus zu besitzen?
Nehmen Sie gerne Kontakt mit mir auf!
Ich bin Heiner Reker, Gründer und
Geschäftsführer von Reker Immobilien d.o.o. Ich begleite Sie bei Ihrer aufregenden Reise in die Welt der Immobilien in Kroatien.
Gerne organisiere ich persönlich mit meinen qualifizierten Partnern jeden Schritt bei Ihrem rechtssicheren und stressfreien Immobilienkauf in Kroatien.
Füllen Sie das Formular aus und ich melde mich gerne zum gewünschten Zeitpunkt bei Ihnen.
Bis bald
Exposé mitnehmen?
Laden Sie unser PDF-Exposé herunter und Sie haben die wichtigste Objektdaten & Bilder immer zur Hand
Exposé mitnehmen?
Nehmen Sie Kontakt mit uns auf, ein Exposé schicken wir gerne per E-Mail
Ihre Traum-Immobilie noch nicht gefunden?
Besuchen Sie diese Seiten!






















































