NEUBAU REIHENHAUS MIT HOCHWERTIGEN MATERIALIEN UND TOP-MODERNEN DESIGN IN VODICE
Neubau Reihenhaus in Vodice - Perfekter Wohnort
Der Neubau liegt ideal, um das Leben in vollen Zügen zu genießen. Mit einer Entfernung zum Meer von nur 700 Metern sowie Geschäften, Restaurants, öffentlichen Verkehrsmitteln, Parks, Spielplätzen und einem Sportzentrum in unmittelbarer Nähe, bietet es einen hervorragenden Ausgangspunkt für Aktivitäten und Erholung zugleich. Vodice, an der Riviera von Sibenik gelegen, ist ein bezaubernder Urlaubsort in Dalmatien, der für sein quirliges Nachtleben, türkisblaue Strände und eine malerische Altstadt bekannt ist. Die schöne Promenade entlang des Meeres lädt zum Flanieren ein und bietet zahlreiche Restaurants, Bars und Cafés mit herrlichem Meerblick. Dieses Reihenhaus in attraktiver Umgebung ist somit der perfekte Ort, um die Region zu erkunden und Erlebnisse zu sammeln.
Das zukunftsweisende Reihenhaus bietet Komfort und Moderne auf 2 Etagen und einer Gesamtwohnfläche von 110 m² und einer Grundstücksfläche von 53 m². Der Neubau zeichnet sich durch eine hochwertige Ausstattung aus, darunter eine Styropor-Fassade, PVC-Zimmerei in Anthrazit, elektrische Rollläden, Moskitonetze, sowie Keramik- und Steinfußböden, Klimaanlage und Fußbodenheizung im Badezimmer. Geplant ist der Baubeginn im Frühjahr 2024, mit der vorraussichtlicher Fertigstellung im Sommer 2025. Zwei Parkplätze stehen zur Verfügung, um den Alltag zu erleichtern und Besuchern bequemes Parken zu ermöglichen. Dieses moderne Reihenhaus verspricht ein komfortables und entspanntes Wohnen, gepaart mit innovativen Annehmlichkeiten, um Ihren Wohntraum zu erfüllen.
Die geplante Außenanlage des Reihenhauses wird zu einer wahren Oase im Freien, mit einem überdachten Terrasse für gemütliche Stunden im Freien. Dieser Bereich bietet die Möglichkeit, die frische Luft zu genießen und inmitten der Natur zu entspannen.
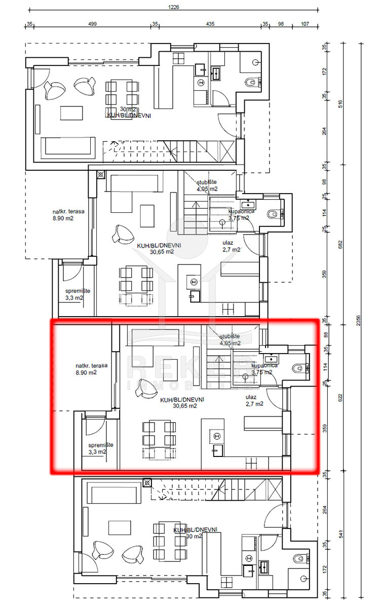
Das zweistöckige Haus bietet im Erdgeschoss einen überdachten Eingang, Flur, Badezimmer, eine Küche mit Esszimmer und ein Wohnzimmer. Eine schöne überdachte Terrasse und ein praktischer Abstellraum ergänzen das Erdgeschoss. Eine Innentreppe führt in die erste Etage des Hauses, die mit einem Flur, einem Badezimmer, drei gemütlichen Schlafzimmern und einem Balkon ausgestattet ist. Genießen Sie die Privatsphäre und die Aussicht vom Balkon aus.
Das Reihenhaus erwartet Sie in Vodice!
- Ort: Vodice (Stadt)
- Einwohnerzahl: 8.875 (2011)
- Region: Dalmatien-Sibenik
- Autobahnentfernung: ca. 16 km *
- Nächster Flughafen: Zadar / ca. 62 km *
Immobiliendaten
- Objektart: Haus
- Objekttyp: Reihenhaus
- Baujahr: 2025
- ID: 6964
- Kaufpreis: 352.000 €
- Provision: 3,75 % inkl. MwSt. in Kroatien
- Grundstücksgröße: 53 m²
- Wohnfläche: 110 m²
- Anzahl Zimmer: 4
- Anzahl Schlafzimmer: 3
- Anzahl Badezimmer: 2
- Land: Kroatien
- Region: Dalmatien-Sibenik
- Ort: Vodice
- Lage: Stadtteil
- Meerentfernung: 700 m
- Ortsmitte: 1300 m
Haben Sie Interesse das schöne Reihenhaus zu besitzen?
Nehmen Sie gerne Kontakt mit mir auf!
Ich bin Heiner Reker, Gründer und
Geschäftsführer von Reker Immobilien d.o.o. Ich begleite Sie bei Ihrer aufregenden Reise in die Welt der Immobilien in Kroatien.
Gerne organisiere ich persönlich mit meinen qualifizierten Partnern jeden Schritt bei Ihrem rechtssicheren und stressfreien Immobilienkauf in Kroatien.
Füllen Sie das Formular aus und ich melde mich gerne zum gewünschten Zeitpunkt bei Ihnen.
Bis bald
Exposé mitnehmen?
Laden Sie unser PDF-Exposé herunter und Sie haben die wichtigste Objektdaten & Bilder immer zur Hand
Exposé mitnehmen?
Nehmen Sie Kontakt mit uns auf, ein Exposé schicken wir gerne per E-Mail
Ihre Traum-Immobilie noch nicht gefunden?
Besuchen Sie diese Seiten!









