MODERNES DESIGN UND HOCHWERTIGE MATERIALIEN: NEUBAU-REIHENHAUS IN VODICE WARTET AUF SIE!
Neubau Reihenhaus in Vodice - ideal gelegen für Entdecker
Der Neubau bietet eine attraktive Umgebung und einen idealen Ausgangspunkt, um alles bequem zu erreichen. Mit nur 700 Metern Entfernung zum Meer und 500 Metern zu den Geschäften haben Sie alles schnell zur Hand. Auch Restaurants, öffentliche Verkehrsmittel, Parks, Spielplätze und ein Sportzentrum befinden sich in unmittelbarer Nähe, was eine hohe Lebensqualität und vielfältige Freizeitmöglichkeiten garantiert. Vodice ist ein charmantes Urlaubsziel an der Riviera von Sibenik und gehört zu den beliebtesten Badeorten in Dalmatien. Die lebendige Altstadt mit ihren malerischen Gassen und dem quirligen Nachtleben lädt zum Entdecken ein, während die türkisblauen Strände und die Promenade mit ihren Restaurants, Bars und Cafés zum Verweilen und Genießen einladen. Entdecken Sie diese bezaubernde Region und erleben Sie unvergessliche Momente.
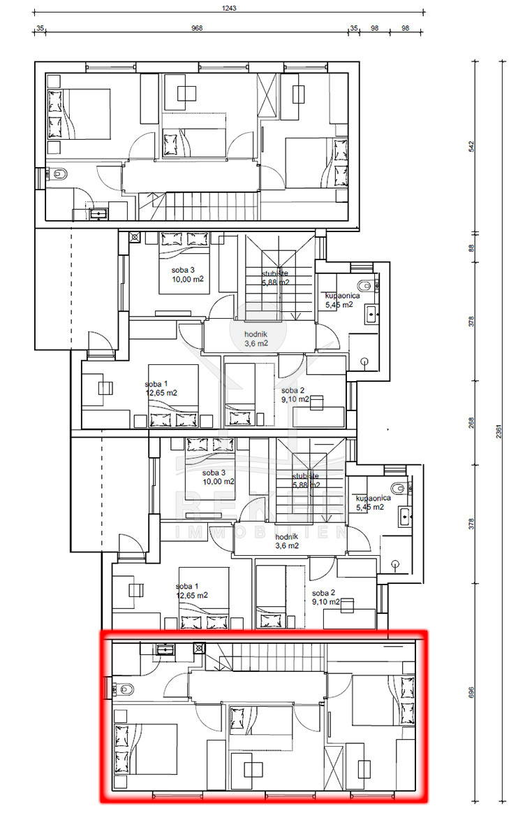
Das Anwesen verfügt über eine Grundstücksfläche von 107 m² und eine Wohnfläche von 105 m², welche sich über 2 Etagen erstreckt. Der Baubeginn ist für das Frühjahr 2024 geplant, mit einer voraussichtlichen Fertigstellung im Sommer 2025. Die moderne Ausstattung umfasst eine Styropor-Fassade, PVC-Zimmerei in Anthrazit, elektrische Rollläden, Moskitonetze, Keramik- und Steinfußböden sowie Klimaanlage und Fußbodenheizung im Badezimmer.
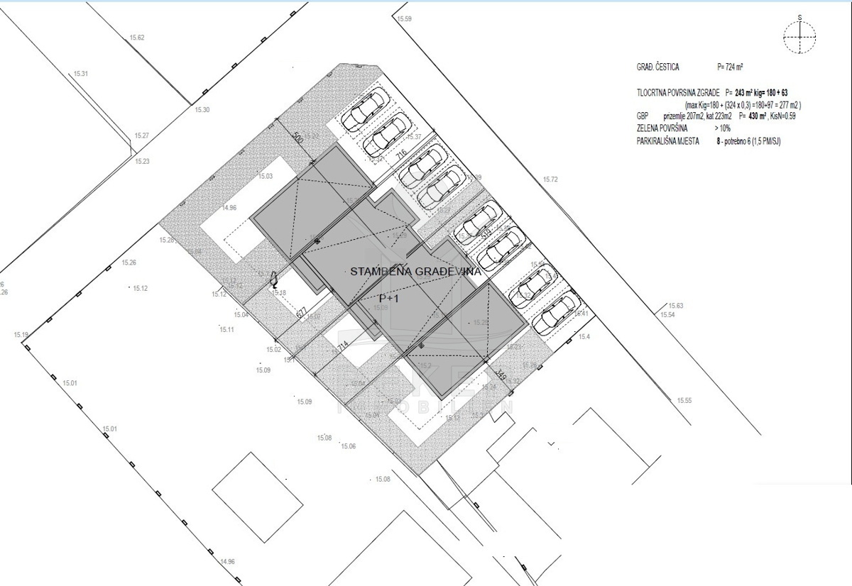
Eine überdachte Terrasse im Außenbereich bietet einen fantastischen Raum, um das Leben im Freien zu genießen. Diese Oase wird es Ihnen ermöglichen, die frische Luft und die Natur in vollen Zügen zu genießen. Zwei Parkplätze stehen zur Verfügung, um Ihren Alltag zu erleichtern und Ihren Gästen bequemes Parken zu ermöglichen. Dieses moderne Reihenhaus mit seinen geplanten Annehmlichkeiten wird Ihnen ein komfortables und entspanntes Wohnen bieten.
Das Haus erstreckt sich über zwei Stockwerke, das Erdgeschoss und den ersten Stock. Beim Betreten finden Sie einen überdachten Eingang und einen Vorraum. Die Küche mit Esszimmer und Wohnzimmer bieten gemütliche Wohnbereiche, ergänzt durch eine einladende überdachte Terrasse. Die Innentreppe führt in den ersten Stock des Hauses, der mit einem Flur, drei Schlafzimmern und einem Badezimmer gestaltet ist. Hier finden Sie Ruhe und Privatsphäre in den Schlafzimmern, während der Flur das Obergeschoss verbindet und eine einladende Atmosphäre schafft.
Das Reihenhaus erwartet Sie in Vodice!
- Ort: Vodice (Stadt)
- Einwohnerzahl: 8.875 (2011)
- Region: Dalmatien-Sibenik
- Autobahnentfernung: ca. 16 km *
- Nächster Flughafen: Zadar / ca. 62 km *
Immobiliendaten
- Objektart: Haus
- Objekttyp: Reihenhaus
- Baujahr: 2025
- ID: 6963
- Kaufpreis: 336.000 €
- Provision: 3,75 % inkl. MwSt. in Kroatien
- Grundstücksgröße: 107 m²
- Wohnfläche: 105 m²
- Anzahl Zimmer: 4
- Anzahl Schlafzimmer: 3
- Anzahl Badezimmer: 1
- Land: Kroatien
- Region: Dalmatien-Sibenik
- Ort: Vodice
- Lage: Stadtteil
- Meerentfernung: 700 m
- Ortsmitte: 1300 m
Haben Sie Interesse das schöne Reihenhaus zu besitzen?
Nehmen Sie gerne Kontakt mit mir auf!
Ich bin Heiner Reker, Gründer und
Geschäftsführer von Reker Immobilien d.o.o. Ich begleite Sie bei Ihrer aufregenden Reise in die Welt der Immobilien in Kroatien.
Gerne organisiere ich persönlich mit meinen qualifizierten Partnern jeden Schritt bei Ihrem rechtssicheren und stressfreien Immobilienkauf in Kroatien.
Füllen Sie das Formular aus und ich melde mich gerne zum gewünschten Zeitpunkt bei Ihnen.
Bis bald
Exposé mitnehmen?
Laden Sie unser PDF-Exposé herunter und Sie haben die wichtigste Objektdaten & Bilder immer zur Hand
Exposé mitnehmen?
Nehmen Sie Kontakt mit uns auf, ein Exposé schicken wir gerne per E-Mail
Ihre Traum-Immobilie noch nicht gefunden?
Besuchen Sie diese Seiten!










