ÜBER DEN DÄCHERN VON NOVIGRAD: ALTSTADT-CHARME MIT MODERNEM TWIST

Lage & Außenbereich
Altstadt, Kopfsteinpflaster, Cafés ums Eck – das Haus steht in einer ruhigen Seitenstraße im Zentrum von Novigrad. Die Lage könnte kaum besser sein: Nur ein paar Schritte bis zum Meer. Die Straße ist verkehrsberuhigt, die Nachbarschaft gepflegt, mediterran und charmant. Direkt vor der Haustür: Platz für Fahrräder, kurze Wege zu allem, was man im Alltag braucht. Ein Auto? Brauchen Sie hier nicht.
Innenraum & Interieur
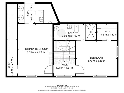
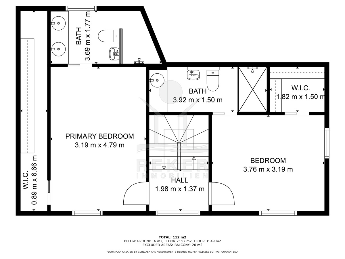
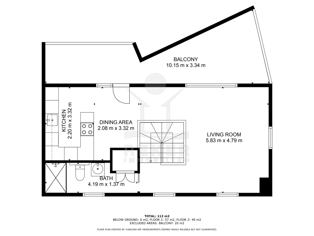
Das Haus erstreckt sich über drei Etagen. Unten der Eingang, ein Abstellraum und die Treppe nach oben. Im ersten Stock: Zwei Schlafzimmer, beide mit eigenem Bad und eingebautem Kleiderschrank. Im zweiten Stock dann das Highlight – ein luftiger, heller Wohn- und Essbereich mit Küche. Sichtsteinmauern, weiße Deckenbalken, Vintage-Möbel und viel Licht. Dazu ein weiteres Badezimmer, Klimaanlage auf jeder Etage und ein Kaminanschluss für kühle Abende. Verkauft wird voll möbliert – Sie müssen nur noch den Koffer bringen.
Im obersten Stock öffnet sich der Wohnbereich zum westlich ausgerichteten Balkon. Zwischen roten Ziegeldächern gelegen, bietet sie ein ganz eigenes, fast verstecktes Plätzchen – für Morgenkaffee oder Sonnenuntergang mit Blick über die Dächer. Loungemöbel und Liegen sind schon da. Und: absolut privat.
Das Reihenhaus erwartet Sie in Novigrad!
- Ort: Novigrad (Stadt)
- Einwohnerzahl: 4.345 (2011)
- Region: Istrien
- Autobahnentfernung: ca. 6 km *
- Nächster Flughafen: Pula / ca. 51 km *

Immobiliendaten
- Objektart: Haus
- Objekttyp: Reihenhaus
- ID: 7462
- Kaufpreis: 499.000 €
- Provision: 3,75 % inkl. MwSt. in Kroatien
- Wohnfläche: 115 m²
- Anzahl Zimmer: 3
- Anzahl Schlafzimmer: 2
- Anzahl Badezimmer: 3
- Land: Kroatien
- Region: Istrien
- Ort: Novigrad
- Lage: Stadtzentrum
- Meerentfernung: 100 m
Haben Sie Interesse das schöne Reihenhaus zu besitzen?
Nehmen Sie gerne Kontakt mit mir auf!
Ich bin Heiner Reker, Gründer und
Geschäftsführer von Reker Immobilien d.o.o. Ich begleite Sie bei Ihrer aufregenden Reise in die Welt der Immobilien in Kroatien.
Gerne organisiere ich persönlich mit meinen qualifizierten Partnern jeden Schritt bei Ihrem rechtssicheren und stressfreien Immobilienkauf in Kroatien.
Füllen Sie das Formular aus und ich melde mich gerne zum gewünschten Zeitpunkt bei Ihnen.
Bis bald

Exposé mitnehmen?
Laden Sie unser PDF-Exposé herunter und Sie haben die wichtigste Objektdaten & Bilder immer zur Hand
Exposé mitnehmen?
Nehmen Sie Kontakt mit uns auf, ein Exposé schicken wir gerne per E-Mail
Ihre Traum-Immobilie noch nicht gefunden?
Besuchen Sie diese Seiten!