PRIVATES INSELGEFÜHL: MEERBLICK, XXL-DACHTERRASSE, SCHLAFZIMMER MIT EIGENEM BAD
Lage & Außenbereich
Nur etwa 50 Meter vom Meer entfernt – zur Promenade sind es sogar nur rund 20. Die Umgebung: entspannt, gepflegt, grün. Moderne Häuser, viel Platz zwischen den Grundstücken. Wer das Meer sucht und Privatsphäre schätzt, wird sich hier schnell wohlfühlen.
Das Gebäude? Hochwertig gebaut, mit einem klaren Fokus auf Design, Qualität und Ästhetik. Drei Etagen, zehn Wohnungen – jede für sich besonders. Im Erdgeschoss haben die Wohnungen private Gartenanteile. Die Einheiten im zweiten Obergeschoss verfügen über große Dachterrassen mit weitem Meerblick. Großzügige Grundrisse, große Fensterflächen, viel Tageslicht. Der Bau schreitet zügig voran, mit einer geplanten Fertigstellung im Mai 2026. Ein Aufzug verbindet alle Etagen. Jede Wohnung kommt mit zwei Stellplätzen – bei manchen auch inklusive Garage.
Innenraum & Interieur
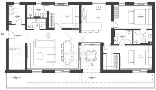
Der Wohn- und Essbereich misst über 30 m². Viel Raum, viel Licht. Daneben die offene Küche – mit 16,8 m² großzügig geschnitten. Drei Schlafzimmer, drei Bäder. Jedes Zimmer hat seinen eigenen Bereich. Ideal für Familien oder Gäste. Zwei Außenflächen sind direkt von der Wohnung aus erreichbar: eine überdachte Terrasse mit 23,7 m² und eine offene Terrasse mit 10,5 m² Zusätzlich gibt es ein separates Gäste-WC. Und Stauraum ist auch vorhanden: der Technikraum liegt gleich am Eingang.
Ein interner Aufgang führt auf die Dachfläche. Fast 150 m² nur für Sie. Sonne von morgens bis abends. Platz für Lounge, Outdoor-Küche oder einfach Ruhe. Absolute Privatsphäre. Und natürlich: Meerblick. Viel Fläche innen wie außen. Diese Wohnung ist kein Kompromiss.
Das Penthouse erwartet Sie in Zadar!
- Ort: Zadar (Stadt)
- Einwohnerzahl: 168.031 (2019)
- Region: Dalmatien-Zadar
- Autobahnentfernung: ca. 21 km *
- Nächster Flughafen: Zadar / ca. 14 km *
Immobiliendaten
- Objektart: Wohnung
- Objekttyp: Penthouse
- Baujahr: 2026
- ID: 9132
- Kaufpreis: 1.216.530 €
- Provision: 3,75 % inkl. MwSt. in Kroatien
- Wohnfläche: 304 m²
- Anzahl Zimmer: 4
- Anzahl Schlafzimmer: 3
- Anzahl Badezimmer: 3
- Land: Kroatien
- Region: Dalmatien-Zadar
- Ort: Zadar
- Lage: Ortslage
- Meerentfernung: 50 m
Haben Sie Interesse das schöne Penthouse zu besitzen?
Nehmen Sie gerne Kontakt mit mir auf!
Ich bin Heiner Reker, Gründer und
Geschäftsführer von Reker Immobilien d.o.o. Ich begleite Sie bei Ihrer aufregenden Reise in die Welt der Immobilien in Kroatien.
Gerne organisiere ich persönlich mit meinen qualifizierten Partnern jeden Schritt bei Ihrem rechtssicheren und stressfreien Immobilienkauf in Kroatien.
Füllen Sie das Formular aus und ich melde mich gerne zum gewünschten Zeitpunkt bei Ihnen.
Bis bald
Exposé mitnehmen?
Laden Sie unser PDF-Exposé herunter und Sie haben die wichtigste Objektdaten & Bilder immer zur Hand
Exposé mitnehmen?
Nehmen Sie Kontakt mit uns auf, ein Exposé schicken wir gerne per E-Mail
Ihre Traum-Immobilie noch nicht gefunden?
Besuchen Sie diese Seiten!












