PENTHOUSE IN ZWEITER REIHE MIT 70 M² DACHTERRASSE UND MEERBLICK
Lage & Außenbereich
In Vodice, in einem gefragten Ortsteil, wohnen Sie in zweiter Reihe zum Strand. Das Meer erreichen Sie nach 50 Metern, das Zentrum nach rund 600 Metern. Kurze Wege zum Baden, schnelle Erreichbarkeit von Geschäften und Restaurants. Ein eigener Parkplatz gehört zur Wohnung. Das Haus mit nur 8 Einheiten entstand zwischen 2022 und 2023 und schafft eine angenehm private Atmosphäre.
Innenraum & Interieur
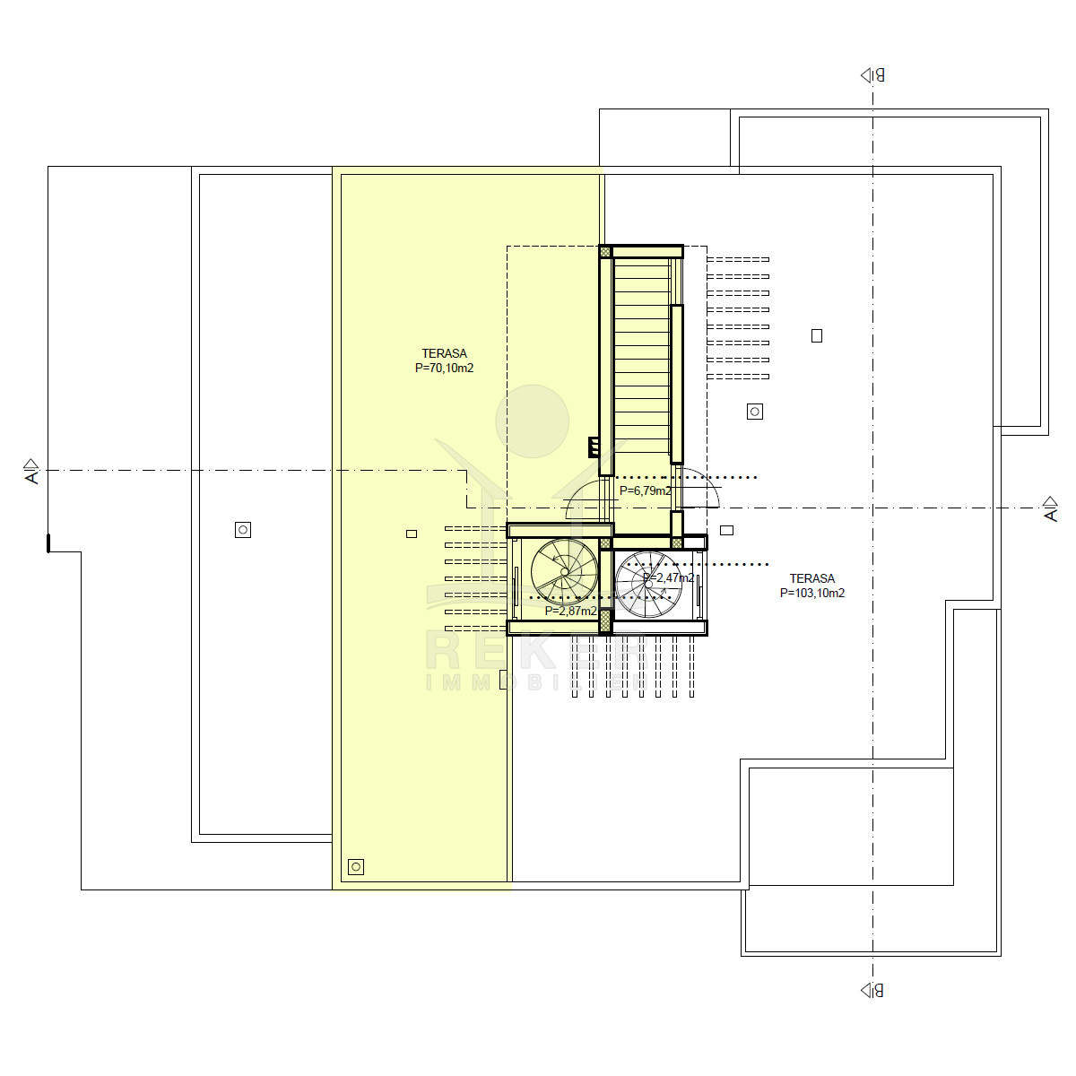
Die Wohnung erstreckt sich über zwei Ebenen im zweiten Stock. Auf der Wohnebene erwartet Sie eine Terrasse mit 42,64 m². Sie gewinnen spürbar Platz im Freien. Ob gemeinsames Essen draußen oder entspannte Abende. Darüber erweitert die Dachterrasse mit 70,10 m² den Außenbereich deutlich. Von hier genießen Sie Meerblick und viel Raum für individuelle Gestaltung.
Im Inneren stehen drei Schlafzimmer zur Verfügung. Dazu kommen Flur, Treppenhaus, ein separates WC und zwei Badezimmer. Der offene Wohnbereich mit Wohnzimmer, Esszimmer und Küche bildet das Zentrum des Alltags. Hier treffen Sie sich mit Familie und Gästen. Hochwertige Fenster und Türen mit elektrischen Rollläden sowie Moskitonetzen sorgen für Komfort. Einbruch- und Brandschutztüren erhöhen die Sicherheit zusätzlich. Die Badezimmer sind mit elektrischer Fußbodenheizung ausgestattet. In Schlafzimmern und Wohnraum stehen Klimaanlagen und TV-Anschlüsse bereit. Eine zentrale Klima- und Ventilationsanlage ergänzt die technische Ausstattung.
Das Penthouse erwartet Sie in Vodice!
- Ort: Vodice (Stadt)
- Einwohnerzahl: 8.875 (2011)
- Region: Dalmatien-Sibenik
- Autobahnentfernung: ca. 16 km *
- Nächster Flughafen: Zadar / ca. 62 km *
Immobiliendaten
- Objektart: Wohnung
- Objekttyp: Penthouse
- Baujahr: 2023
- ID: 9654
- Kaufpreis: 751.452 €
- Provision: 3,75 % inkl. MwSt. in Kroatien
- Wohnfläche: 217 m²
- Anzahl Zimmer: 3
- Anzahl Schlafzimmer: 2
- Anzahl Badezimmer: 1
- Land: Kroatien
- Region: Dalmatien-Sibenik
- Ort: Vodice
- Meerentfernung: 50 m
Haben Sie Interesse das schöne Penthouse zu besitzen?
Nehmen Sie gerne Kontakt mit mir auf!
Ich bin Heiner Reker, Gründer und
Geschäftsführer von Reker Immobilien d.o.o. Ich begleite Sie bei Ihrer aufregenden Reise in die Welt der Immobilien in Kroatien.
Gerne organisiere ich persönlich mit meinen qualifizierten Partnern jeden Schritt bei Ihrem rechtssicheren und stressfreien Immobilienkauf in Kroatien.
Füllen Sie das Formular aus und ich melde mich gerne zum gewünschten Zeitpunkt bei Ihnen.
Bis bald
Exposé mitnehmen?
Laden Sie unser PDF-Exposé herunter und Sie haben die wichtigste Objektdaten & Bilder immer zur Hand
Exposé mitnehmen?
Nehmen Sie Kontakt mit uns auf, ein Exposé schicken wir gerne per E-Mail
Ihre Traum-Immobilie noch nicht gefunden?
Besuchen Sie diese Seiten!









