EXKLUSIVES WOHNEN AM MEER: PENTHOUSE IN ERSTER REIHE MIT DACHTERRASSE UND JACUZZI IN TRIBUNJ
Mit Blick auf das türkisblaue Meer in Tribunj
Diese exquisite Neubauwohnung befindet sich in einer der schönsten Lagen von Tribunj, direkt in der ersten Reihe zum Meer. Sie genießen einen atemberaubenden, ungehinderten Blick auf das Meer und die umliegenden Inseln. Die Strände Sinje More und Zamalin sind nur 450 Meter entfernt und laden zu entspannten Sonnenbädern und erfrischenden Schwimmtouren ein. Sie wohnen hier im Herzen von Tribunj und haben alle Annehmlichkeiten wie Restaurants, Geschäfte und Cafés in unmittelbarer Nähe.
Die Stadtvilla, in der sich die Wohnung befindet, besticht durch ihre moderne Architektur und hochwertige Bauweise. Dank der hohen Energieeffizienz des Gebäudes wird Ihr Wohnkomfort maximiert und gleichzeitig die Umwelt geschont. Die Stadtvilla umfasst insgesamt fünf Wohnungen auf zwei Etagen. Ein Parkplatz steht Ihnen direkt vor dem Haus zur Verfügung.
Der geplante Baustart ist für das Jahr 2024 vorgesehen. In Absprache mit dem Investor besteht die Möglichkeit, bereits in einer früheren Bauphase bei der Auswahl bestimmter Ausbaumaterialien mitzuwirken.
Zwei Balkone mit Meerblick
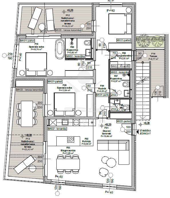
In diesem großzügigen Penthouse erwartet Sie ein offener Wohnraum mit moderner Küche und einem Esstisch für gemütliche Abende. Die Wohnung verfügt über drei Schlafzimmer, eines davon mit eigenem Bad, sowie ein zusätzliches Badezimmer, ein Gäste-WC und einen praktischen Abstellraum. Genießen Sie die frische Luft und den Ausblick auf den zentralen Balkon oder gönnen Sie sich Entspannung auf dem zweiten Balkon. Doch der absolute Höhepunkt ist die atemberaubende Dachterrasse mit Jacuzzi - ein Ort zum Relaxen und Genießen.
Die Wohnung ist hochwertig ausgestattet mit Fußbodenheizung, Aluminiumschreinerei, elektrischen Rollläden, Moskitonetzen, hochwertigen Sanitäranlagen, Klimaanlage und hochwertigen Keramik- und Holzböden. Das Penthouse wird vollständig möbliert angeboten, sodass Sie direkt einziehen und den Luxus genießen können. Mit einer Größe von 133 m² bietet diese Wohnung viel Platz für ein exklusives Wohngefühl.
Entspannung mit Traumpanorama
Der absolute Höhepunkt ist die atemberaubende Dachterrasse mit Jacuzzi. Ein Ort zum Relaxen und Genießen.
Das Penthouse erwartet Sie in Tribunj!
- Ort: Tribunj (Dorf)
- Einwohnerzahl: 1.536 (2011)
- Region: Dalmatien-Sibenik
- Autobahnentfernung: ca. 12 km *
- Nächster Flughafen: Zadar / ca. 60 km *
Immobiliendaten
- Objektart: Wohnung
- Objekttyp: Penthouse
- Baujahr: 2024
- ID: 5474
- Kaufpreis: 841.000 €
- Provision: 3,75 % inkl. MwSt. in Kroatien
- Wohnfläche: 133 m²
- Anzahl Zimmer: 4
- Anzahl Schlafzimmer: 3
- Anzahl Badezimmer: 2
- Land: Kroatien
- Region: Dalmatien-Sibenik
- Ort: Tribunj
- Meerentfernung: 20 m
- Ortsmitte: 10 m
Haben Sie Interesse das schöne Penthouse zu besitzen?
Nehmen Sie gerne Kontakt mit mir auf!
Ich bin Heiner Reker, Gründer und
Geschäftsführer von Reker Immobilien d.o.o. Ich begleite Sie bei Ihrer aufregenden Reise in die Welt der Immobilien in Kroatien.
Gerne organisiere ich persönlich mit meinen qualifizierten Partnern jeden Schritt bei Ihrem rechtssicheren und stressfreien Immobilienkauf in Kroatien.
Füllen Sie das Formular aus und ich melde mich gerne zum gewünschten Zeitpunkt bei Ihnen.
Bis bald
Exposé mitnehmen?
Laden Sie unser PDF-Exposé herunter und Sie haben die wichtigste Objektdaten & Bilder immer zur Hand
Exposé mitnehmen?
Nehmen Sie Kontakt mit uns auf, ein Exposé schicken wir gerne per E-Mail
Ihre Traum-Immobilie noch nicht gefunden?
Besuchen Sie diese Seiten!
























