EXKLUSIVES NEUBAU-PENTHOUSE MIT DACHTERRASSE IN SUKOŠAN, NUR WENIGE SCHRITTE VOM MEER ENTFERNT
Exklusives Penthouse mit atemberaubendem Meerblick in Sukošan
Der Neubau in Sukošan besticht nicht nur durch seine moderne Ausstattung, sondern auch durch seine erstklassige Lage nur 100 Meter von der Küste entfernt. Direkt vor der Haustür finden Sie eine Vielzahl von Restaurants, Bars und Einkaufsmöglichkeiten. Sukošan, nur 12 km südlich von Zadar gelegen, bietet einen erstklassigen Jachthafen und schöne Strände. Der nahegelegene Strand Djecji raj ist ideal für Familien mit flachem Wasser und sandigem Boden. Die Umgebung bietet vielfältige Sport- und Freizeitmöglichkeiten für alle Altersgruppen. Kulturinteressierte können Ausflüge in die Altstadt von Zadar oder zu den umliegenden National- und Naturparks unternehmen. Die gastronomische Vielfalt von Sukošan lädt dazu ein, die landestypische Küche zu genießen. Die Uferpromenade bietet beeindruckende Ausblicke aufs Meer und den Ort, perfekt für entspannte Spaziergänge und Sonnenuntergänge. Hier erwartet Sie ein luxuriöses Wohnerlebnis inmitten einer lebendigen und idyllischen Umgebung.
Exklusives Penthouse im Neubauprojekt
Das Penthouse befindet sich in einem exklusiven Neubau mit insgesamt 18 hochmodernen Wohneinheiten, verteilt auf drei Gebäude. Das Penthouse, befindet sich im 2. Stock, wird mit erdbebensicherer Stahlbetonkonstruktion und energieeffizienten Merkmalen wie PVC-Fenstern und elektrischen ALU-Jalousien mit Moskitonetzen ausgestattet sein. LED-Beleuchtung, Videoüberwachung, hochwertige Klimaanlagen und Fußbodenheizung sorgen für modernen Komfort auf höchstem Niveau. Mit geplanter Fertigstellung im Mai 2025 bietet dieses exklusive Penthouse Luxus und zukunftsweisende Technologie. Mit einem Außenparkplatz inklusive und der Option auf zusätzliche Garagen und Lagerräume zu erwerben, bietet diese Immobilie den Bewohnern Komfort, Luxus und ein modernen Lebensstil.
Penthouse mit atemberaubendem Meerblick
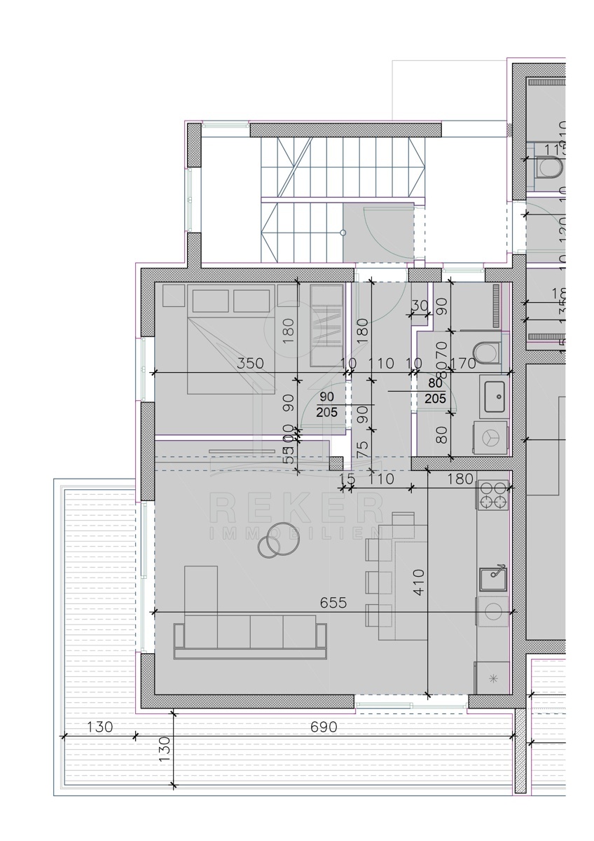
Die Penthousewohnung, überzeugt mit einer Wohnfläche von 86,51 m² wird ohne Möbel verkauft. Die Bäder werden mit hochwertigen Porzellan-Keramikfliesen ausgestattet. Der Wohnbereich umfasst ein Wohnzimmer, einen Ess- und Küchenbereich sowie ein Schlafzimmer. Ein Balkon lädt zum Verweilen im Freien ein. Das Highlight der Immobilie ist die Dachterrasse mit einem wunderbaren Meerblick und die Umgebung. Hier können Sie entspannen und die Aussicht in vollen Zügen genießen.
Das Penthouse erwartet Sie in Sukošan!
- Ort: Sukošan (Gemeinde)
- Einwohnerzahl: 4.583 (2011)
- Region: Dalmatien-Zadar
- Autobahnentfernung: ca. 15 km *
- Nächster Flughafen: Zadar / ca. 11 km *
Immobiliendaten
- Objektart: Wohnung
- Objekttyp: Penthouse
- Baujahr: 2025
- ID: 7016
- Kaufpreis: 276.832 €
- Provision: 3,75 % inkl. MwSt. in Kroatien
- Wohnfläche: 86 m²
- Anzahl Zimmer: 2
- Anzahl Schlafzimmer: 1
- Anzahl Badezimmer: 1
- Land: Kroatien
- Region: Dalmatien-Zadar
- Ort: Sukošan
- Lage: Ortslage
- Meerentfernung: 100 m
Haben Sie Interesse das schöne Penthouse zu besitzen?
Nehmen Sie gerne Kontakt mit mir auf!
Ich bin Heiner Reker, Gründer und
Geschäftsführer von Reker Immobilien d.o.o. Ich begleite Sie bei Ihrer aufregenden Reise in die Welt der Immobilien in Kroatien.
Gerne organisiere ich persönlich mit meinen qualifizierten Partnern jeden Schritt bei Ihrem rechtssicheren und stressfreien Immobilienkauf in Kroatien.
Füllen Sie das Formular aus und ich melde mich gerne zum gewünschten Zeitpunkt bei Ihnen.
Bis bald
Exposé mitnehmen?
Laden Sie unser PDF-Exposé herunter und Sie haben die wichtigste Objektdaten & Bilder immer zur Hand
Exposé mitnehmen?
Nehmen Sie Kontakt mit uns auf, ein Exposé schicken wir gerne per E-Mail
Ihre Traum-Immobilie noch nicht gefunden?
Besuchen Sie diese Seiten!
















