MEDITERRANES PENTHOUSE MIT 65 M² DACHTERRASSE UND MEERBLICK IN SUKOŠAN
            Lage & Außenbereich
Im ruhigen, grünen Teil von Sukošan, nur etwa 400 Meter vom Meer entfernt, entsteht ein Wohnprojekt, das sich harmonisch in die Natur einfügt. Zwischen alten Olivenbäumen öffnet sich der Blick über die sanfte Küstenlandschaft bis zum Meer. Die Lage vermittelt Ruhe, Weite und mediterranes Lebensgefühl. Hier treffen Natur und Komfort aufeinander, ein Ort für Menschen, die Stille und Meerblick schätzen.
Das Gebäude fügt sich natürlich in seine Umgebung ein. Nur sechs Wohnungen auf drei Etagen bieten Privatsphäre und Großzügigkeit. Jede Einheit profitiert von der südlichen Ausrichtung und viel Tageslicht. POROTHERM-Ziegel mit verstärkter Armierung sorgen für Stabilität und gesundes Raumklima. Große Glas-Schiebetüren im REHAU-System bringen Helligkeit und Offenheit in jeden Raum. Das STO-Fassadensystem schützt dauerhaft und unterstreicht das klare Design. Römischer Travertin mit warmer Struktur akzentuiert Balkone und Treppen und betont den mediterranen Stil. Ein Aufzug verbindet alle Etagen und sorgt für bequemen Zugang. Ein Abstellraum und ein Stellplatz in der Tiefgarage ergänzen den Komfort.
Innenraum & Interieur
Im obersten Geschoss gelegen, öffnet sich das Penthouse nach Süden und bietet einen weiten Blick über das mediterrane Grün bis zum Meer. Die Dachterrasse mit über 65 m² Fläche ist ein echtes Highlight. Teils überdacht, teils offen, bietet sie Platz für Lounge, Essbereich oder eine kleine Sommerküche.
Im Inneren setzt sich das offene, luftige Raumgefühl fort. Der Wohn-, Ess- und Küchenbereich ist großzügig und hell gestaltet. Große Glasfronten lassen das Tageslicht weit in den Raum fallen. Eichenparkett und die DEVI-Fußbodenheizung sorgen für natürliche, gleichmäßige Wärme. Die Mitsubishi-Electric-Klimaanlage hält das Raumklima das ganze Jahr über angenehm und arbeitet dabei leise und effizient.
Die Küche ist mit Bosch-Geräten ausgestattet und überzeugt durch Funktionalität und Stil. Im Bad sorgen Hansgrohe-Armaturen für Qualität und Design. Alles wirkt klar, harmonisch und hochwertig. Das Schlafzimmer liegt ruhig und hat direkten Zugang zur Loggia, der perfekte Ort für den ersten Morgentrunk mit Sonne.
Das Penthouse erwartet Sie in Sukošan!
- Ort: Sukošan (Gemeinde)
 - Einwohnerzahl: 4.583 (2011)
 - Region: Dalmatien-Zadar
 - Autobahnentfernung: ca. 15 km *
 - Nächster Flughafen: Zadar / ca. 11 km *
 
                Immobiliendaten
- Objektart: Wohnung
 - Objekttyp: Penthouse
 - Baujahr: 2025
 - ID: 9407
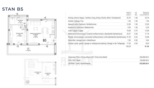
 - Kaufpreis: 525.000 €
 - Provision: 3,75 % inkl. MwSt. in Kroatien
 
- Wohnfläche: 125 m²
 - Anzahl Zimmer: 2
 - Anzahl Schlafzimmer: 1
 - Anzahl Badezimmer: 1
 
- Land: Kroatien
 - Region: Dalmatien-Zadar
 - Ort: Sukošan
 - Meerentfernung: 400 m
 
Haben Sie Interesse das schöne Penthouse zu besitzen?
Nehmen Sie gerne Kontakt mit mir auf!
Ich bin Heiner Reker, Gründer und
                    Geschäftsführer von Reker Immobilien d.o.o. Ich begleite Sie bei Ihrer aufregenden Reise in die Welt der Immobilien in Kroatien.
                    
Gerne organisiere ich persönlich mit meinen qualifizierten Partnern jeden Schritt bei Ihrem rechtssicheren und stressfreien Immobilienkauf in Kroatien.
Füllen Sie das Formular aus und ich melde mich gerne zum gewünschten Zeitpunkt bei Ihnen.
Bis bald
            Exposé mitnehmen?
Laden Sie unser PDF-Exposé herunter und Sie haben die wichtigste Objektdaten & Bilder immer zur Hand
Exposé mitnehmen?
Nehmen Sie Kontakt mit uns auf, ein Exposé schicken wir gerne per E-Mail
Ihre Traum-Immobilie noch nicht gefunden?
Besuchen Sie diese Seiten!























