PENTHOUSE MIT 94,7 M² DACHTERRASSE, LOGGIA UND PANORAMABLICK
            Lage & Außenbereich
Im ruhigen, grünen Teil von Sukošan entsteht ein exklusives Wohnprojekt mit nur drei Wohnungen. Jede umfasst eine komplette Etage: Erdgeschoss, erstes und zweites Obergeschoss, dazu eine private Dachterrasse. Die Umgebung zeigt mediterranen Charakter: alte Olivenbäume, duftende Kräuter, weite Blicke. Nur 400 Meter trennen Sie vom Meer. Sonne, Ruhe und Meerblick in südlicher Ausrichtung machen diesen Ort besonders.
Das Haus wurde 2025 nach modernen Standards erbaut und bietet Erstbezug. Die klare Architektur passt sich harmonisch in die Landschaft ein. POROTHERM-Ziegel sorgen für Stabilität und ein gesundes Raumklima. Das STO-Fassadensystem schützt dauerhaft und verleiht dem Gebäude gepflegte Eleganz. Große REHAU-Fenster mit Schiebetüren öffnen den Innenraum und schaffen eine natürliche Verbindung zur Terrasse. Warmer Travertinstein betont Treppen und Balkone, was dem Haus mediterrane Leichtigkeit verleiht. Zwei Außenstellplätze direkt am Gebäude gehören fest zur Einheit.
Innenraum & Interieur
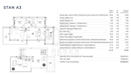
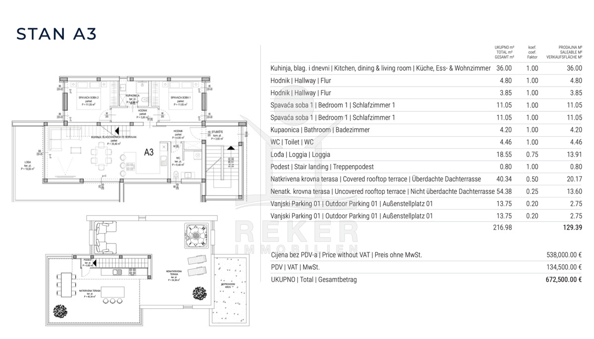
Das Penthouse erstreckt sich über die gesamte oberste Etage und bietet einen freien Blick über den Zadarer Archipel. Der großzügige Wohn- und Essbereich mit integrierter Küche misst 36 m² und öffnet sich über bodentiefe Glasflächen zur südlich ausgerichteten Loggia. Licht, Weite und Offenheit bestimmen die Atmosphäre. Zwei gleich große Schlafzimmer bieten Räume der Ruhe. Das Badezimmer mit großformatigem Feinsteinzeug und DEVI-Fußbodenheizung sorgt für Komfort und Stil. Ein separates Gäste-WC ergänzt den Grundriss.
Eine elegante Innentreppe führt auf die private Dachterrasse, das Highlight dieser Wohnung. Die 94,7 m² große Außenfläche teilt sich in einen überdachten und einen offenen Bereich. Von hier genießen Sie den Blick über Olivenhaine, das Meer und die vorgelagerten Inseln. Der geschützte Teil bietet Schatten, der offene Bereich Sonne und mediterranes Lebensgefühl.
Ein Aufzug von KONE verbindet alle Ebenen. Hochwertige Materialien, darunter Eichenparkett, REHAU-Systeme, Vimar-Komponenten und Bosch-Geräte, schaffen ein harmonisches Gesamtbild. Dieses Penthouse vereint Architektur, Aussicht und Ruhe zu einem hochwertigen Wohnerlebnis.
Das Penthouse erwartet Sie in Sukošan!
- Ort: Sukošan (Gemeinde)
 - Einwohnerzahl: 4.583 (2011)
 - Region: Dalmatien-Zadar
 - Autobahnentfernung: ca. 15 km *
 - Nächster Flughafen: Zadar / ca. 11 km *
 
                Immobiliendaten
- Objektart: Wohnung
 - Objekttyp: Penthouse
 - Baujahr: 2025
 - ID: 9402
 - Kaufpreis: 672.500 €
 - Provision: 3,75 % inkl. MwSt. in Kroatien
 
- Wohnfläche: 187 m²
 - Anzahl Zimmer: 3
 - Anzahl Schlafzimmer: 2
 - Anzahl Badezimmer: 1
 
- Land: Kroatien
 - Region: Dalmatien-Zadar
 - Ort: Sukošan
 - Meerentfernung: 400 m
 
Haben Sie Interesse das schöne Penthouse zu besitzen?
Nehmen Sie gerne Kontakt mit mir auf!
Ich bin Heiner Reker, Gründer und
                    Geschäftsführer von Reker Immobilien d.o.o. Ich begleite Sie bei Ihrer aufregenden Reise in die Welt der Immobilien in Kroatien.
                    
Gerne organisiere ich persönlich mit meinen qualifizierten Partnern jeden Schritt bei Ihrem rechtssicheren und stressfreien Immobilienkauf in Kroatien.
Füllen Sie das Formular aus und ich melde mich gerne zum gewünschten Zeitpunkt bei Ihnen.
Bis bald
            Exposé mitnehmen?
Laden Sie unser PDF-Exposé herunter und Sie haben die wichtigste Objektdaten & Bilder immer zur Hand
Exposé mitnehmen?
Nehmen Sie Kontakt mit uns auf, ein Exposé schicken wir gerne per E-Mail
Ihre Traum-Immobilie noch nicht gefunden?
Besuchen Sie diese Seiten!








