ERLEBEN SIE DEN GIPFEL DES LUXUS: NEUES PENTHOUSE MIT DACHTERRASSE NAHE DEM ZENTRUM VON POREČ
Exklusives Penthouse nahe dem Zentrum von Poreč
Das brandneue Penthouse befindet sich in einer exklusiven und ausgezeichneten Lage in einer neuen Siedlung nahe dem Zentrum von Poreč. Sie werden von dem wunderschönen Ambiente dieser Wohngegend begeistert sein. Das Meer ist etwa 1,5 km entfernt und lädt zu erholsamen Spaziergängen an der Küste ein. Das Zentrum von Poreč mit seinen charmanten Geschäften, Restaurants und Cafés ist ebenfalls in nur 2,5 km erreichbar. Die Nähe zu diesen wichtigen Punkten ermöglicht es Ihnen, das Beste aus beiden Welten zu genießen - die Ruhe einer neuen Siedlung und die Annehmlichkeiten einer lebendigen Stadt. Diese seltene Kombination macht dieses Penthouse zu einem begehrten Juwel in Poreč.
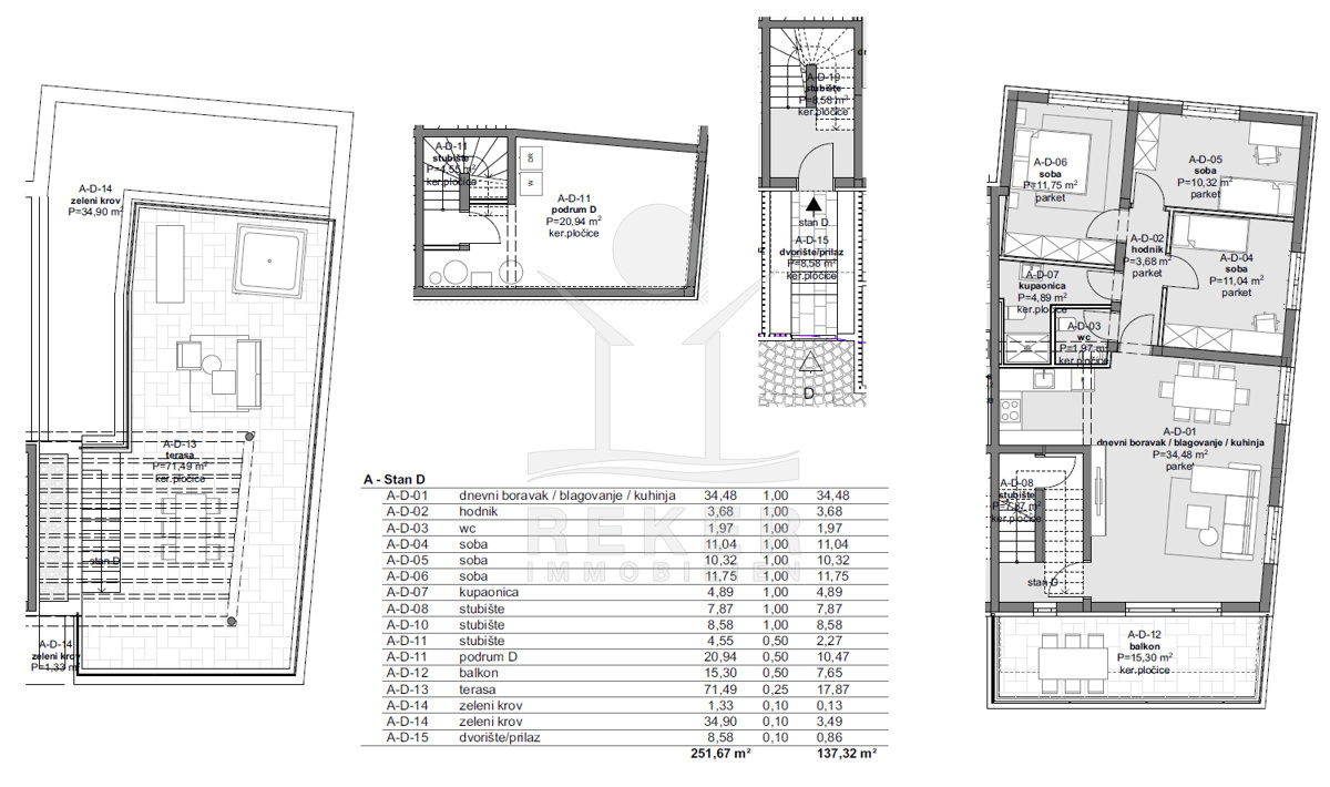
Die Immobilie mit Wohnfläche von 137 m² befindet sich im 1. Stock eines Gebäudes mit nur vier Wohneinheiten. Die Fertigstellung des Objektes ist voraussichtlich für das Frühjahr 2024 geplant. Zudem verfügt das Penthouse über zwei Parkplätze im Hof, die über einen separat genutzten Eingang und Weg zugänglich sind.
Eine Innentreppe führt Sie auf eine großzügige Dachterrasse, die einen absolut wundervollen Panoramablick auf das Meer bietet und eine fantastische Atmosphäre schafft. Darüber hinaus verfügt das Penthouse über zwei Balkone, einen Abstellraum im Keller mit Fläche von 21 m². Die Verwendung hochwertiger Baumaterialien garantiert eine erstklassige Wohnqualität. Erleben Sie den Luxus und den traumhaften Ausblick!
Das Penthouse bietet eine erstklassige Ausstattung mit Klimaanlage, Fußbodenheizung und hochwertigen Parkettböden. Der Eingangsbereich mit Garderobe führt zu einem offenen Wohn- und Esszimmer mit einer Küche. Von hier aus haben Sie direkten Zugang auf einen Balkon. Es gibt drei Schlafzimmer, ein Badezimmer und ein Gäste-WC rundet das Angebot ab. Genießen Sie modernes Wohnen in einer einzigartigen Umgebung.



Das Adriatische Meer
- Meerentfernung: 2 km
- Aussicht: Meerblick
Die Immobilie
- Penthouse in Poreč, Istrien
- Baujahr: 2023
- Zustand: Erstbezug
- Wohnfläche: 137 m²
- Etagenzahl: 2
Ausstattung
- Anzahl Zimmer: 4
- Anzahl Schlafzimmer: 3
- Anzahl Badezimmer: 1
- Heizung: Zentralheizung, Fußbodenheizung, Klimaanlage
- Unterkellert
- Sicherheit: Video-Gegensprechanlage
Das Penthouse erwartet Sie in Poreč!
Die Stadt ist wegen der guten Lage und des umfangreichen Tourismusangebots mehrfach ausgezeichnet worden. Sie ist eine der bedeutendsten Küstenstädte an der Westküste der Halbinsel Istrien in Kroatien.
- Ort: Poreč (Stadt)
- Einwohnerzahl: 16.696 (2011)
- Region: Istrien
- Autobahnentfernung: ca. 10 km *
- Nächster Flughafen: Pula / ca. 56 km *
Immobiliendaten
- Objektart: Wohnung
- Objekttyp: Penthouse
- Baujahr: 2023
- ID: 5646
- Kaufpreis: 549.280 €
- Provision: 3,75 % inkl. MwSt. in Kroatien
- Wohnfläche: 137 m²
- Anzahl Zimmer: 4
- Anzahl Schlafzimmer: 3
- Anzahl Badezimmer: 1
- Land: Kroatien
- Region: Istrien
- Ort: Poreč
- Meerentfernung: 2 km
- Ortsmitte: 2500 m
Haben Sie Interesse das schöne Penthouse zu besitzen?
Nehmen Sie gerne Kontakt mit mir auf!
Ich bin Heiner Reker, Gründer und
Geschäftsführer von Reker Immobilien d.o.o. Ich begleite Sie bei Ihrer aufregenden Reise in die Welt der Immobilien in Kroatien.
Gerne organisiere ich persönlich mit meinen qualifizierten Partnern jeden Schritt bei Ihrem rechtssicheren und stressfreien Immobilienkauf in Kroatien.
Füllen Sie das Formular aus und ich melde mich gerne zum gewünschten Zeitpunkt bei Ihnen.
Bis bald
Exposé mitnehmen?
Laden Sie unser PDF-Exposé herunter und Sie haben die wichtigste Objektdaten & Bilder immer zur Hand
Exposé mitnehmen?
Nehmen Sie Kontakt mit uns auf, ein Exposé schicken wir gerne per E-Mail
Ihre Traum-Immobilie noch nicht gefunden?
Besuchen Sie diese Seiten!
