EXKLUSIVE PENTHOUSE NEUBAUWOHNUNG MIT DACHTERRASSE, AUFZUG & MEER-PANORAMABLICK IN NIN
Luxuriöses Penthouse in Nin, Nähe Zadar
Die Penthouse-Wohnung befindet sich in der begehrten Lage in Nin, nur 100 Meter vom Meer entfernt. Die Stadt Nin, die als die älteste kroatische Stadt gilt, liegt nur 15 km von Zadar entfernt und ist bekannt für ihre zahlreichen Sandstrände, darunter der berühmte Königsstrand. Nin bietet alles, was man für den Alltag und den Urlaub braucht, von gemütlichen Cafés und Restaurants bis hin zu Gesundheitseinrichtungen wie der Freiluft-Sommerklinik mit dem heilenden Schlamm. Das Stadtzentrum, das sich auf einer Insel befindet und durch zwei Brücken verbunden ist, beherbergt die kleinste Kathedrale der Welt sowie historische Sehenswürdigkeiten wie die Saline, ein Museum und eine Fischzucht. Nin verfügt über alle notwendigen Einrichtungen wie Schulen, Gesundheitsversorgung, Apotheken, Einkaufszentren und vieles mehr. Diese Lage bietet nicht nur eine ausgezeichnete Infrastruktur, sondern auch eine wunderschöne Umgebung zum Leben und Entspannen.
Moderne Eleganz auf höchstem Niveau
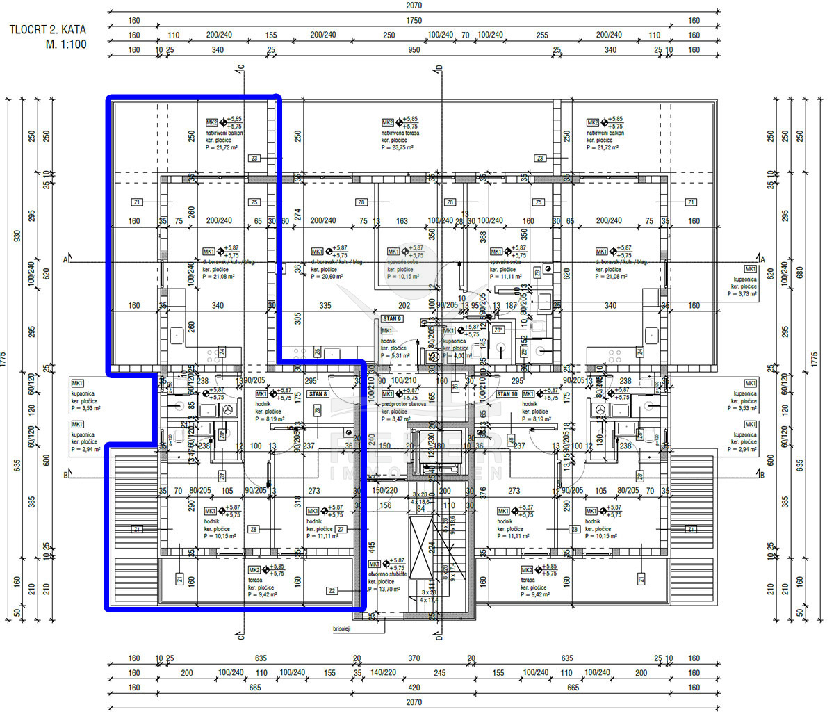
In einem exklusiven Neubauprojekt mit insgesamt 10 Wohnungen erwartet Sie dieses exklusive Penthouse mit einer Flächen von 112 m² im 2. Stock. Die hochwertige Ausstattung umfasst ausschließlich Materialien namhafter Hersteller. Mit einem Aufzug im Gebäude, Sicherheitstür, 3-facher Verglasung, Moskitonetzen, elektrischen Jalousien, Klimaanlage in Schlafzimmer und Wohnzimmer sowie Fußbodenheizung in den Badezimmern bietet diese Wohnung ein luxuriöses Wohnerlebnis. Die Fertigstellung ist für Juni 2025 geplant.
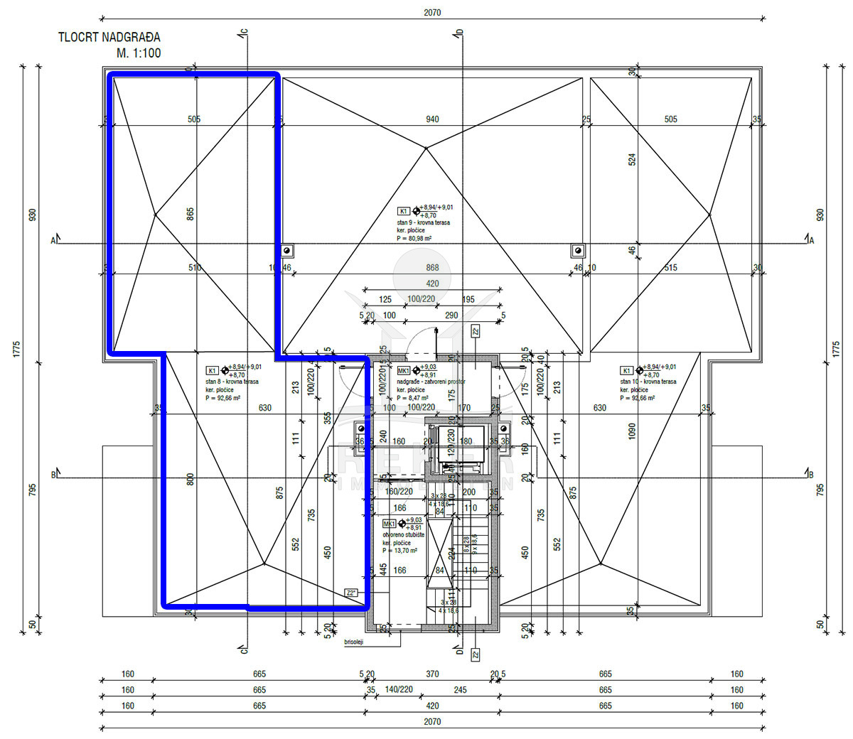
Die ausgedehnte Dachterrasse mit 92,66 m² bietet einen atemberaubenden Panoramablick auf das Meer und lädt zum Verweilen und Genießen ein. Hier können Sie wahre Freude finden und jeden Tag das Leben im Freien in vollen Zügen genießen. Zwei Stellplätze stehen Ihnen zur Verfügung, um Ihr Fahrzeug bequem und sicher unterzubringen. Dieses exklusive Penthouse ist der perfekte Ort für anspruchsvolle Käufer, die auf der Suche nach modernem Luxus und Eleganz sind.
Die Penthouse-Wohnung bietet eine gut durchdachte Raumaufteilung, bestehend aus einem einladenden Flur, einem geräumigen Schlafzimmer, einem weiteren Schlafzimmer, einem separaten Badezimmer, einem WC, einem Wohn-, Ess- und Küchenbereich für schöne Zusammenkünfte. Ein zugänglicher Balkon rundet das Angebot ab, ideal für entspannte Momente im Freien.
Das Penthouse erwartet Sie in Nin!
- Ort: Nin (Stadt)
- Einwohnerzahl: 2.876 (2011)
- Region: Dalmatien-Zadar
- Autobahnentfernung: ca. 28 km *
- Nächster Flughafen: Zadar / ca. 26 km *
Immobiliendaten
- Objektart: Wohnung
- Objekttyp: Penthouse
- Baujahr: 2025
- ID: 7186
- Kaufpreis: 450.000 €
- Provision: 3,75 % inkl. MwSt. in Kroatien
- Wohnfläche: 112 m²
- Anzahl Zimmer: 3
- Anzahl Schlafzimmer: 2
- Anzahl Badezimmer: 1
- Land: Kroatien
- Region: Dalmatien-Zadar
- Ort: Nin
- Lage: Stadtteil
- Meerentfernung: 100 m
Haben Sie Interesse das schöne Penthouse zu besitzen?
Nehmen Sie gerne Kontakt mit mir auf!
Ich bin Heiner Reker, Gründer und
Geschäftsführer von Reker Immobilien d.o.o. Ich begleite Sie bei Ihrer aufregenden Reise in die Welt der Immobilien in Kroatien.
Gerne organisiere ich persönlich mit meinen qualifizierten Partnern jeden Schritt bei Ihrem rechtssicheren und stressfreien Immobilienkauf in Kroatien.
Füllen Sie das Formular aus und ich melde mich gerne zum gewünschten Zeitpunkt bei Ihnen.
Bis bald
Exposé mitnehmen?
Laden Sie unser PDF-Exposé herunter und Sie haben die wichtigste Objektdaten & Bilder immer zur Hand
Exposé mitnehmen?
Nehmen Sie Kontakt mit uns auf, ein Exposé schicken wir gerne per E-Mail
Ihre Traum-Immobilie noch nicht gefunden?
Besuchen Sie diese Seiten!















