LUXUS AUF ZWEI EBENEN: 122 M² WOHNFLÄCHE, 79 M² DACHTERRASSE, PANORAMA-MEERBLICK
Lage & Außenbereich
In Zaton, einem charmanten Ortsteil bei Nin, entsteht ein hochwertiges Neubauprojekt, nur rund 100 Meter vom Meer entfernt. Die Anlage fügt sich harmonisch in das mediterrane Umfeld ein und eröffnet dank ihrer erhöhten Position einen weiten Blick auf die vorgelagerten Inseln und die Bucht von Zadar. Die Nähe zur Küste und die ruhige Nachbarschaft verleihen dem Ort eine Atmosphäre von Beständigkeit und Exklusivität.
Das Gebäude ist Teil einer edlen, geschlossenen Wohnanlage mit fünf Häusern. Sie erinnert an ein kleines Dorf. Zwei separate Treppenhäuser strukturieren die neun Wohnungen klar und sorgen für angenehme Privatsphäre. Jede Einheit verfügt über zwei Außenstellplätze und einen eigenen Abstellraum, praktisch und komfortabel. Gepflegte Grünflächen rahmen das Ensemble ein und unterstreichen den ruhigen, hochwertigen Charakter. Die Fertigstellung ist für das Frühjahr 2026 vorgesehen.
Innenraum & Interieur
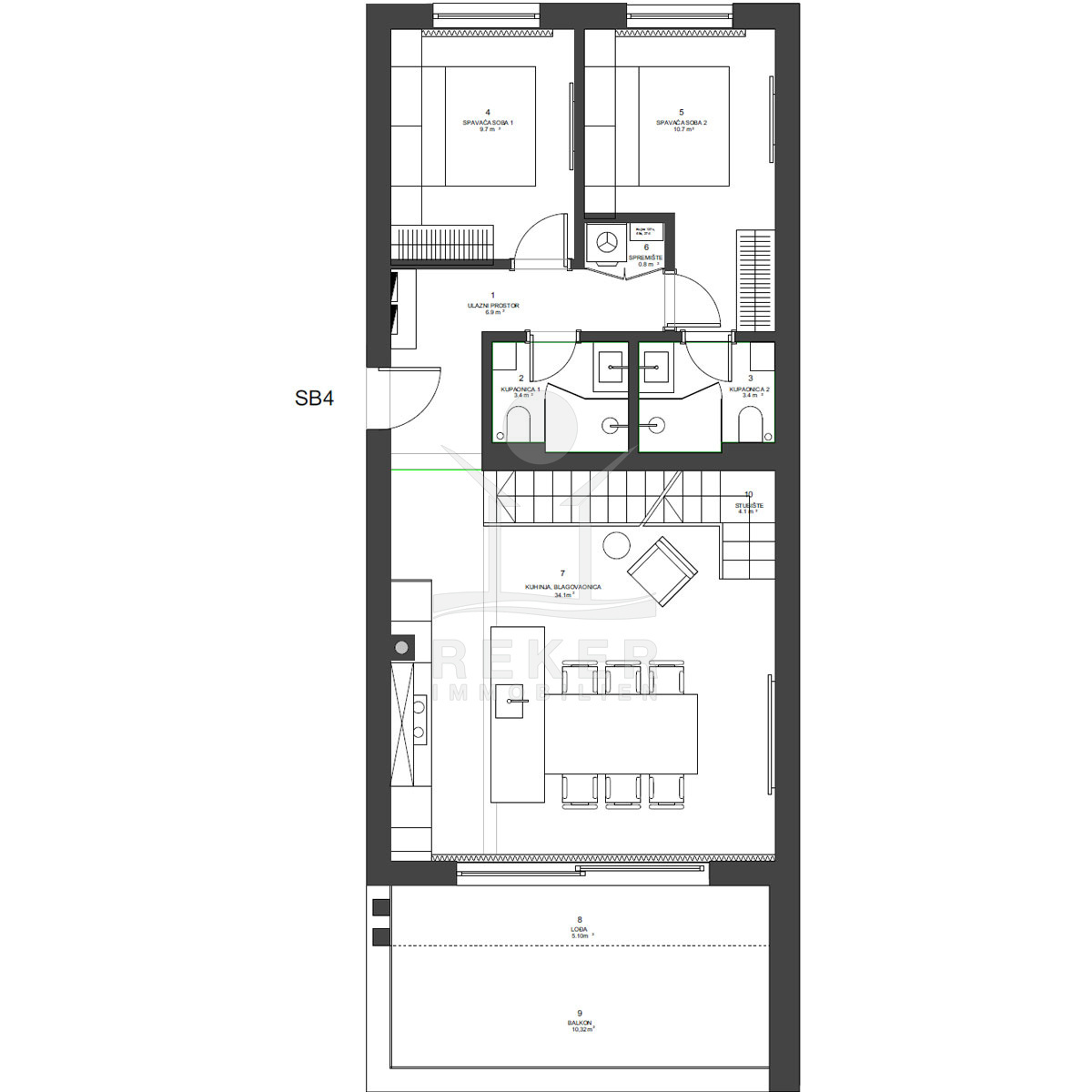
Dieses elegante Penthouse über zwei Etagen begeistert mit Großzügigkeit, moderner Technik und einem beeindruckenden Blick auf das Meer. Auf 122,70 m² Innenfläche empfängt Sie im 1. Obergeschoss ein weiter Wohnbereich mit offener Küche (34,10 m²). Hier lässt sich entspannen, kochen und das Leben genießen. Zwei Schlafzimmer, zwei Badezimmer sowie praktische Nebenräume wie Abstellflächen und ein Eingangsbereich sorgen für angenehmen Komfort. Eine Loggia (5,10 m²) und ein Balkon (10,49 m²) erweitern den Wohnraum nach draußen und schaffen fließende Übergänge zwischen Innen und Außen.
Im 2. Obergeschoss erwartet Sie eine helle Galerie (38,80 m²) mit zusätzlichem Badezimmer und separatem Gäste-WC. Von hier führt der Weg auf die großzügige Dachterrasse mit 79,67 m² Fläche und freiem Panorama-Meerblick. Ein Ort für Sonne, Ruhe und Privatsphäre. Wer mehr Raum wünscht, kann die obere Ebene gegen Aufpreis von etwa 200.000 € zu einem eigenständigen Wohnbereich mit Küche und Schlafzimmer ausbauen. Eine private Garage (19 m²) und ein Außenstellplatz (12,50 m²) gehören ebenfalls dazu.
Das Smart-Home-System steuert Heizung, Licht und Klima. Hochwertige Materialien, Fußbodenheizung und Aluminiumfenster mit elektrischen Rollläden sorgen für Sicherheit und ein angenehmes Wohngefühl. Dieses Penthouse verbindet Eleganz, Komfort und moderne Architektur an einem der schönsten Küstenorte der Adria.
Das Penthouse erwartet Sie in Nin!
- Ort: Nin (Stadt)
- Einwohnerzahl: 2.876 (2011)
- Region: Dalmatien-Zadar
- Autobahnentfernung: ca. 28 km *
- Nächster Flughafen: Zadar / ca. 26 km *
Immobiliendaten
- Objektart: Wohnung
- Objekttyp: Penthouse
- Baujahr: 2026
- ID: 9479
- Kaufpreis: 1.068.000 €
- Provision: 3,75 % inkl. MwSt. in Kroatien
- Wohnfläche: 233 m²
- Anzahl Zimmer: 4
- Anzahl Schlafzimmer: 2
- Anzahl Badezimmer: 3
- Land: Kroatien
- Region: Dalmatien-Zadar
- Ort: Nin
- Meerentfernung: 100 m
Haben Sie Interesse das schöne Penthouse zu besitzen?
Nehmen Sie gerne Kontakt mit mir auf!
Ich bin Heiner Reker, Gründer und
Geschäftsführer von Reker Immobilien d.o.o. Ich begleite Sie bei Ihrer aufregenden Reise in die Welt der Immobilien in Kroatien.
Gerne organisiere ich persönlich mit meinen qualifizierten Partnern jeden Schritt bei Ihrem rechtssicheren und stressfreien Immobilienkauf in Kroatien.
Füllen Sie das Formular aus und ich melde mich gerne zum gewünschten Zeitpunkt bei Ihnen.
Bis bald
Exposé mitnehmen?
Laden Sie unser PDF-Exposé herunter und Sie haben die wichtigste Objektdaten & Bilder immer zur Hand
Exposé mitnehmen?
Nehmen Sie Kontakt mit uns auf, ein Exposé schicken wir gerne per E-Mail
Ihre Traum-Immobilie noch nicht gefunden?
Besuchen Sie diese Seiten!

















