GÖNNEN SIE SICH DAS BESTE: TRAUMHAFTES PENTHOUSE MIT 2 ZIMMERN & MEERBLICK IN NIN BEI ZADAR
Luxus-Penthousewohnung direkt am Meer
Der Neubau befindet sich nur einen kleinen Gang vom Meer und Strand entfernt in Nin, einem geschichtsträchtigen Städtchen bei Zadar. Nin ist sanft eingebettet zwischen den imposanten Gipfeln des Velebit-Gebirges und der glitzernden Adria und bietet eine romantische Altstadt, die auf einer kleinen Insel inmitten einer bezaubernden Lagune liegt. Die Umgebung zeichnet sich durch eine ruhige, fast zeitlose Schönheit aus und begeistert mit verwinkelten Gassen, antiken Gebäuden und einer langen historischen Tradition. Die Stadt besticht mit einigen der reizvollsten Strände der Region, darunter der berühmte Königinnen-Strand mit seinem heilenden Schlamm und der idyllischen Lage. Aktivurlauber können die zahlreichen Wander- und Radwege erkunden, die durch malerische Landschaften und zu historischen Stätten führen. In gemütlichen Tavernen können Gäste traditionelle dalmatinische Spezialitäten genießen. Die ruhige und grüne Umgebung, die schöne Landschaft und das hervorragende Klima machen dieses Penthouse zu einem einzigartigen Rückzugsort.
Das Gebäude umfasst 9 Wohnungen auf zwei Etagen mit Panoramablick auf das Meer von der ersten und zweiten Etage. Modernes Design, hochwertige Bauweise und die Verwendung erstklassiger Materialien kennzeichnen die Ausstattung. Mit Klimaanlage ausgestattet und voraussichtlicher Fertigstellung im Dezember 2025 bieten die Wohnungen zwei Außenparkplätze und stehen exklusiv den Bewohnern zur Verfügung.
Perfektes Zuhause mit großzügigen Außenbereichen
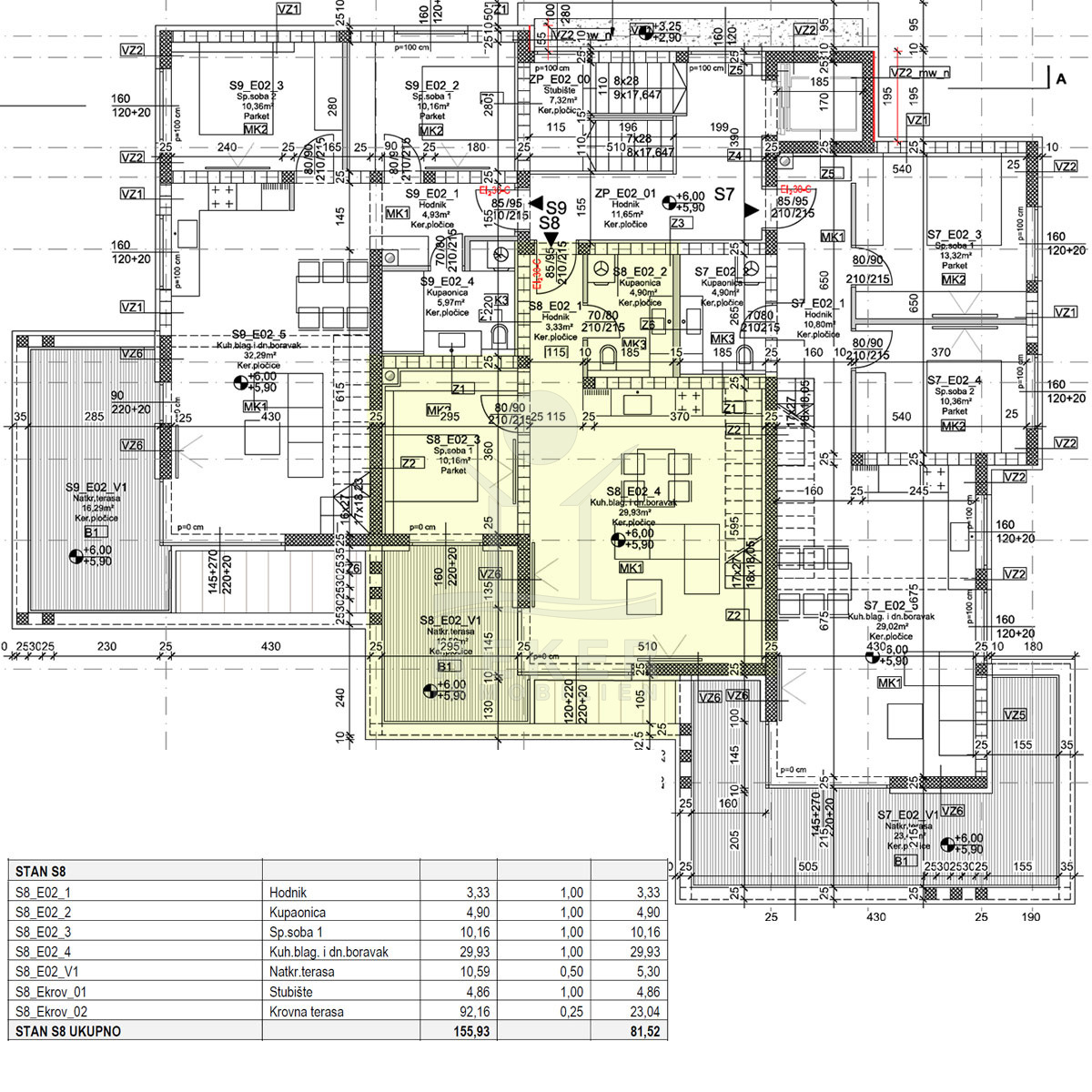
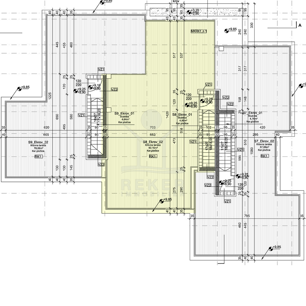
Die 82 m² große Wohnung bietet einen offenen Wohn-, Ess- und Küchenbereich sowie ein Schlafzimmer und ein Badezimmer. Genießen Sie die großzügigen Außenbereiche, darunter eine 92 m² große Dachterrasse und eine 11 m² große überdachte Terrasse, die perfekt sind, um das Leben ins Freie zu verlagern.
Das Penthouse erwartet Sie in Nin!
- Ort: Nin (Stadt)
- Einwohnerzahl: 2.876 (2011)
- Region: Dalmatien-Zadar
- Autobahnentfernung: ca. 28 km *
- Nächster Flughafen: Zadar / ca. 26 km *
Immobiliendaten
- Objektart: Wohnung
- Objekttyp: Penthouse
- Baujahr: 2025
- ID: 7584
- Kaufpreis: 365.000 €
- Provision: 3,75 % inkl. MwSt. in Kroatien
- Wohnfläche: 82 m²
- Anzahl Zimmer: 2
- Anzahl Schlafzimmer: 1
- Anzahl Badezimmer: 1
- Land: Kroatien
- Region: Dalmatien-Zadar
- Ort: Nin
- Lage: Ortslage
- Meerentfernung: 120 m
Haben Sie Interesse das schöne Penthouse zu besitzen?
Nehmen Sie gerne Kontakt mit mir auf!
Ich bin Heiner Reker, Gründer und
Geschäftsführer von Reker Immobilien d.o.o. Ich begleite Sie bei Ihrer aufregenden Reise in die Welt der Immobilien in Kroatien.
Gerne organisiere ich persönlich mit meinen qualifizierten Partnern jeden Schritt bei Ihrem rechtssicheren und stressfreien Immobilienkauf in Kroatien.
Füllen Sie das Formular aus und ich melde mich gerne zum gewünschten Zeitpunkt bei Ihnen.
Bis bald
Exposé mitnehmen?
Laden Sie unser PDF-Exposé herunter und Sie haben die wichtigste Objektdaten & Bilder immer zur Hand
Exposé mitnehmen?
Nehmen Sie Kontakt mit uns auf, ein Exposé schicken wir gerne per E-Mail
Ihre Traum-Immobilie noch nicht gefunden?
Besuchen Sie diese Seiten!






