LUXURIÖSES PENTHOUSE IM 2. STOCK MIT 4 SCHLAFZIMMERN & MODERNEM DESIGN IN KANFANAR
Penthouse-Neubauwohnung im Herzen Istriens
Der Neubau in Kanfanar besticht nicht nur durch hochwertige Bauweise, sondern auch durch ihre Lage im malerischen Landesinneren der Region Istrien. In einer ländlichen Umgebung finden Sie hier den idealen Ort für Entspannung und Erholung. Mit nur 700 Metern bis zum Zentrum des charmanten Ortes können Sie das lokale Leben hautnah erleben und die kulturellen Veranstaltungen, wie das beliebte Volksfest Jakovljevo, genießen. Die Entfernung von lediglich 17 km zum Meer macht diese Wohnung zu einem attraktiven Rückzugsort für Badeurlauber, während die beliebten Küstenorte Rovinj (18 km) und Vrsar nur einen kurzen Drive entfernt sind. Die atemberaubende Natur in der Umgebung lädt Wander- und Radfreunde dazu ein, die idyllischen Landschaften zu erkunden und die frische Luft zu genießen. Die gute Verkehrsanbindung zu den Flughäfen in Pula (34 km) und Venedig (246 km) sowie zur nächsten Autobahnauffahrt (4 km) sorgt dafür, dass Sie jederzeit einfach und bequem reisen können.
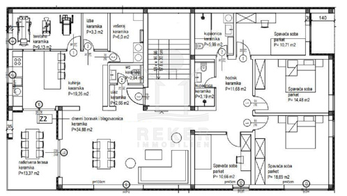
Das beeindruckende Penthouse von 166 m² befindet sich in einem stilvollen Gebäude, das insgesamt 8 hochwertige Wohnungen umfasst, verteilt auf 2 Etagen. Die Bauweise überzeugt durch erstklassige Ausstattungsdetails, darunter Fußbodenheizung in den Badezimmern und elegante italienische Keramikfliesen. Ein modernes, pflegeleichtes Vinylboden in den Wohnräumen verbindet Funktionalität mit einem ansprechenden Design. Mit einer isolierenden Fassadenstärke von 10 cm wird nicht nur die Energieeffizienz gefördert, sondern auch der Wohnkomfort auf ein ganz neues Niveau gehoben. Die Fertigstellung ist für das erste Quartal 2025 geplant, sodass Sie bald in Ihr neues, modernes Zuhause einziehen können. Jede Wohnung verfügt über 2 Parkplätze.
Moderne Lebensqualität mit Fitnessraum
Die Wohnung wird mit einer modernen Klimaanlage ausgestattet und verspricht ein angenehmes Wohnklima. Sie betreten die großzügige Eingangshalle, die Sie in den restlichen Wohnbereich führt und ein einladendes Gefühl vermittelt. Insgesamt bietet die Wohnung 4 Schlafzimmer, die ausreichend Platz für die ganze Familie bieten. Zwei Bäder sowie eine separate Toilette sorgen für Komfort und Funktionalität. Ein praktischer Hauswirtschaftsraum sorgt für Ordnung und zusätzlichen Stauraum. Die Küche mit angrenzendem Esszimmer lädt zu geselligen Mahlzeiten ein, während das Wohnzimmer mit Zugang zu einer geräumigen Westterrasse von 13 m² den idealen Platz für entspannte Abende im Freien bietet. Hier können Sie die Sonne genießen und die Freizeit in vollen Zügen auskosten.
Das Penthouse erwartet Sie in Kanfanar!
- Ort: Kanfanar (Gemeinde)
- Einwohnerzahl: 1.543 (2011)
- Region: Istrien
- Autobahnentfernung: ca. 2 km *
- Nächster Flughafen: Pula / ca. 34 km *
Immobiliendaten
- Objektart: Wohnung
- Objekttyp: Penthouse
- Baujahr: 2025
- ID: 8014
- Kaufpreis: 457.000 €
- Provision: 3,75 % inkl. MwSt. in Kroatien
- Wohnfläche: 166 m²
- Anzahl Zimmer: 6
- Anzahl Schlafzimmer: 4
- Anzahl Badezimmer: 2
- Land: Kroatien
- Region: Istrien
- Ort: Kanfanar
- Lage: Ortslage
- Meerentfernung: 17 km
Haben Sie Interesse das schöne Penthouse zu besitzen?
Nehmen Sie gerne Kontakt mit mir auf!
Ich bin Heiner Reker, Gründer und
Geschäftsführer von Reker Immobilien d.o.o. Ich begleite Sie bei Ihrer aufregenden Reise in die Welt der Immobilien in Kroatien.
Gerne organisiere ich persönlich mit meinen qualifizierten Partnern jeden Schritt bei Ihrem rechtssicheren und stressfreien Immobilienkauf in Kroatien.
Füllen Sie das Formular aus und ich melde mich gerne zum gewünschten Zeitpunkt bei Ihnen.
Bis bald
Exposé mitnehmen?
Laden Sie unser PDF-Exposé herunter und Sie haben die wichtigste Objektdaten & Bilder immer zur Hand
Exposé mitnehmen?
Nehmen Sie Kontakt mit uns auf, ein Exposé schicken wir gerne per E-Mail
Ihre Traum-Immobilie noch nicht gefunden?
Besuchen Sie diese Seiten!









