ZUM ERSTBEZUG MAISONETTE MIT 4 ZIMMERN & MEERBLICK IN VODICE
Ruhige Lage mit Nähe zum Meer & Stadtzentrum
Der Neubau liegt ruhig in einem angenehmen Stadtteil von Vodice, nur etwa 1500 m vom Meer und dem Stadtzentrum entfernt. In der Nähe finden Sie einen Supermarkt sowie eine ausgezeichnete Verkehrsanbindung. Diese ruhige Gegend ist noch nicht stark besiedelt und bietet eine entspannte, einladende Atmosphäre.
Die beeindruckende Maisonette befindet sich in einem erstklassigen Neubau mit insgesamt 8 Wohnungen auf 2 Etagen. Das Gebäude besticht durch sein modernes Erscheinungsbild und hochwertige Materialien, darunter 10 cm Styropor-Fassade, anthrazitfarbene PVC-Fenster und ALU-Hebe-Schiebetüren. Zu den weiteren Ausstattungsmerkmalen zählen elektrische Jalousien, Insektenschutzgitter sowie einbruchhemmende und feuerfeste Eingangstüren. Genießen Sie den Komfort keramischer Bodenbeläge und elektrischer Fußbodenheizung im Wohnzimmer, Küche und Badezimmer. Die moderne Badezimmerausstattung und Klimaanlagen sorgen für ein angenehmes Wohnklima. Der voraussichtliche Fertigstellungstermin ist für Juni 2025 geplant. Zwei Parkplätze sind ebenfalls verfügbar.
Modernes Wohnglück mit großzügigem Raumangebot
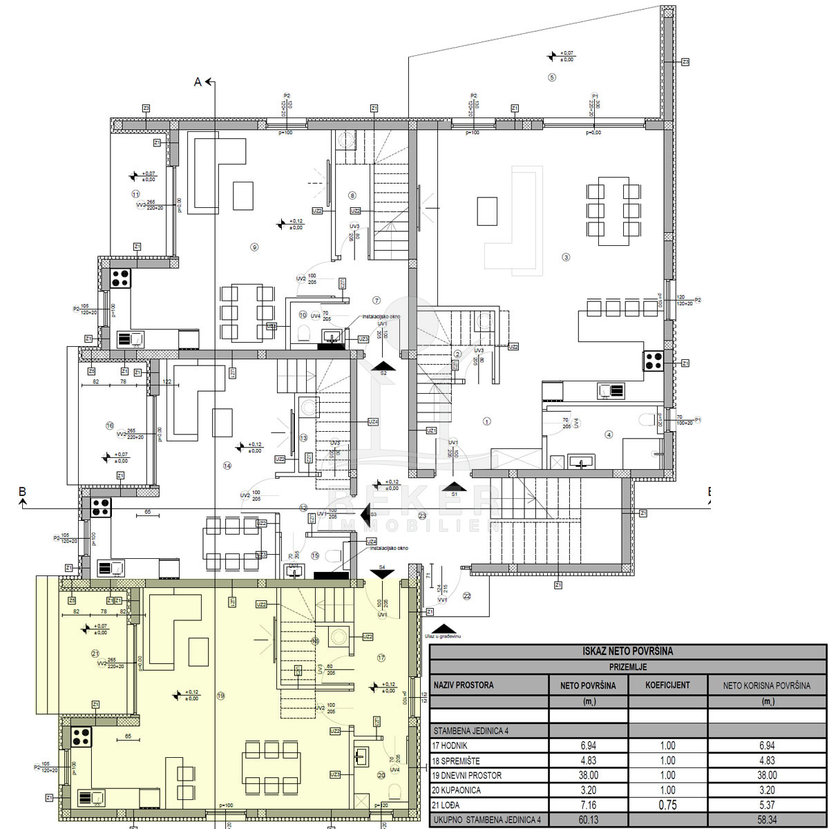
Erleben Sie das großzügige Raumangebot dieser lichtdurchfluteten Wohnung mit einer Gesamtfläche von 121 m². Im Erdgeschoss begrüßt Sie ein einladender Eingangsbereich, ein praktischer Abstellraum und ein komfortables Badezimmer. Der offene Wohn-, Ess- und Küchenbereich schafft eine harmonische Atmosphäre, die durch die angrenzende Loggia (7 m²) ideal ergänzt wird.
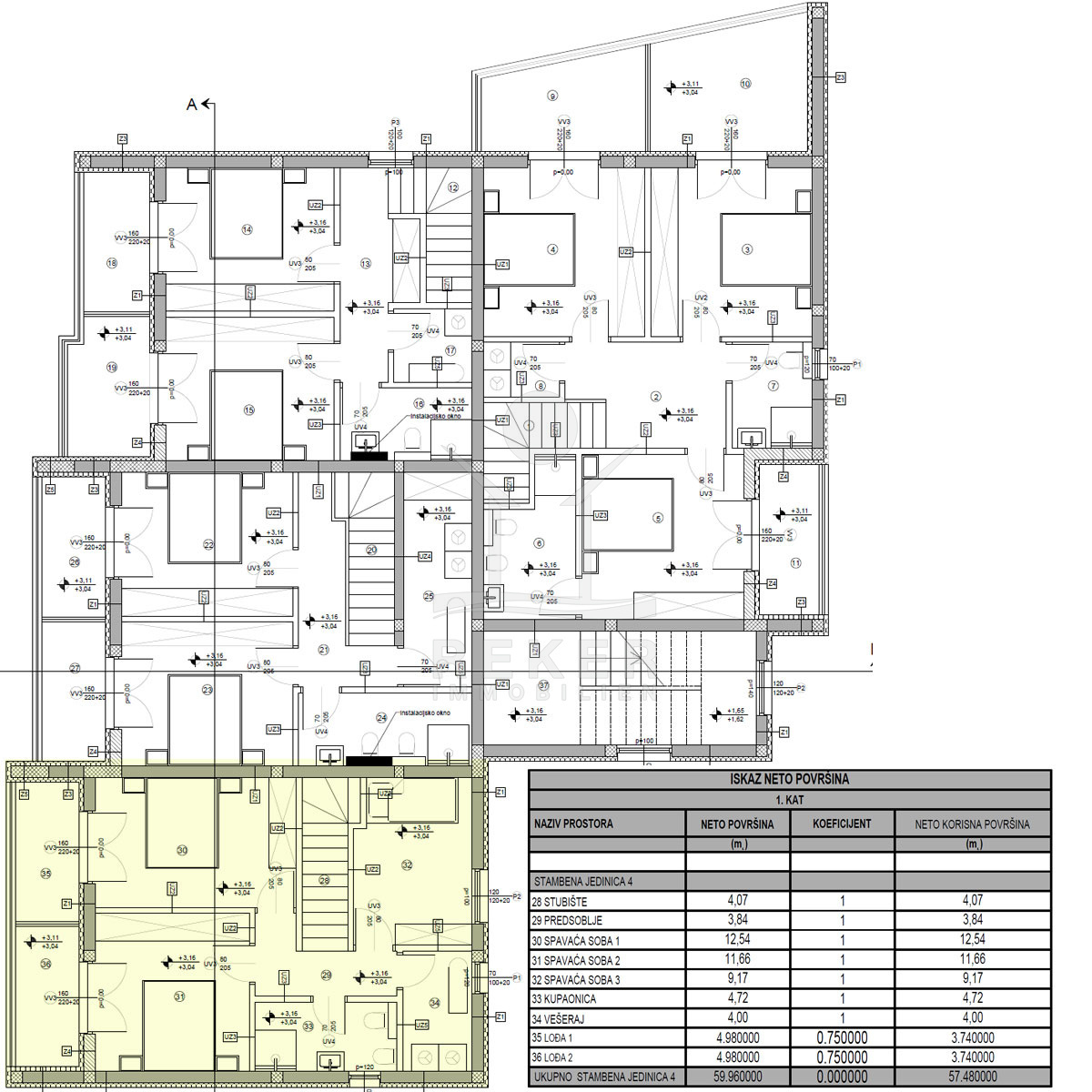
Die interne Treppe führt Sie ins Obergeschoss, wo ein Vorzimmer und 3 hellen Schlafzimmer auf Sie warten, die mit einem weiteren Badezimmer und 2 Loggien (insgesamt 10 m²) aufwarten. Perfekt für entspannte Stunden im Freien!
Die Maisonette erwartet Sie in Vodice!
- Ort: Vodice (Stadt)
- Einwohnerzahl: 8.875 (2011)
- Region: Dalmatien-Sibenik
- Autobahnentfernung: ca. 16 km *
- Nächster Flughafen: Zadar / ca. 62 km *
Immobiliendaten
- Objektart: Wohnung
- Objekttyp: Maisonette
- Baujahr: 2025
- ID: 8256
- Kaufpreis: 330.000 €
- Provision: 3,75 % inkl. MwSt. in Kroatien
- Wohnfläche: 121 m²
- Gartenfläche: 40 m²
- Anzahl Zimmer: 4
- Anzahl Schlafzimmer: 3
- Anzahl Badezimmer: 2
- Land: Kroatien
- Region: Dalmatien-Sibenik
- Ort: Vodice
- Lage: Stadtteil
- Meerentfernung: 2 km
Haben Sie Interesse die schöne Maisonette zu besitzen?
Nehmen Sie gerne Kontakt mit mir auf!
Ich bin Heiner Reker, Gründer und
Geschäftsführer von Reker Immobilien d.o.o. Ich begleite Sie bei Ihrer aufregenden Reise in die Welt der Immobilien in Kroatien.
Gerne organisiere ich persönlich mit meinen qualifizierten Partnern jeden Schritt bei Ihrem rechtssicheren und stressfreien Immobilienkauf in Kroatien.
Füllen Sie das Formular aus und ich melde mich gerne zum gewünschten Zeitpunkt bei Ihnen.
Bis bald
Exposé mitnehmen?
Laden Sie unser PDF-Exposé herunter und Sie haben die wichtigste Objektdaten & Bilder immer zur Hand
Exposé mitnehmen?
Nehmen Sie Kontakt mit uns auf, ein Exposé schicken wir gerne per E-Mail
Ihre Traum-Immobilie noch nicht gefunden?
Besuchen Sie diese Seiten!


















