MAISONETTE ZUM ERSTBEZUG MIT 3 ZIMMERN & ZAHLREICHEN ENTWICKLUNGSMÖGLICHKEITEN IN VODICE
Ruhige Lage mit Nähe zum Meer & Stadtzentrum
Der Neubau liegt ruhig in einem angenehmen Stadtteil von Vodice, nur etwa 1500 m vom Meer und dem Stadtzentrum entfernt. In der Nähe finden Sie einen Supermarkt sowie eine ausgezeichnete Verkehrsanbindung. Diese ruhige Gegend ist noch nicht stark besiedelt und bietet eine entspannte, einladende Atmosphäre.
Die beeindruckende Maisonette befindet sich in einem erstklassigen Neubau mit insgesamt 8 Wohnungen auf 2 Etagen. Das Gebäude besticht durch sein modernes Erscheinungsbild und hochwertige Materialien, darunter 10 cm Styropor-Fassade, anthrazitfarbene PVC-Fenster und ALU-Hebe-Schiebetüren. Zu den weiteren Ausstattungsmerkmalen zählen elektrische Jalousien, Insektenschutzgitter sowie einbruchhemmende und feuerfeste Eingangstüren. Genießen Sie den Komfort keramischer Bodenbeläge und elektrischer Fußbodenheizung im Wohnzimmer, Küche und Badezimmer. Die moderne Badezimmerausstattung und Klimaanlagen sorgen für ein angenehmes Wohnklima. Der voraussichtliche Fertigstellungstermin ist für Juni 2025 geplant. Zwei Parkplätze sind ebenfalls verfügbar.
Traumhafte Wohnung mit großzügigem Raumangebot
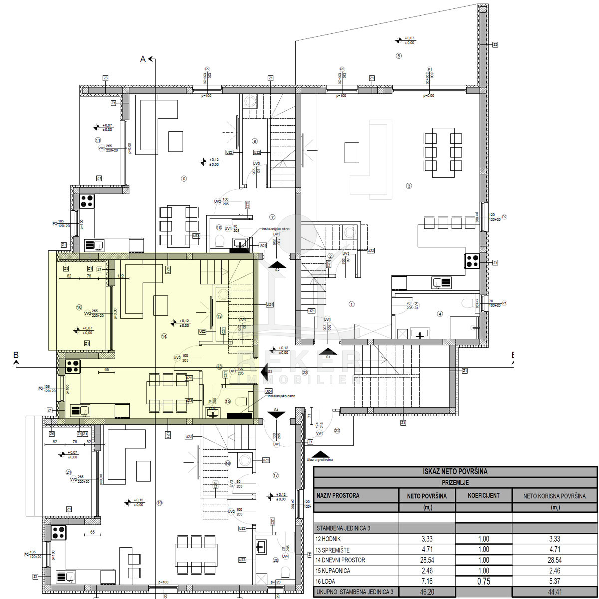
Die großzügige Wohnung bietet Ihnen auf 107 m² alles, was Sie sich wünschen. Im Erdgeschoss begrüßt Sie ein einladender Eingangsbereich, ein praktischer Abstellraum und ein modernes Badezimmer. Der offene Wohn-, Ess- und Küchenbereich ist perfekt für gesellige Abende und führt zur 7 m² großen Loggia, die zusätzlichen Raum für Entspannung im Freien bietet.
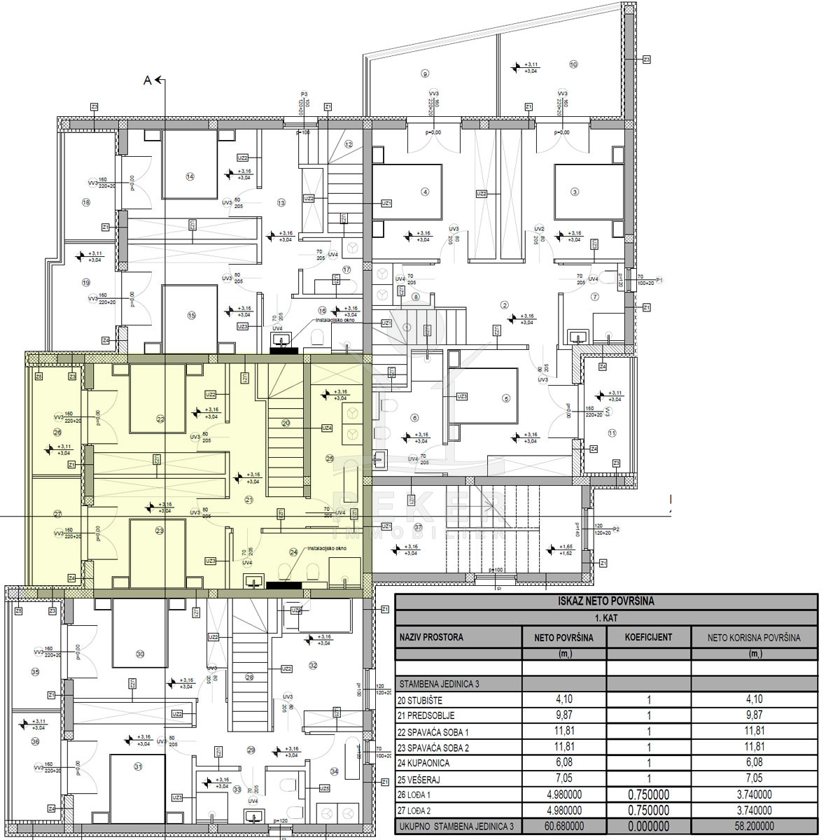
Eine interne Treppe führt Sie ins Obergeschoss, wo Sie ein Vorzimmer, zwei gemütliche Schlafzimmer, ein weiteres Badezimmer und einen Hauswirtschaftsraum erwarten. Von den zwei 10 m² großen Loggien aus genießen Sie den Blick auf die Umgebung.
Die Maisonette erwartet Sie in Vodice!
- Ort: Vodice (Stadt)
- Einwohnerzahl: 8.875 (2011)
- Region: Dalmatien-Sibenik
- Autobahnentfernung: ca. 16 km *
- Nächster Flughafen: Zadar / ca. 62 km *
Immobiliendaten
- Objektart: Wohnung
- Objekttyp: Maisonette
- Baujahr: 2025
- ID: 8255
- Kaufpreis: 295.000 €
- Provision: 3,75 % inkl. MwSt. in Kroatien
- Wohnfläche: 107 m²
- Gartenfläche: 40 m²
- Anzahl Zimmer: 3
- Anzahl Schlafzimmer: 2
- Anzahl Badezimmer: 2
- Land: Kroatien
- Region: Dalmatien-Sibenik
- Ort: Vodice
- Lage: Stadtteil
- Meerentfernung: 2 km
Haben Sie Interesse die schöne Maisonette zu besitzen?
Nehmen Sie gerne Kontakt mit mir auf!
Ich bin Heiner Reker, Gründer und
Geschäftsführer von Reker Immobilien d.o.o. Ich begleite Sie bei Ihrer aufregenden Reise in die Welt der Immobilien in Kroatien.
Gerne organisiere ich persönlich mit meinen qualifizierten Partnern jeden Schritt bei Ihrem rechtssicheren und stressfreien Immobilienkauf in Kroatien.
Füllen Sie das Formular aus und ich melde mich gerne zum gewünschten Zeitpunkt bei Ihnen.
Bis bald
Exposé mitnehmen?
Laden Sie unser PDF-Exposé herunter und Sie haben die wichtigste Objektdaten & Bilder immer zur Hand
Exposé mitnehmen?
Nehmen Sie Kontakt mit uns auf, ein Exposé schicken wir gerne per E-Mail
Ihre Traum-Immobilie noch nicht gefunden?
Besuchen Sie diese Seiten!

















