MAISONETTE ZUM ERSTBEZUG MIT MEERBLICK & 3 SCHLAFZIMMERN IN VODICE
Ruhige Lage mit bester Anbindung
Der Neubau liegt in einem ruhigen Stadtteil von Vodice, nur etwa 1500 m vom Meer und vom Zentrum entfernt. In der Nähe finden Sie einen Supermarkt und eine gute Anbindung an die Verkehrswege. Trotz der unmittelbaren Nähe zur Stadt ist dieser Teil von Vodice charmant und entspannend, perfekt für all jene, die eine ruhige Wohnatmosphäre suchen.
Die beeindruckende Maisonette befindet sich in einem erstklassigen Neubau mit insgesamt 8 Wohnungen auf 2 Etagen. Das Gebäude besticht durch sein modernes Erscheinungsbild und hochwertige Materialien, darunter 10 cm Styropor-Fassade, anthrazitfarbene PVC-Fenster und ALU-Hebe-Schiebetüren. Zu den weiteren Ausstattungsmerkmalen zählen elektrische Jalousien, Insektenschutzgitter sowie einbruchhemmende und feuerfeste Eingangstüren. Genießen Sie den Komfort keramischer Bodenbeläge und elektrischer Fußbodenheizung im Wohnzimmer, Küche und Badezimmer. Die moderne Badezimmerausstattung und Inerter Klimaanlagen sorgen für ein angenehmes Wohnklima. Der voraussichtliche Fertigstellungstermin ist für Juni 2025 geplant. Zwei Parkplätze sind ebenfalls verfügbar.
Geräumige Wohnung mit durchdachter Raumaufteilung
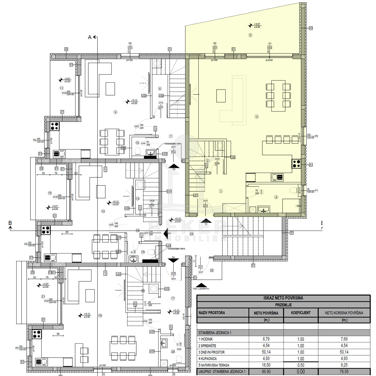
Die Wohnung beeindruckt mit einer großzügigen Gesamtwohnfläche von 172 m² und bietet eine praktische Raumaufteilung. Im Erdgeschoss erwartet Sie ein einladender Eingangsbereich, ein Abstellraum, ein Badezimmer sowie ein offen gestaltetes Wohn-, Ess- und Küchenzimmer. Von hier aus haben Sie direkten Zugang zu einer komfortablen Terrasse von 18 m², ideal für entspannte Stunden im Freien.
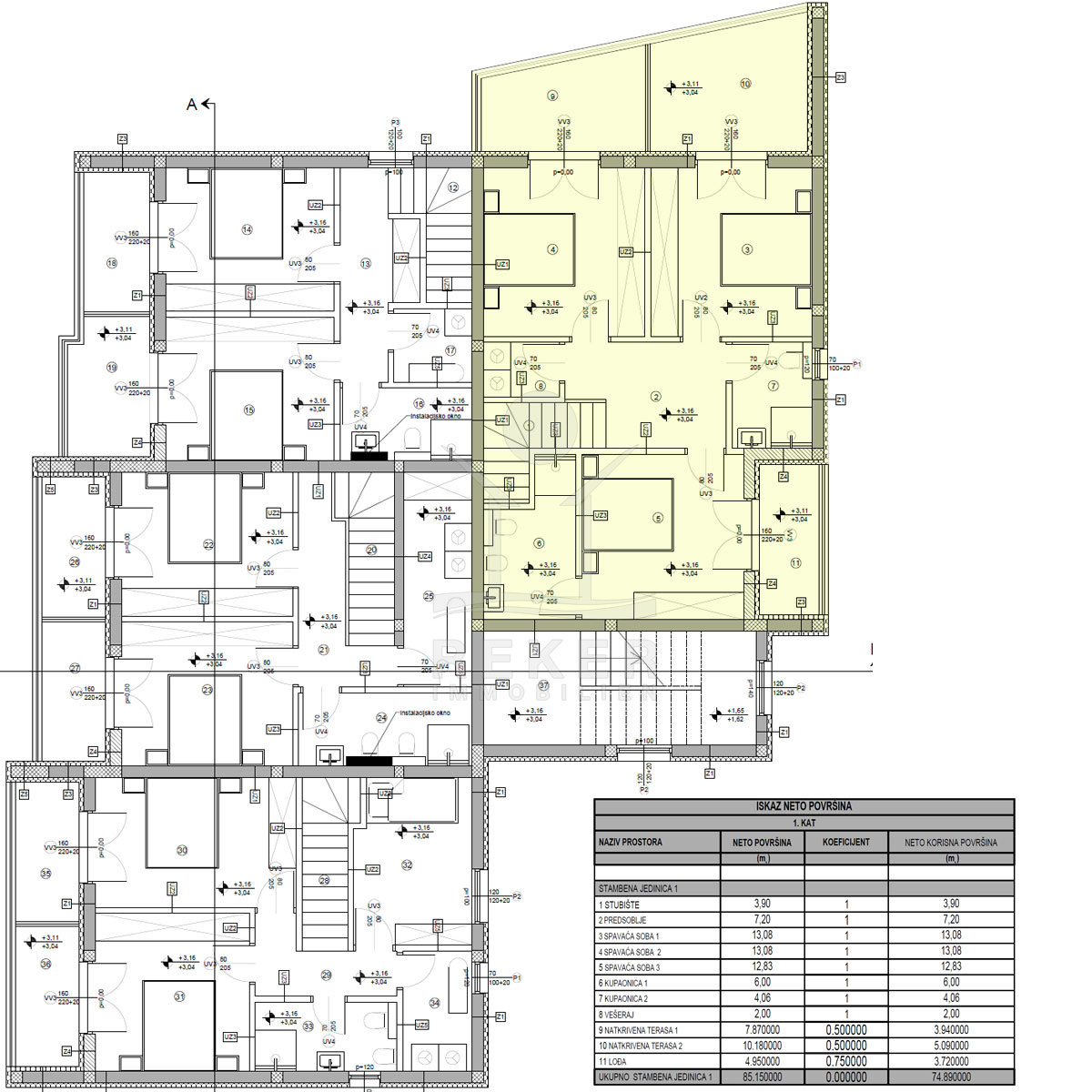
Im Obergeschoss führt eine interne Treppe zu einem einladenden Vorzimmer sowie drei gemütlichen Schlafzimmern. Die beiden Badezimmer und der Waschraum sorgen für zusätzlichen Komfort. Vom Obergeschoss gelangen Sie zu einem weiteren zugänglichen Terrasse/Loggien, die zusammen 23 m² bieten für entspannte Stunden im Freien.
Die Maisonette erwartet Sie in Vodice!
- Ort: Vodice (Stadt)
- Einwohnerzahl: 8.875 (2011)
- Region: Dalmatien-Sibenik
- Autobahnentfernung: ca. 16 km *
- Nächster Flughafen: Zadar / ca. 62 km *
Immobiliendaten
- Objektart: Wohnung
- Objekttyp: Maisonette
- Baujahr: 2025
- ID: 8253
- Kaufpreis: 395.000 €
- Provision: 3,75 % inkl. MwSt. in Kroatien
- Wohnfläche: 172 m²
- Gartenfläche: 140 m²
- Anzahl Zimmer: 4
- Anzahl Schlafzimmer: 3
- Anzahl Badezimmer: 3
- Land: Kroatien
- Region: Dalmatien-Sibenik
- Ort: Vodice
- Lage: Stadtteil
- Meerentfernung: 2 km
Haben Sie Interesse die schöne Maisonette zu besitzen?
Nehmen Sie gerne Kontakt mit mir auf!
Ich bin Heiner Reker, Gründer und
Geschäftsführer von Reker Immobilien d.o.o. Ich begleite Sie bei Ihrer aufregenden Reise in die Welt der Immobilien in Kroatien.
Gerne organisiere ich persönlich mit meinen qualifizierten Partnern jeden Schritt bei Ihrem rechtssicheren und stressfreien Immobilienkauf in Kroatien.
Füllen Sie das Formular aus und ich melde mich gerne zum gewünschten Zeitpunkt bei Ihnen.
Bis bald
Exposé mitnehmen?
Laden Sie unser PDF-Exposé herunter und Sie haben die wichtigste Objektdaten & Bilder immer zur Hand
Exposé mitnehmen?
Nehmen Sie Kontakt mit uns auf, ein Exposé schicken wir gerne per E-Mail
Ihre Traum-Immobilie noch nicht gefunden?
Besuchen Sie diese Seiten!
















