MEERBLICK VOM BALKON, DREI SCHLAFZIMMER, MODERNE AUSSTATTUNG – NEUBAU 2023
Lage & Außenbereich
Nur ein paar Schritte vom Zentrum entfernt, aber trotzdem ruhig. Dieses Haus steht in einer gewachsenen Wohngegend, ohne Durchgangsverkehr. Alles für den Alltag ist bequem erreichbar. Supermarkt, Schule, Café: alles nah dran. Zum Meer sind es rund zwei Kilometer. Ab dem ersten Stock öffnet sich der Blick aufs Wasser.
Das Haus hat drei Etagen und nur vier Wohneinheiten. Jede Wohnung ist zweigeschossig – Maisonette-Stil. Der Neubau stammt aus dem Jahr 2023. Kein Aufzug, aber ein helles, gepflegtes Treppenhaus mit Natursteinstufen. Alle Wohnungen haben einen eigenen Abstellraum im Untergeschoss. Dazu gehört je ein Stellplatz direkt vor dem Haus. Der Außenbereich ist sauber gepflastert, mit einem blickdichten Zaun eingefasst.
Innenraum & Interieur
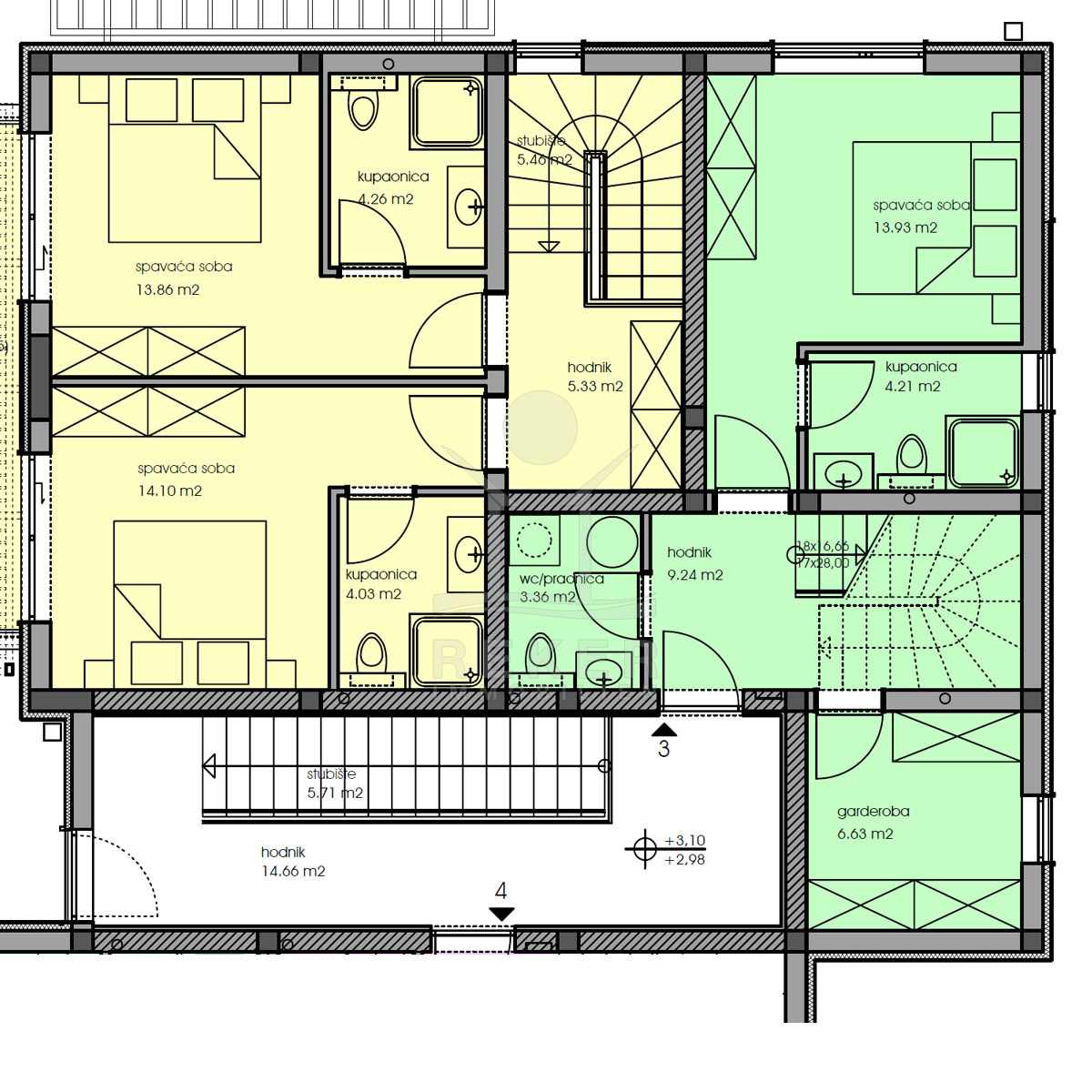
Diese Wohnung bietet das, was viele suchen – aber nur wenige finden: Platz auf zwei Ebenen, Privatsphäre und den Blick aufs Meer direkt vom Balkon aus. Die Maisonette beginnt im ersten Stock. Dort erwartet Sie ein geräumiger Eingangsbereich mit praktischem Garderobenraum, ein separates WC mit Waschmaschinenanschluss und ein Schlafzimmer mit eigenem Bad. Ein zweites Schlafzimmer liegt gleich nebenan. Die Innentreppe führt nach oben in den offenen Wohnbereich. Groß, hell, ruhig. Kochen, essen, entspannen – alles fließt ineinander. Und draußen: der überdachte Balkon mit freiem Meerblick. Hier lässt sich der Tag beginnen oder beenden. Wer möchte, kann sogar einen Whirlpool einbauen (Anschluss vorhanden).
Auf dieser Etage finden Sie außerdem ein weiteres Schlafzimmer sowie ein zweites Bad mit Dusche. Der gesamte Wohnbereich ist mit großformatigen Fliesen ausgestattet, die Fußbodenheizung sorgt für angenehme Wärme, auch im Winter. Die Klimaanlage bringt an heißen Tagen die nötige Frische. Alle Fenster sind aus ALU-PVC mit elektrischen Rollläden.
Die Maisonette erwartet Sie in Tar!
- Ort: Tar (Dorf)
- Einwohnerzahl: 886 (2001)
- Region: Istrien
- Autobahnentfernung: ca. 13 km *
- Nächster Flughafen: Pula / ca. 62 km *
Immobiliendaten
- Objektart: Wohnung
- Objekttyp: Maisonette
- Baujahr: 2023
- ID: 9144
- Kaufpreis: 415.000 €
- Provision: 3,75 % inkl. MwSt. in Kroatien
- Wohnfläche: 129 m²
- Anzahl Zimmer: 4
- Anzahl Schlafzimmer: 3
- Anzahl Badezimmer: 2
- Land: Kroatien
- Region: Istrien
- Ort: Tar
- Lage: Ortslage
- Meerentfernung: 2 km
Haben Sie Interesse die schöne Maisonette zu besitzen?
Nehmen Sie gerne Kontakt mit mir auf!
Ich bin Heiner Reker, Gründer und
Geschäftsführer von Reker Immobilien d.o.o. Ich begleite Sie bei Ihrer aufregenden Reise in die Welt der Immobilien in Kroatien.
Gerne organisiere ich persönlich mit meinen qualifizierten Partnern jeden Schritt bei Ihrem rechtssicheren und stressfreien Immobilienkauf in Kroatien.
Füllen Sie das Formular aus und ich melde mich gerne zum gewünschten Zeitpunkt bei Ihnen.
Bis bald
Exposé mitnehmen?
Laden Sie unser PDF-Exposé herunter und Sie haben die wichtigste Objektdaten & Bilder immer zur Hand
Exposé mitnehmen?
Nehmen Sie Kontakt mit uns auf, ein Exposé schicken wir gerne per E-Mail
Ihre Traum-Immobilie noch nicht gefunden?
Besuchen Sie diese Seiten!








































