GENIESSEN SIE DEN KOMFORT EINES NEUBAUS: MAISONETTE MIT 4 ZIMMERN & DACHTERRASSE IN VODICE

Luxuriöses Wohnen in idealer Lage
Das außergewöhnliche Maisonette-Neubauprojekt bietet Ihnen die perfekte Kombination aus modernem Komfort und idealer Lage. Nur 1200 Meter vom glitzernden Meer und der atemberaubenden Uferpromenade entfernt, wohnen Sie in einer malerischen Küstenstadt, die zwischen Šibenik und Biograd na Moru liegt. Vodice überzeugt mit einer hervorragenden Infrastruktur, in der sich Supermärkte, Restaurants und ärztliche Versorgung in unmittelbarer Nähe befinden. Die fast 4 km lange Uferpromenade ist ein lebendiger Anziehungspunkt, während die charmanten, ruhigen Gassen der Altstadt einen authentischen Einblick in die Geschichte der Region bieten. Der beliebte Stadtstrand Plava Plaza, bekannt für seinen flach ins kristallklare Meer abfallenden Kiesel, ist ideal für Familien und bietet zahlreiche Freizeitmöglichkeiten. Entlang des Strandes erwarten Sie einladende Eisdielen und Bars, die für kulinarische Erfrischungen sorgen. Die Umgebung von Vodice ist reich an Aktivitäten. Genussvoll können Sie abends die Köstlichkeiten der dalmatinischen Küche in den Restaurants entlang der Uferpromenade erleben und dabei die Aussicht auf den großen Yachthafen genießen. Highlights wie der nahegelegene Nationalpark Krka mit seinen beeindruckenden Wasserfällen runden das Angebot ab. Diese Lage ermöglicht Ihnen eine optimale Lebensqualität in einer der vielseitigsten Regionen Kroatiens.
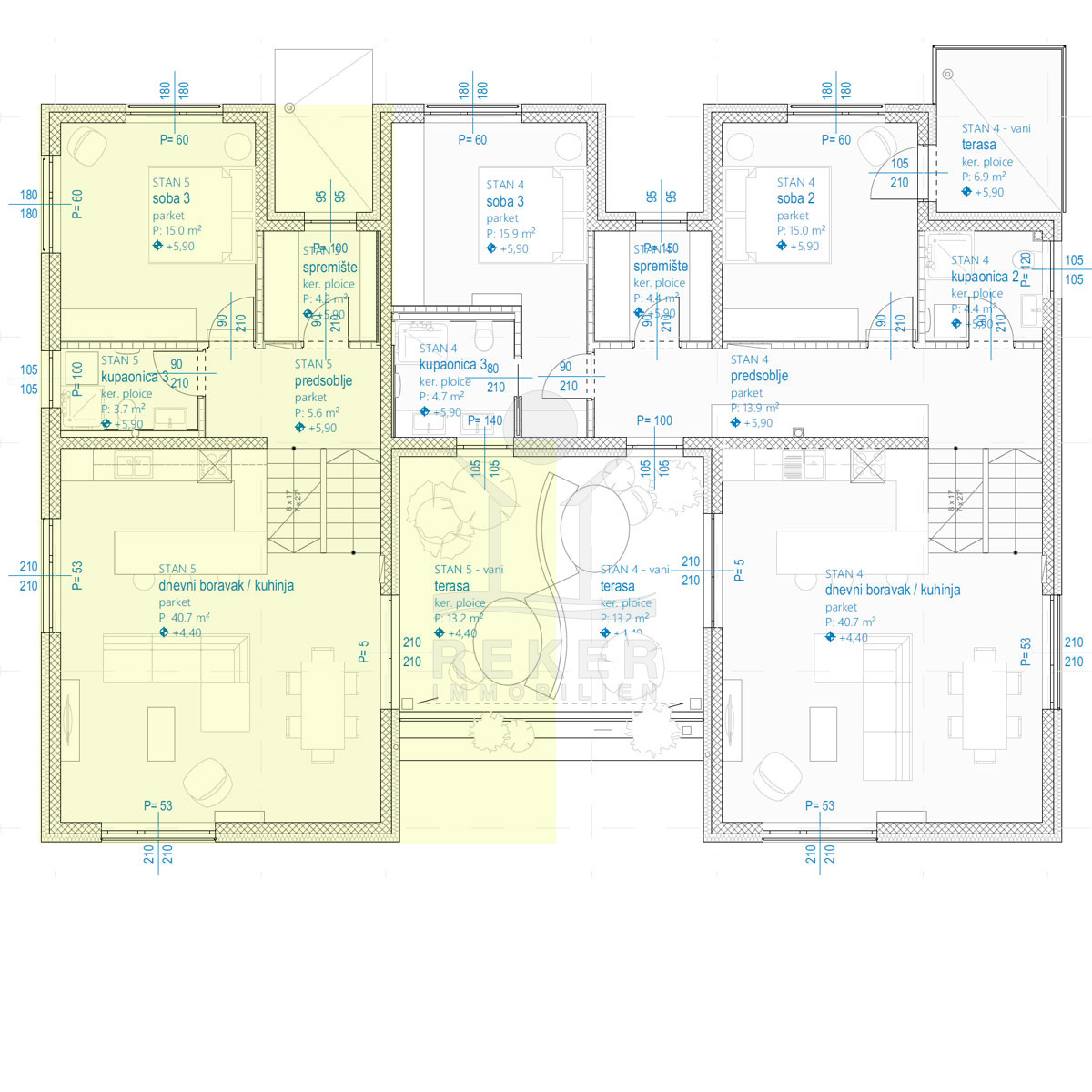
Die Wohnung erstreckt sich über 2 Etagen und bietet mit 159 m² Wohnfläche eine beeindruckende Lebensqualität. Das Gebäude, das sich im 1. Stock befindet, wird derzeit gebaut und voraussichtlich im Jahr 2026 fertiggestellt. Die Maisonette wird mit modernen Annehmlichkeiten wie einer Klimaanlage, elektrischer Fußbodenheizung und einem praktischen Abstellraum (4 m²) im Keller ausgestattet sein. Darüber hinaus gehört ein Parkplatz im Innenhof zur Wohnung und bietet praktischen Komfort.
Elegante Maisonette mit viel Platz & Aussicht
Diese großzügige Maisonette verspricht ein großzügiges Wohnen und eine hervorragende Aufteilung. Der überdachte Eingang lädt sofort zum Eintreten ein. Im Obergeschoss befinden sich 2 praktische Schlafzimmer und ein Badezimmer, das sowohl Komfort als auch Privatsphäre bietet. Eine interne Treppe führt Sie in den zweiten Stock.Im 2. Obergeschoss erwartet Sie ein Flur, der in einen offenen Wohn-, Ess- und Küchenbereich übergeht. Hier begrüßt Sie ein weiteres Schlafzimmer und 1 Badezimmer. Eine zugängliche Terrasse von 13 m² erweitert den Wohnraum ins Freie und bietet einen perfekten Ort zum Entspannen. Die Dachterrasse von 22 m² bietet zusätzlich einen atemberaubenden Blick und ist der perfekte Rückzugsort für gesellige Abende oder entspannende Sonnenstunden.
Die Maisonette erwartet Sie in Vodice!
- Ort: Vodice (Stadt)
- Einwohnerzahl: 8.875 (2011)
- Region: Dalmatien-Sibenik
- Autobahnentfernung: ca. 16 km *
- Nächster Flughafen: Zadar / ca. 62 km *

Immobiliendaten
- Objektart: Wohnung
- Objekttyp: Maisonette
- Baujahr: 2026
- ID: 7899
- Kaufpreis: 540.000 €
- Provision: 3,75 % inkl. MwSt. in Kroatien
- Wohnfläche: 159 m²
- Anzahl Zimmer: 4
- Anzahl Schlafzimmer: 3
- Anzahl Badezimmer: 3
- Land: Kroatien
- Region: Dalmatien-Sibenik
- Ort: Vodice
- Lage: Stadtteil
- Meerentfernung: 1 km
Haben Sie Interesse die schöne Maisonette zu besitzen?
Nehmen Sie gerne Kontakt mit mir auf!
Ich bin Heiner Reker, Gründer und
Geschäftsführer von Reker Immobilien d.o.o. Ich begleite Sie bei Ihrer aufregenden Reise in die Welt der Immobilien in Kroatien.
Gerne organisiere ich persönlich mit meinen qualifizierten Partnern jeden Schritt bei Ihrem rechtssicheren und stressfreien Immobilienkauf in Kroatien.
Füllen Sie das Formular aus und ich melde mich gerne zum gewünschten Zeitpunkt bei Ihnen.
Bis bald

Exposé mitnehmen?
Laden Sie unser PDF-Exposé herunter und Sie haben die wichtigste Objektdaten & Bilder immer zur Hand
Exposé mitnehmen?
Nehmen Sie Kontakt mit uns auf, ein Exposé schicken wir gerne per E-Mail
Ihre Traum-Immobilie noch nicht gefunden?
Besuchen Sie diese Seiten!