LUXURIÖSER NEUBAU - MAISONETTE IN VODICE FÜR EIN UNVERGESSLICHES MEDITERRANES LEBEN

Neubau-Maisonette mit idealer Anbindung in Vodice
Der Neubau besticht durch ihre hervorragende Lage und Infrastruktur. Nur 1.200 Meter vom herrlichen Meer entfernt, haben Sie die perfekte Balance zwischen Ruhe und Nähe zu einem der beliebtesten Küstenorte Dalmatiens. Das Stadtzentrum, ebenfalls nur 1200 Meter entfernt, bietet eine Vielzahl an Annehmlichkeiten, darunter Supermärkte, Restaurants und medizinische Einrichtungen. Vodice selbst ist eine malerische Küstenstadt, die zwischen Šibenik und Biograd na Moru liegt. Die lange Uferpromenade von fast 4 km lädt zum Flanieren ein und zieht mit ihren Geschäften, Cafés und Restaurants zahlreiche Besucher an. Der beliebte Strand Plava Plaza, bekannt für seinen flach abfallenden Kieselstrand, ist besonders ideal für Familien mit Kindern. An heißen Sommertagen erwarten Sie hier einladende Eisdielen, Bars und Cafés, die erfrischende Getränke und köstliche italienische Cappuccinos servieren. Die umliegende Region bietet ein breites Spektrum an Freizeit- und Sportmöglichkeiten, während Sie an den nahegelegenen Stränden und Buchten entspannen können. Am Abend können Sie die kulinarischen Köstlichkeiten Dalmatiens in den einladenden Restaurants mit Terrassen und Blick auf den Yachthafen von Vodice genießen. Die Maisonette bietet nicht nur eine attraktive Wohnumgebung, sondern auch die Möglichkeit, zahlreiche Sehenswürdigkeiten zu erkunden, darunter den spektakulären Nationalpark Krka, der weniger als 15 km entfernt liegt. Genießen Sie die Vielfalt und die Lebendigkeit dieser wundervollen Lage!
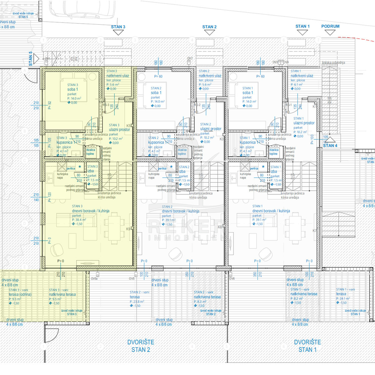
Die beeindruckende Maisonette erstreckt sich über 2 Etagen und bietet eine großzügige Wohnfläche von 120 m². Als modernes Neubauprojekt, das 2026 zuerst bezogen werden kann, setzt es Maßstäbe in Sachen Komfort und Stil. Das Haus wird unterkellert sein und ist mit hochwertigen Ausstattungsdetails ausgestattet, darunter eine Klimaanlage und elektrische Fußbodenheizung, die für ganzjährige Behaglichkeit sorgen. Zudem sorgt ein Abstellraum (4 m²) im Keller für zusätzlichen Stauraum, während ein Parkplatz im Innenhof praktischen Zugang bietet.
Modernes Wohnen in einem Neubau
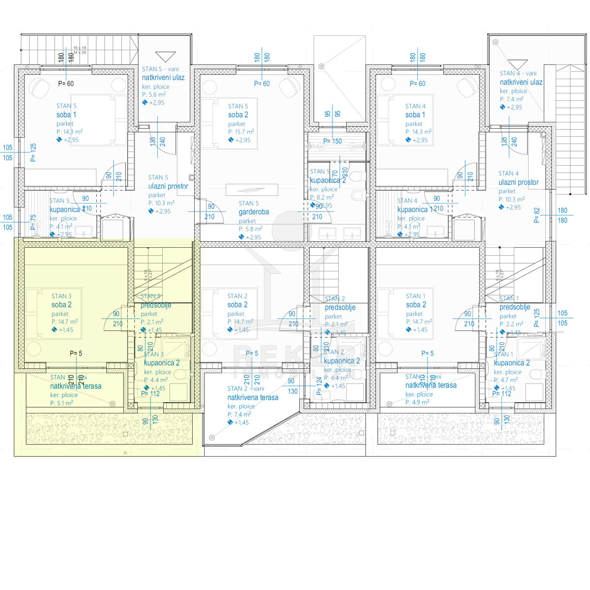
In dieser großzügigen Maisonette erwartet Sie modernes Wohnen mit einem ansprechenden Design. Der überdachte Eingang bietet nicht nur Schutz, sondern auch einen einladenden Zugang. Im Erdgeschoss entfaltet sich ein offener Wohn-, Ess- und Küchenbereich, der zum Verweilen und Kochen einlädt. Ein Schlafzimmer und ein Badezimmer ergänzen diese Etage, während sich eine zugängliche Terrasse/Pergola mit einer großzügigen Fläche von 19 m² ideal für entspannte Stunden im Freien anbietet. Eine interne Treppe führt Sie ins Obergeschoss, wo Sie einen Flur und ein weiteres Schlafzimmer finden, das Ihnen reichlich Platz für Erholung und Entspannung bietet. Ein zusätzliches Badezimmer sowie ein 5 m² großer Balkon runden die Etage ab und ermöglichen einen schönen Ausblick und Zugang zur frischen Luft.
Die Maisonette erwartet Sie in Vodice!
- Ort: Vodice (Stadt)
- Einwohnerzahl: 8.875 (2011)
- Region: Dalmatien-Sibenik
- Autobahnentfernung: ca. 16 km *
- Nächster Flughafen: Zadar / ca. 62 km *

Immobiliendaten
- Objektart: Wohnung
- Objekttyp: Maisonette
- Baujahr: 2026
- ID: 7897
- Kaufpreis: 372.000 €
- Provision: 3,75 % inkl. MwSt. in Kroatien
- Wohnfläche: 120 m²
- Anzahl Zimmer: 3
- Anzahl Schlafzimmer: 2
- Anzahl Badezimmer: 2
- Land: Kroatien
- Region: Dalmatien-Sibenik
- Ort: Vodice
- Lage: Stadtteil
- Meerentfernung: 1 km
Haben Sie Interesse die schöne Maisonette zu besitzen?
Nehmen Sie gerne Kontakt mit mir auf!
Ich bin Heiner Reker, Gründer und
Geschäftsführer von Reker Immobilien d.o.o. Ich begleite Sie bei Ihrer aufregenden Reise in die Welt der Immobilien in Kroatien.
Gerne organisiere ich persönlich mit meinen qualifizierten Partnern jeden Schritt bei Ihrem rechtssicheren und stressfreien Immobilienkauf in Kroatien.
Füllen Sie das Formular aus und ich melde mich gerne zum gewünschten Zeitpunkt bei Ihnen.
Bis bald

Exposé mitnehmen?
Laden Sie unser PDF-Exposé herunter und Sie haben die wichtigste Objektdaten & Bilder immer zur Hand
Exposé mitnehmen?
Nehmen Sie Kontakt mit uns auf, ein Exposé schicken wir gerne per E-Mail
Ihre Traum-Immobilie noch nicht gefunden?
Besuchen Sie diese Seiten!