NEUBAU-MAISONETTE-WOHNUNG MIT OFFENEM MEERBLICK UND EXKLUSIVER LAGE IN PUNAT
Gemütliche Maisonette in ruhiger Lage
Die Maisonette-Wohnung befindet sich in einer ruhigen Umgebung in Punat. Sie liegt nur einen kurzen Spaziergang in etwa von 500 m von einem der schönsten Strände entfernt. Das klare, azurblaue Wasser lädt zum Schwimmen und Sonnenbaden ein. In der ruhigen Umgebung können Sie sich entspannen, die Natur genießen und dem Alltag entfliehen. Geschäfte, Restaurants und andere Annehmlichkeiten finden Sie in unmittelbarer Nähe. Die Lage bietet Ihnen die perfekte Kombination aus Ruhe und Nähe zum Meer.
Die Immobilie mit Wohnfläche von 179 m² erstreckt sich über drei Etagen und befindet sich in einem brandneuen Gebäude und verfügt über dreifach verglaste Fenster und elektrische Jalousien. Das Objekt befindet sich derzeit in Bau und die voraussichtliche Fertigstellung ist im Mai 2024 geplant. Drei Parkplätze stehen Ihnen zur Verfügung, um Ihren Komfort zu gewährleisten.
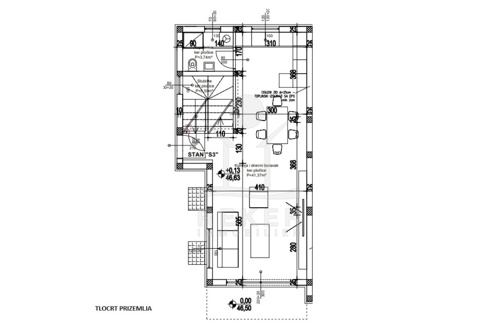
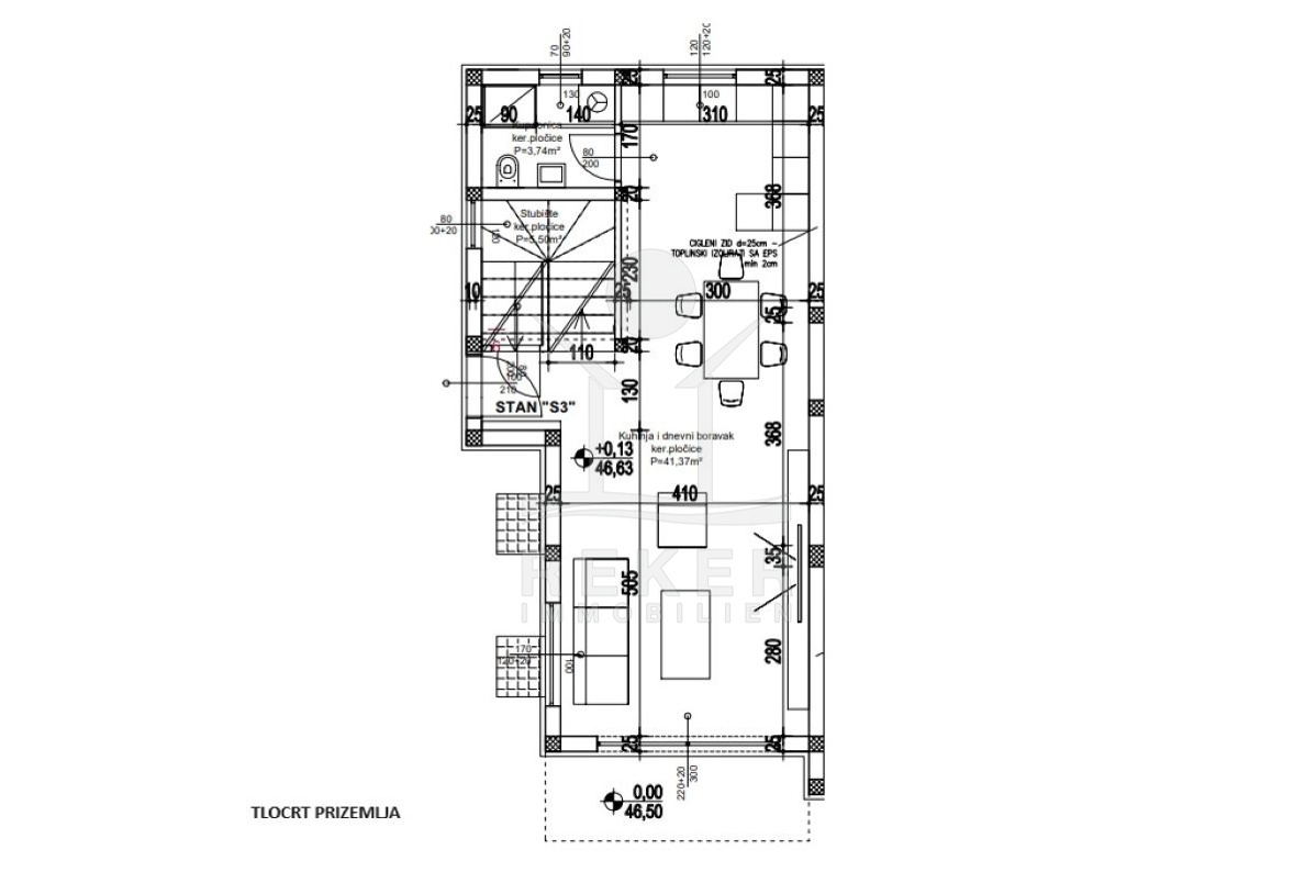
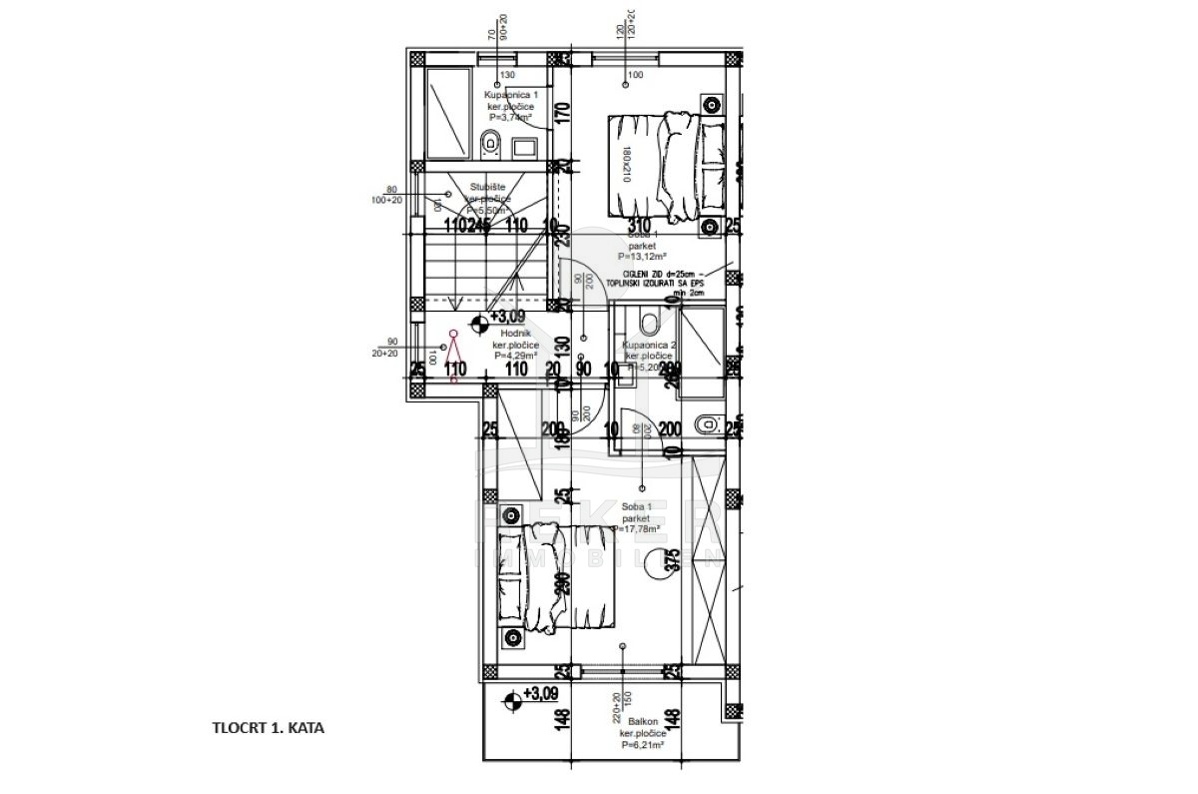
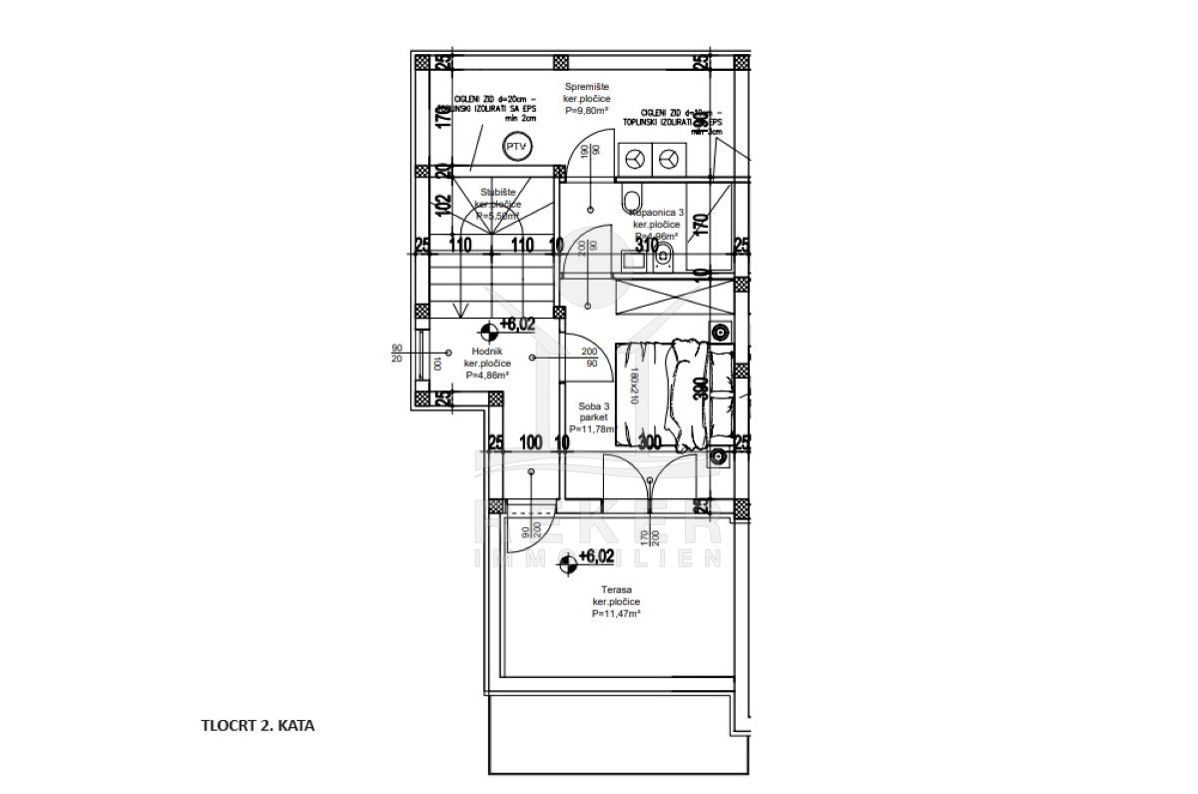
Die Wohnung besticht durch ihre hochwertige Konstruktion und Ausstattung. Die PVC-Zimmerei, Fußbodenheizung und Klimaanlage sorgen für ein angenehmes Wohnklima zu jeder Jahreszeit. Im Untergeschoss befindet sich ein großer Abstellraum mit Fläche von 35 m², der viel Platz für Ihre persönlichen Dinge bietet. Das Erdgeschoss verfügt über einen Flur, einen Wirtschaftsraum, ein Badezimmer, eine Küche mit Esszimmer und ein Wohnzimmer mit Zugang zur Terrasse und zum Garten. Im ersten Stock befinden sich zwei Schlafzimmer mit eigenem Bad und ein Balkon mit einem atemberaubenden Blick auf das Meer. Das Obergeschoss bietet ein weiteres Schlafzimmer mit Bad, einen Abstellraum und eine Terrasse mit Meerblick.
Die Maisonette erwartet Sie in Punat!
Punat ist eine Gemeinde im südlichen Teil der Insel Krk, an der gleichnamigen Bucht. Der Yachthafen des Ortes ist einer der bekanntesten der nördlichen Adria und bei Wassersportler sehr beliebt.
- Ort: Punat (Gemeinde)
- Einwohnerzahl: 1876
- Region: Kvarner-Bucht
- Insel: Krk
- Autobahnentfernung: ca. 34 km *
- Nächster Flughafen: Rijeka / ca. 31 km *
Immobiliendaten
- Objektart: Wohnung
- Objekttyp: Maisonette
- Baujahr: 2023
- ID: 6026
- Kaufpreis: 513.000 €
- Provision: 3,75 % inkl. MwSt. in Kroatien
- Wohnfläche: 179 m²
- Anzahl Zimmer: 4
- Anzahl Schlafzimmer: 3
- Anzahl Badezimmer: 4
- Land: Kroatien
- Region: Kvarner-Bucht
- Ort: Punat
- Meerentfernung: 500 m
Haben Sie Interesse die schöne Maisonette zu besitzen?
Nehmen Sie gerne Kontakt mit mir auf!
Ich bin Heiner Reker, Gründer und
Geschäftsführer von Reker Immobilien d.o.o. Ich begleite Sie bei Ihrer aufregenden Reise in die Welt der Immobilien in Kroatien.
Gerne organisiere ich persönlich mit meinen qualifizierten Partnern jeden Schritt bei Ihrem rechtssicheren und stressfreien Immobilienkauf in Kroatien.
Füllen Sie das Formular aus und ich melde mich gerne zum gewünschten Zeitpunkt bei Ihnen.
Bis bald
Exposé mitnehmen?
Laden Sie unser PDF-Exposé herunter und Sie haben die wichtigste Objektdaten & Bilder immer zur Hand
Exposé mitnehmen?
Nehmen Sie Kontakt mit uns auf, ein Exposé schicken wir gerne per E-Mail
Ihre Traum-Immobilie noch nicht gefunden?
Besuchen Sie diese Seiten!









