ZWEI ETAGEN LUXUS MIT 71 M² TERRASSE UND BLICK ÜBER DIE ADRIA
Lage & Außenbereich
Nur ein paar Kilometer von Opatija entfernt liegt diese moderne Villa … direkt an der Küste, nur 50 Meter vom Meer. Dank ihrer Lage am Hang haben Sie freien Blick auf die Adria, ganz ohne störende Bebauung davor. Und weil rundherum dichter Baumbestand ist und der nächste Nachbar etwa 100 Meter entfernt wohnt, bleibt es ruhig. Richtig ruhig. Klingt das nach Rückzug? Ist es auch.
Die Villa selbst ist klar strukturiert und hochwertig gebaut. Insgesamt gibt es sechs Wohnungen, also kein Massenwohnen, sondern eher das Gefühl, man kennt sich. Jede Einheit hat einen eigenen Parkplatz direkt vor der Tür.
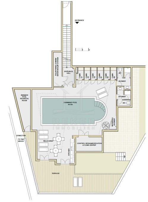
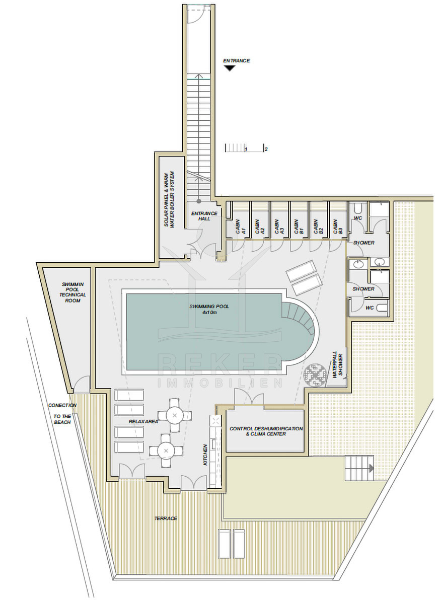
Besonderes Extra: ein beheizter Innenpool für alle Bewohner. So können Sie auch im Winter entspannt Ihre Bahnen ziehen. Die Wege zur Villa sind gepflegt, das Gelände wirkt wie natürlich hineingewachsen, nicht aufgesetzt, sondern stimmig. Wenn Sie auf der Suche nach einem Ort sind, an dem Sie ganz für sich sein können, mit Meerblick und Stil, dann schauen Sie sich diese Immobilie genauer an.
Innenraum & Interieur
Die Maisonette-Wohnung B1 bietet auf rund 120 m² jede Menge Platz, verteilt auf drei Etagen. Ideal, wenn Sie Flexibilität und Rückzugsorte schätzen. Im Erdgeschoss erwartet Sie ein offener Wohnbereich mit Sofaecke, Esstisch und Küche. Von hier aus geht’s direkt auf die untere Terrasse (29 m²). Ein Ort für lange Mahlzeiten oder entspannte Stunden im Schatten – mit Blick ins Grüne und auf das Meer.
Eine Etage darüber: zwei Schlafzimmer, ein Bad und ein Abstellraum mit Waschmaschine. Praktisch und durchdacht. Perfekt für Kinder, Gäste oder ruhige Nächte. Ganz oben liegt ein zweiter Wohnbereich, ebenfalls mit eigener Küche. Der Clou? Die große Dachterrasse mit fast 43 m². Lust auf ein Frühstück mit Blick aufs Meer? Oder lieber zurückziehen, Buch lesen, Ruhe genießen? Hier oben geht beides.
Durch die zwei klar getrennten Wohnzonen passt sich diese Wohnung Ihrem Leben an – ob als Familie mit Teenagern oder als Paar mit dem Wunsch nach mehr Privatsphäre. Hier wohnen Sie zusammen, aber nicht aufeinander.
Die Maisonette erwartet Sie in Opatija!
- Ort: Opatija (Stadt)
- Einwohnerzahl: 11.659 (2011)
- Region: Kvarner-Bucht
- Autobahnentfernung: ca. 4 km *
- Nächster Flughafen: Rijeka / ca. 40 km *
Immobiliendaten
- Objektart: Wohnung
- Objekttyp: Maisonette
- Baujahr: 2018
- ID: 9348
- Kaufpreis: 625.000 €
- Provision: 3,75 % inkl. MwSt. in Kroatien
- Wohnfläche: 191 m²
- Anzahl Zimmer: 4
- Anzahl Schlafzimmer: 2
- Anzahl Badezimmer: 1
- Land: Kroatien
- Region: Kvarner-Bucht
- Ort: Opatija
- Meerentfernung: 50 m
Haben Sie Interesse die schöne Maisonette zu besitzen?
Nehmen Sie gerne Kontakt mit mir auf!
Ich bin Heiner Reker, Gründer und
Geschäftsführer von Reker Immobilien d.o.o. Ich begleite Sie bei Ihrer aufregenden Reise in die Welt der Immobilien in Kroatien.
Gerne organisiere ich persönlich mit meinen qualifizierten Partnern jeden Schritt bei Ihrem rechtssicheren und stressfreien Immobilienkauf in Kroatien.
Füllen Sie das Formular aus und ich melde mich gerne zum gewünschten Zeitpunkt bei Ihnen.
Bis bald
Exposé mitnehmen?
Laden Sie unser PDF-Exposé herunter und Sie haben die wichtigste Objektdaten & Bilder immer zur Hand
Exposé mitnehmen?
Nehmen Sie Kontakt mit uns auf, ein Exposé schicken wir gerne per E-Mail
Ihre Traum-Immobilie noch nicht gefunden?
Besuchen Sie diese Seiten!





































