WOHNLUXUS ÜBER DER ADRIA: 144 M² KOMFORT MIT TERRASSE UND POOLZUGANG
Lage & Außenbereich
Nur ein paar Kilometer von Opatija entfernt liegt diese moderne Villa … direkt an der Küste, nur 50 Meter vom Meer. Dank ihrer Lage am Hang haben Sie freien Blick auf die Adria, ganz ohne störende Bebauung davor. Und weil rundherum dichter Baumbestand ist und der nächste Nachbar etwa 100 Meter entfernt wohnt, bleibt es ruhig. Richtig ruhig. Klingt das nach Rückzug? Ist es auch.
Die Villa selbst ist klar strukturiert und hochwertig gebaut. Insgesamt gibt es sechs Wohnungen, also kein Massenwohnen, sondern eher das Gefühl, man kennt sich. Jede Einheit hat einen eigenen Parkplatz direkt vor der Tür.
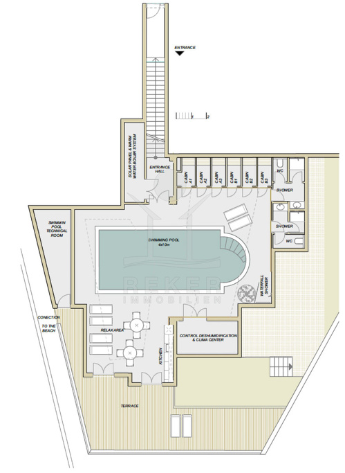
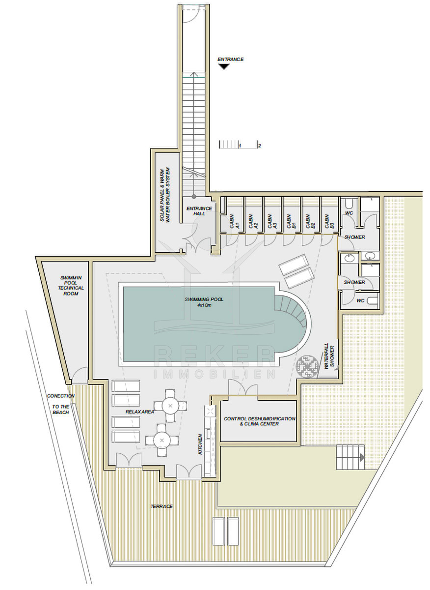
Besonderes Extra: ein beheizter Innenpool für alle Bewohner. So können Sie auch im Winter entspannt Ihre Bahnen ziehen. Die Wege zur Villa sind gepflegt, das Gelände wirkt wie natürlich hineingewachsen, nicht aufgesetzt, sondern stimmig. Wenn Sie auf der Suche nach einem Ort sind, an dem Sie ganz für sich sein können, mit Meerblick und Stil, dann schauen Sie sich diese Immobilie genauer an.
Innenraum & Interieur
Die Wohnung A3 ist das größte Penthouse der Villa – mit 144 m² auf zwei Etagen haben Sie richtig viel Platz. Im ersten Stock finden Sie das große Schlafzimmer mit eigenem Bad, dazu ein weiteres Zimmer und ein Kinderzimmer mit Etagenbett. Alles ist durch einen breiten Flur verbunden, der zusätzlichen Stauraum bietet. Praktisch: Der Hauswirtschaftsraum hat genug Platz für Waschmaschine und Co.
Über eine Holztreppe geht’s nach oben. Dort wartet ein heller Wohn- und Essbereich mit 46 m². Die Küche ist offen integriert – perfekt für gemeinsame Abende. Und der Blick? Der geht direkt aufs Meer und über die Kvarner Bucht. Die große Terrasse (knapp 38 m²) ist wie ein zusätzliches Zimmer im Freien. Ein Tisch, sechs Stühle, zwei Liegen und ein Sonnenschirm – alles passt. Ob Frühstück in der Sonne oder entspannte Abende: Hier lässt es sich gut leben. Ein zweites Bad auf dieser Ebene sorgt für Komfort, vor allem, wenn Sie mit Familie oder Freunden unterwegs sind. Die ruhige Lage und der weite Blick machen diese Wohnung ideal für alle, die Großzügigkeit und Privatsphäre schätzen.
Die Maisonette erwartet Sie in Opatija!
- Ort: Opatija (Stadt)
- Einwohnerzahl: 11.659 (2011)
- Region: Kvarner-Bucht
- Autobahnentfernung: ca. 4 km *
- Nächster Flughafen: Rijeka / ca. 40 km *
Immobiliendaten
- Objektart: Wohnung
- Objekttyp: Maisonette
- Baujahr: 2018
- ID: 9347
- Kaufpreis: 805.000 €
- Provision: 3,75 % inkl. MwSt. in Kroatien
- Wohnfläche: 181 m²
- Anzahl Zimmer: 4
- Anzahl Schlafzimmer: 3
- Anzahl Badezimmer: 2
- Land: Kroatien
- Region: Kvarner-Bucht
- Ort: Opatija
- Meerentfernung: 50 m
Haben Sie Interesse die schöne Maisonette zu besitzen?
Nehmen Sie gerne Kontakt mit mir auf!
Ich bin Heiner Reker, Gründer und
Geschäftsführer von Reker Immobilien d.o.o. Ich begleite Sie bei Ihrer aufregenden Reise in die Welt der Immobilien in Kroatien.
Gerne organisiere ich persönlich mit meinen qualifizierten Partnern jeden Schritt bei Ihrem rechtssicheren und stressfreien Immobilienkauf in Kroatien.
Füllen Sie das Formular aus und ich melde mich gerne zum gewünschten Zeitpunkt bei Ihnen.
Bis bald
Exposé mitnehmen?
Laden Sie unser PDF-Exposé herunter und Sie haben die wichtigste Objektdaten & Bilder immer zur Hand
Exposé mitnehmen?
Nehmen Sie Kontakt mit uns auf, ein Exposé schicken wir gerne per E-Mail
Ihre Traum-Immobilie noch nicht gefunden?
Besuchen Sie diese Seiten!







































