EXKLUSIVE 3-ZIMMER NEUBAU MAISONETTE: LEDIGLICH 300 METER VOM MEER & STRAND ENTFERNT IN DRAMALJ
Einzigartige Maisonette in Dramalj
Die exquisite Maisonette Neubauwohnung befindet sich in Dramalj, nur 300 Meter vom kristallklaren Wasser der Adria entfernt. Der nahegelegene Strand lädt zu erholsamen Tagen am Meer ein. In unmittelbarer Nähe finden Sie alle Annehmlichkeiten für den täglichen Bedarf, darunter Restaurants, Geschäfte, Sportzentren, Märkte, Spielplätze und öffentliche Verkehrsmittel. Dramalj, an der Riviera von Crikvenica in der Kvarner Bucht gelegen, ist aufgrund seines angenehmen Klimas, seiner Lage und der Nähe zu umliegenden Orten wie Crikvenica, Rijeka und Opatija ein beliebter Ferienort. Die Umgebung bietet eine attraktive und schöne Kulisse für einen erholsamen Familienurlaub sowie Aktivitäten wie Jagen, Klettern und Wassersport. Diese Lage kombiniert die Ruhe eines Badeortes mit der Vielfalt an Freizeitmöglichkeiten - ein perfektes Zuhause für Entspannung und Abenteuer gleichermaßen.
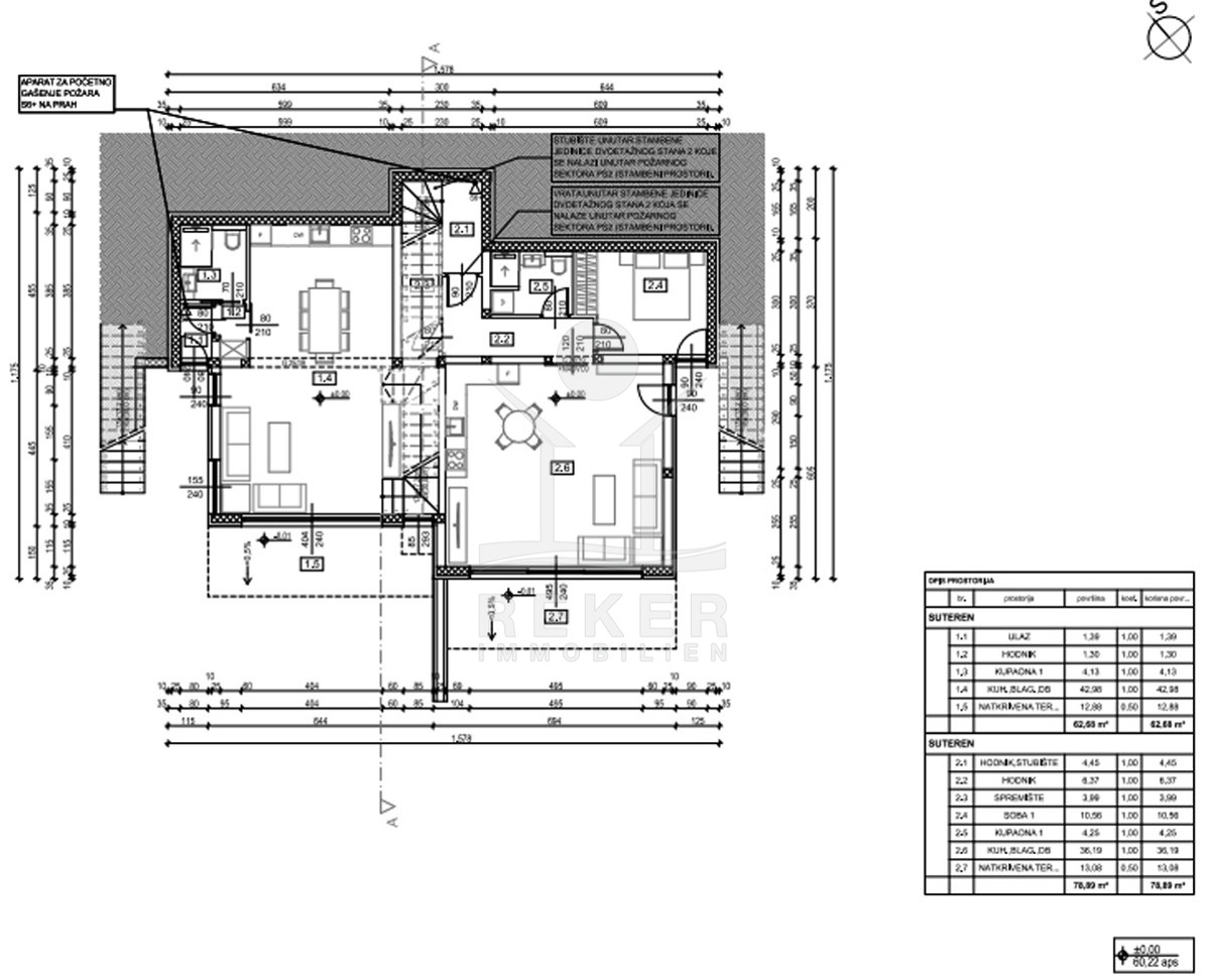
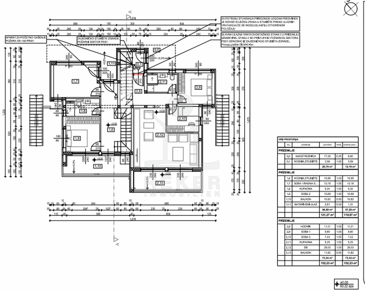
In diesem Anwesen finden sich insgesamt 4 Wohnungen auf drei Etagen, darunter eine geräumige Maisonette mit einer einzigartigen Wohnfläche von 152 m². Der Bau wird voraussichtlich im Sommer 2025 abgeschlossen sein und bietet ein modernes Wohnerlebnis mit hochwertigen Materialien. Der zukünftige Eigentümer kann die Bauprozesse mitgestalten und Materialien auswählen, um seine Traumimmobilie zu schaffen. Ein Parkplatz auf dem Grundstück des Gebäudes sorgt für bequemes Parken direkt vor der Tür.
Die Immobilie erstreckt sich über zwei Etagen und wird mit einer Klimaanlage ausgestattet, um Ihren Komfort zu gewährleisten. Im Erdgeschoss finden Sie eine Eingangshalle, ein Badezimmer, ein offenes Wohnzimmer, eine Küche, ein Esszimmer, ein Schlafzimmer und eine nach Süden ausgerichtete überdachte Terrasse für entspannte Stunden im Freien. Über die Innentreppe gelangen Sie in das Obergeschoss, das mit einem Flur, zwei geräumigen Schlafzimmern, einem Badezimmer, einem zusätzlichen Wohnzimmer oder Aufenthaltsraum und einem sonnigen, nach Süden ausgerichteten Balkon ausgestattet wird.
Die Maisonette erwartet Sie in Dramalj!
- Ort: Dramalj (Dorf)
- Einwohnerzahl: 1.485 (2011)
- Region: Kvarner-Bucht
- Autobahnentfernung: ca. 2 km *
- Nächster Flughafen: Rijeka / ca. 16 km *
Immobiliendaten
- Objektart: Wohnung
- Objekttyp: Maisonette
- Baujahr: 2025
- ID: 6885
- Kaufpreis: 608.000 €
- Provision: 3,75 % inkl. MwSt. in Kroatien
- Wohnfläche: 152 m²
- Anzahl Zimmer: 4
- Anzahl Schlafzimmer: 3
- Anzahl Badezimmer: 2
- Land: Kroatien
- Region: Kvarner-Bucht
- Ort: Dramalj
- Meerentfernung: 300 m
- Ortsmitte: 100 m
Haben Sie Interesse die schöne Maisonette zu besitzen?
Nehmen Sie gerne Kontakt mit mir auf!
Ich bin Heiner Reker, Gründer und
Geschäftsführer von Reker Immobilien d.o.o. Ich begleite Sie bei Ihrer aufregenden Reise in die Welt der Immobilien in Kroatien.
Gerne organisiere ich persönlich mit meinen qualifizierten Partnern jeden Schritt bei Ihrem rechtssicheren und stressfreien Immobilienkauf in Kroatien.
Füllen Sie das Formular aus und ich melde mich gerne zum gewünschten Zeitpunkt bei Ihnen.
Bis bald
Exposé mitnehmen?
Laden Sie unser PDF-Exposé herunter und Sie haben die wichtigste Objektdaten & Bilder immer zur Hand
Exposé mitnehmen?
Nehmen Sie Kontakt mit uns auf, ein Exposé schicken wir gerne per E-Mail
Ihre Traum-Immobilie noch nicht gefunden?
Besuchen Sie diese Seiten!









