WOHNEN AUF ZWEI ETAGEN – BALKON MIT MEERBLICK, GARTEN MIT RUHE
Lage & Außenbereich
In Brodarica, einem grünen, ruhigen Stadtteil bei Šibenik, entsteht eine moderne Maisonette-Wohnung als Teil einer gepflegten Häuserreihe. Die Lage punktet mit angenehmer Zurückgezogenheit, ohne auf Nähe zum Meer zu verzichten. Für Familien besonders praktisch: Kindergarten, Schule und Spielplatz sind ganz in der Nähe. Hier wohnen Sie nicht nur ruhig, sondern auch gut angebunden.
Zum Haus gehören zwei private Parkplätze direkt vor der Tür – ein echtes Plus im Alltag. Der eigene Garten mit überdachter Terrasse lädt zum Frühstück im Freien oder einem Glas Wein am Abend ein. Im Obergeschoss erwartet Sie ein Balkon mit Meerblick – ein klarer Mehrwert für alle, die gerne draußen sitzen und dabei den Blick schweifen lassen.
Innenraum & Interieur
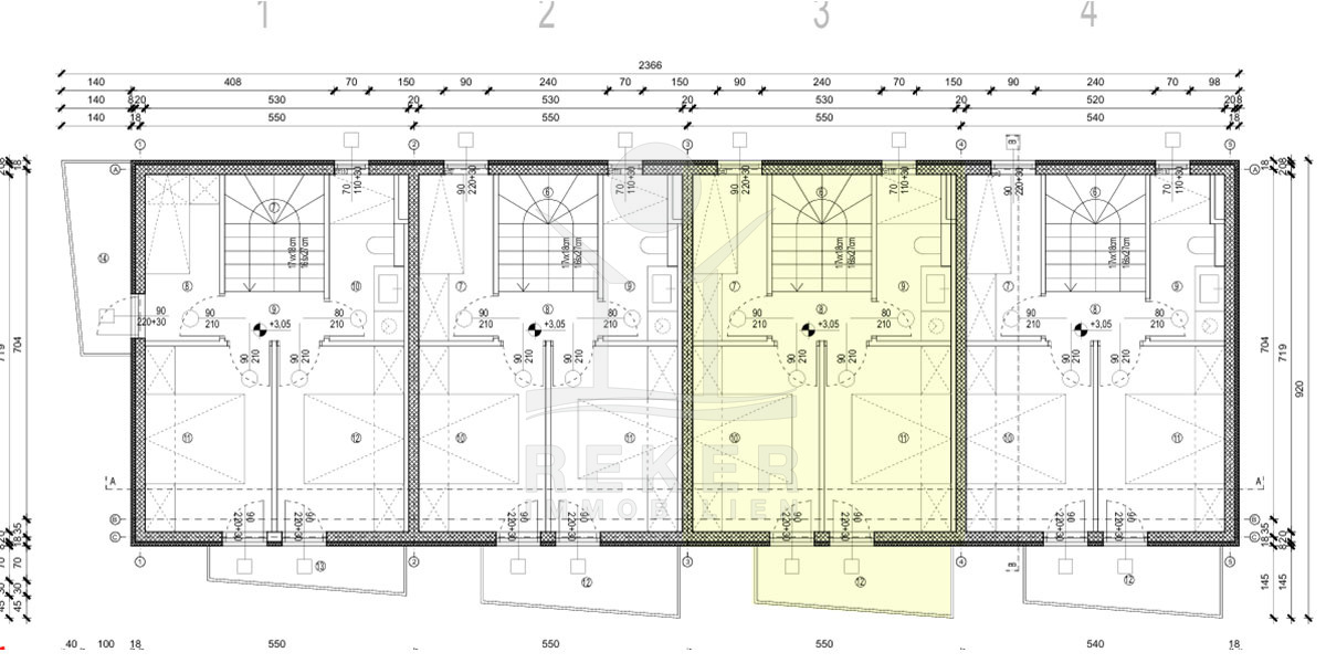
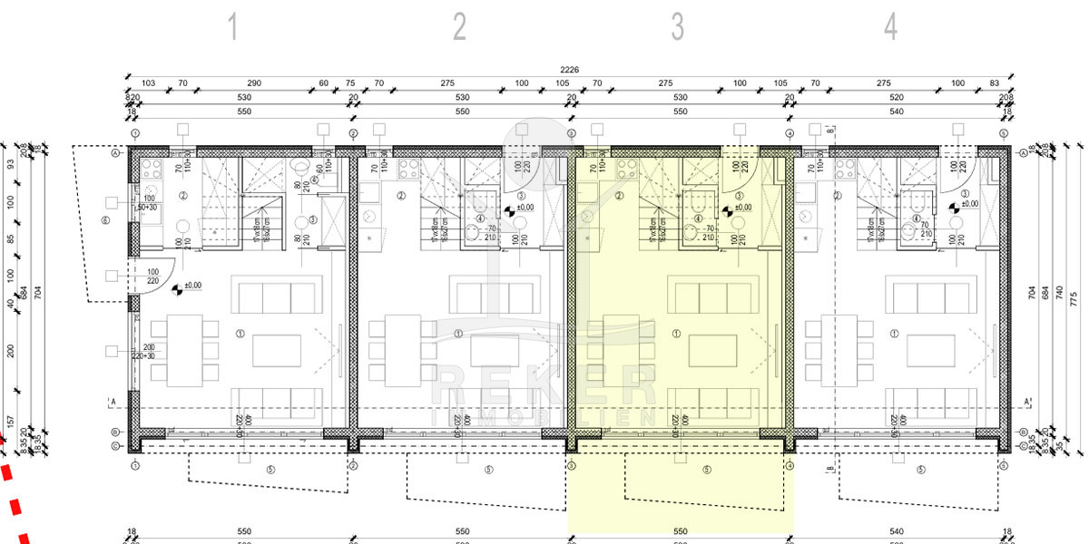
Die Maisonette bietet auf zwei Etagen viel Wohnqualität. Unten wohnen, oben schlafen: drei Schlafzimmer, ein Bad und ein Balkon sorgen für klare Struktur. Das Wohnzimmer mit Küche im Erdgeschoss ist lichtdurchflutet und offen gestaltet. Hochwertige Tischlerarbeiten, Klimaanlagen in allen Zimmern und Fußbodenheizung im Bad bieten Komfort auf aktuellem Niveau. Ein Gäste-WC ergänzt das Raumangebot sinnvoll. Und obendrein: ein großer Dachboden mit 37 m² – ideal als Stauraum oder Hobbyfläche. Fertigstellung ist für Sommer 2025 geplant.
Die Maisonette erwartet Sie in Brodarica!
Brodarica ist ein kleiner idyllischer Ort mit zahlreichen Villen und Häusern der sich ca. 5 km südlich von Šibenik befindet. Er erstreckt sich ca. 4 km die Küste entlang und ist nach neun Inseln ausgerichtet die eine Lagune bilden. In der Morinj Bucht werden Fische gezüchtet. Im nördlichen Teil der Bucht von Brodarica findet man Heilschlamm, dadurch hat sich ein medizinischer Tourismus entwickelt. Er ist auch bekannt für seine malerischen Fels- und Sandstrände.
- Ort: Brodarica (Dorf)
- Einwohnerzahl: 2.611 (2021)
- Region: Dalmatien-Sibenik
- Autobahnentfernung: ca. 12 km *
- Nächster Flughafen: Split / ca. 48 km *
Immobiliendaten
- Objektart: Wohnung
- Objekttyp: Maisonette
- Baujahr: 2025
- ID: 8733
- Kaufpreis: 260.000 €
- Provision: 3,75 % inkl. MwSt. in Kroatien
- Gartenfläche: 20 m²
- Anzahl Zimmer: 4
- Anzahl Schlafzimmer: 3
- Anzahl Badezimmer: 1
- Land: Kroatien
- Region: Dalmatien-Sibenik
- Ort: Brodarica
- Lage: Ortslage
- Meerentfernung: 300 m
Haben Sie Interesse die schöne Maisonette zu besitzen?
Nehmen Sie gerne Kontakt mit mir auf!
Ich bin Heiner Reker, Gründer und
Geschäftsführer von Reker Immobilien d.o.o. Ich begleite Sie bei Ihrer aufregenden Reise in die Welt der Immobilien in Kroatien.
Gerne organisiere ich persönlich mit meinen qualifizierten Partnern jeden Schritt bei Ihrem rechtssicheren und stressfreien Immobilienkauf in Kroatien.
Füllen Sie das Formular aus und ich melde mich gerne zum gewünschten Zeitpunkt bei Ihnen.
Bis bald
Exposé mitnehmen?
Laden Sie unser PDF-Exposé herunter und Sie haben die wichtigste Objektdaten & Bilder immer zur Hand
Exposé mitnehmen?
Nehmen Sie Kontakt mit uns auf, ein Exposé schicken wir gerne per E-Mail
Ihre Traum-Immobilie noch nicht gefunden?
Besuchen Sie diese Seiten!







