MODERNE VILLA DER EXTRAKLASSE MIT POOL, WELLNESS UND MEERBLICK
Großes Grundstück
Auf dem großen Grundstück werden Sie garantiert ungestört sein. Neben der schönen modernen Villa ist ausreichend Platz für einen sonnigen Pool mit herrlichem Sonnendeck, sowie einem gepflegten mediterranen Garten.
Wohlfühlen leicht gemacht!
Großzügiger Wohnbereich
Die luftige und freundliche Atmosphäre der Luxus-Villa spüren Sie in allen Räumen!
Vermutlich spüren Sie es aber ganz besonders im lichtdurchfluteten Wohn- und Essbereich.
Das Mobiliar und die gesamte Einrichtung sind hochwertig und modern.
Luxuriöse Küche
Die moderne Einbauküche mit ihrer Kochinsel bietet jeden erdenklichen Komfort.
Das Kochen für die Familie und für Gäste wird so garantiert zu einem Vergnügen.
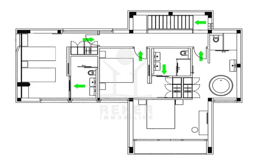
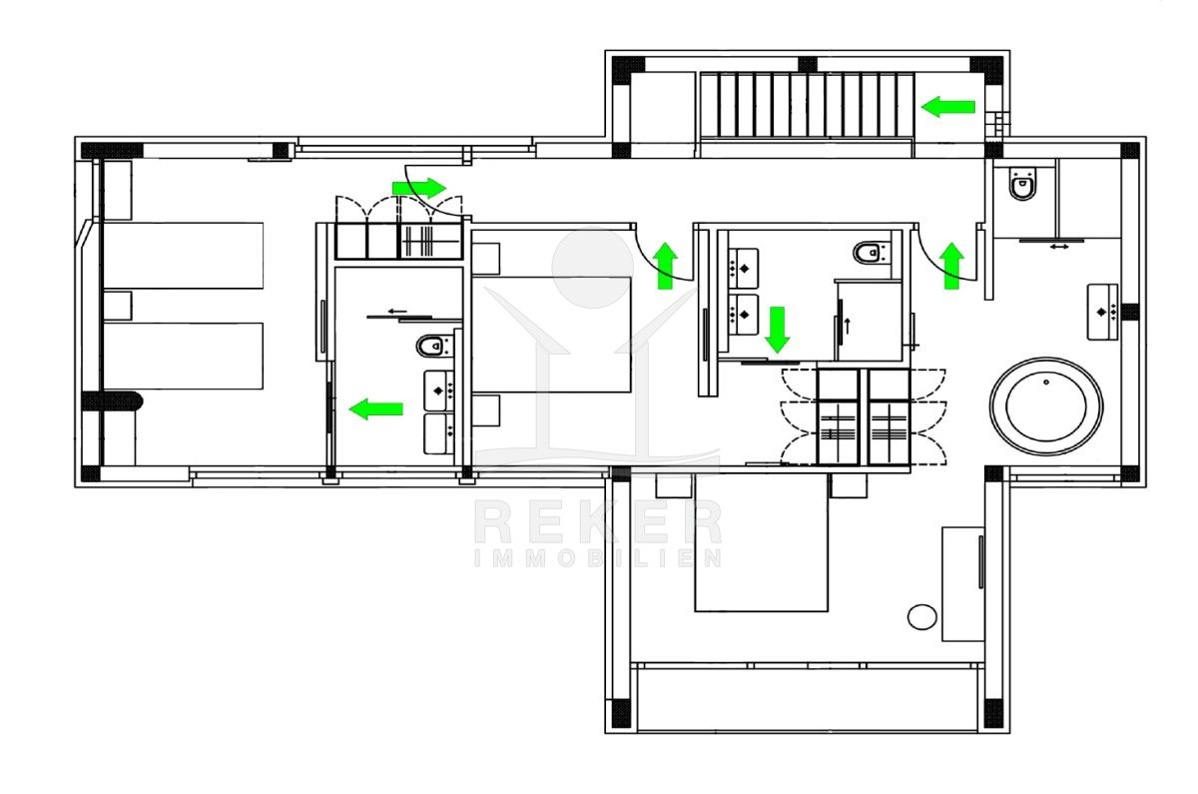
Flur im Obergeschoss
Vom hellen Flur im ersten Stock zweigen die drei Schlafzimmer mit ihren modernen Bädern ab.
Gemütliche Schlafzimmer
Drei großzügige und gemütliche Schlafzimmer erwarten Sie im ersten Stock der Villa. Jedes verfügt über ein eigenes Bad und eine sonnige Terrasse.
Sie werden jede Minute in dieser Luxus-Villa genießen.
Moderne Gäste-Toilette
Das Gäste-WC verfügt über hochwertige Fliesen und moderne zeitlos gestaltete Sanitärobjekte.
Designer-Bäder
Exklusiv und modern, das gilt nicht nur für die gesamte Villa, sondern auch für die drei eleganten und großzügigen Bäder im ersten Stock.
Hochwertige Fliesen kombiniert mit Designer-Objekten.
Luxus pur.
Großer Wellnessbereich
Der schöne Wellnessbereich im Keller der Villa bietet eben der Sauna, einen Ruhebereich und eine typische Sauna-Dusche fürs kalte Abschauern.
Viel Vergnügen!
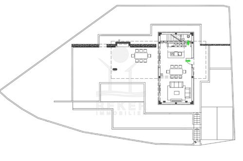
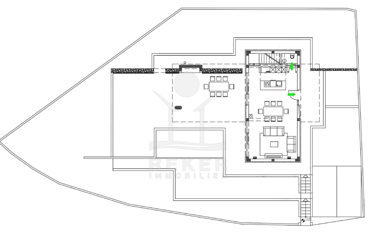
Moderner Grundriss
Der Grundriss zeigt die schöne Raumaufteilung und die großzügigen Räumlichkeiten.
Die Villa erwartet Sie in Krk!
Die Stadt Krk ist die bedeutendste Stadt und mit ca. 3700 Einwohnern auch die größte Stadt auf der Insel. Sie ist Hafenstadt und Kurort und liegt nur ca. 25 km von der Brücke entfernt.
- Ort: Krk (Stadt)
- Einwohnerzahl: 6243 (2011)
- Region: Kvarner-Bucht
- Insel: Krk
- Autobahnentfernung: ca. 30 km *
- Nächster Flughafen: Rijeka / ca. 26 km *
Immobiliendaten
- Objektart: Haus
- Objekttyp: Villa
- Baujahr: 2017
- ID: 1998
- Kaufpreis: 1.100.000 €
- Provision: 3,75 % inkl. MwSt. in Kroatien
- Grundstücksgröße: 591 m²
- Wohnfläche: 223 m²
- Anzahl Zimmer: 7
- Anzahl Schlafzimmer: 3
- Anzahl Badezimmer: 4
- Gäste WC: 1
- Land: Kroatien
- Region: Kvarner-Bucht
- Ort: Krk
- Lage: Wohngebiet
- Meerentfernung: 4 km
- Ortsmitte: 4 km
Haben Sie Interesse die schöne Villa zu besitzen?
Nehmen Sie gerne Kontakt mit mir auf!
Ich bin Heiner Reker, Gründer und
Geschäftsführer von Reker Immobilien d.o.o. Ich begleite Sie bei Ihrer aufregenden Reise in die Welt der Immobilien in Kroatien.
Gerne organisiere ich persönlich mit meinen qualifizierten Partnern jeden Schritt bei Ihrem rechtssicheren und stressfreien Immobilienkauf in Kroatien.
Füllen Sie das Formular aus und ich melde mich gerne zum gewünschten Zeitpunkt bei Ihnen.
Bis bald
Exposé mitnehmen?
Laden Sie unser PDF-Exposé herunter und Sie haben die wichtigste Objektdaten & Bilder immer zur Hand
Exposé mitnehmen?
Nehmen Sie Kontakt mit uns auf, ein Exposé schicken wir gerne per E-Mail
Ihre Traum-Immobilie noch nicht gefunden?
Besuchen Sie diese Seiten!





































