DOLCE VITA IN ISTRIEN: ARCHITEKTUR, ÄSTHETIK UND ABSOLUTE RUHE ERLEBEN
Lage & Außenbereich
Zwischen Olivenhainen, Wäldern und kleinen Dörfern liegt dieses moderne Haus an der Westküste Istriens. Abseits vom Trubel und doch in erreichbarer Nähe zu Orten wie Poreč, Vrsar und Rovinj. Nur 8 Kilometer trennen Sie vom Meer. Das Grundstück liegt ruhig am Dorfrand – ohne Durchgangsverkehr, ohne direkte Nachbarbebauung. Ideal, wenn Sie das Besondere suchen: Natur, Ruhe, ein freier Blick und die Sicherheit, dass es so bleibt.
Draußen geht es genauso exklusiv weiter. Ein beheizbarer Pool mit Massage-Düsen und stimmungsvollem Licht wartet auf Sie. Daneben: eine Designer-Lounge mit offenem Kamin für lange Abende im Freien. Die Grillterrasse ist überdacht und voll ausgestattet – inklusive Gasgrill, Wasseranschluss und Arbeitsfläche. Hochwertige Gartenmöbel, sorgfältige Bepflanzung und Platz zum Zurückziehen machen den Außenbereich zum Wohnzimmer unter freiem Himmel. Für viele: der eigentliche Luxus.
Innenraum & Interieur
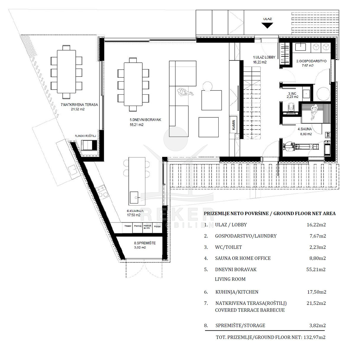
Drinnen spürt man sofort: Hier wurde nichts dem Zufall überlassen. Edle Materialien, durchdachtes Lichtkonzept, klare Linien. Die 3 Meter hohe Decke im Wohnbereich öffnet den Raum, raumhohe Glaswände schaffen fließende Übergänge nach draußen. Glas ohne Schwelle, Aluminiumrahmen von „Wicona“, wärmefilterndes „Guardian Sun“-Sicherheitsglas – spürbare Technik für echten Komfort.
Die Küche? Eine Maßanfertigung von Copatlife. Arbeitsflächen aus echtem Quarzstein von Silestone. Geräte von Miele, Liebherr, Faber. Kühlschrank, Eiswürfelspender, Weinkühler – alles da. Dazu ein Design, das auch morgen noch modern ist.
Im Obergeschoss: drei Suiten, jede mit eigenem Bad, bodentiefem Fenster, Klimaanlage und Fußbodenheizung. Die Böden sind aus großformatigem Parkett, die Möbel von italienischen Manufakturen wie Novamobili, Dall’Agnese, Rotaliana. Die Badezimmer? Feinste Armaturen von Hansgrohe, Catalano, Axor – eingebettet in großformatige Keramikfliesen. Alles smart, steuerbar per WLAN. Alles hochwertig, alles bereit.
Die Villa erwartet Sie in Vrsar!
- Ort: Vrsar (Ortschaft)
- Einwohnerzahl: 2.162 (2011)
- Region: Istrien
- Autobahnentfernung: ca. 13 km *
- Nächster Flughafen: Pula / ca. 53 km *
Immobiliendaten
- Objektart: Haus
- Objekttyp: Villa
- Baujahr: 2024
- ID: 8805
- Kaufpreis: 1.450.000 €
- Provision: 3,75 % inkl. MwSt. in Kroatien
- Grundstücksgröße: 1009 m²
- Wohnfläche: 219 m²
- Anzahl Zimmer: 4
- Anzahl Schlafzimmer: 3
- Anzahl Badezimmer: 3
- Land: Kroatien
- Region: Istrien
- Ort: Vrsar
- Lage: Ortslage
- Meerentfernung: 8 km
Haben Sie Interesse die schöne Villa zu besitzen?
Nehmen Sie gerne Kontakt mit mir auf!
Ich bin Heiner Reker, Gründer und
Geschäftsführer von Reker Immobilien d.o.o. Ich begleite Sie bei Ihrer aufregenden Reise in die Welt der Immobilien in Kroatien.
Gerne organisiere ich persönlich mit meinen qualifizierten Partnern jeden Schritt bei Ihrem rechtssicheren und stressfreien Immobilienkauf in Kroatien.
Füllen Sie das Formular aus und ich melde mich gerne zum gewünschten Zeitpunkt bei Ihnen.
Bis bald
Exposé mitnehmen?
Laden Sie unser PDF-Exposé herunter und Sie haben die wichtigste Objektdaten & Bilder immer zur Hand
Exposé mitnehmen?
Nehmen Sie Kontakt mit uns auf, ein Exposé schicken wir gerne per E-Mail
Ihre Traum-Immobilie noch nicht gefunden?
Besuchen Sie diese Seiten!



















































