NEUBAUVILLA IN SPLIT MIT ATEMBERAUBENDEM MEERBLICK UND ERSTKLASSIGEM DESIGN
Lage & Außenbereich
Die exklusive Neubau Villa befindet sich in einer hervorragenden Lage, nur 500 Meter vom Meer entfernt. Sie genießen hier die perfekte Kombination aus Ruhe und Nähe zur Stadt Split, die nur wenige Kilometer entfernt liegt. Die Villa bietet Ihnen ein modernes und luxuriöses Ambiente, in dem Sie sich rundum wohlfühlen können. Von der Terrasse aus können Sie den Blick auf das Meer und die umliegende Landschaft genießen. Die zentrale Lage ermöglicht es Ihnen, schnell zu den Stränden, Einkaufsmöglichkeiten, Restaurants und Bars zu gelangen, während Sie gleichzeitig die Ruhe und Privatsphäre Ihrer eigenen Villa genießen können.
Das Anwesen liegt auf einem 910 m² großen Grundstück in Hanglage. Sie ist von wunderschönen kaskadenförmigen Gärten umgeben, die mit Olivenbäumen und dalmatinische Pflanzen bepflanzt wird. Das Gebäude erstreckt sich über 3 Etagen und verfügt über eine Wohnfläche von 320 m². Die Bauarbeiten und Fertigstellung sind voraussichtlich Sommer 2024 abgeschlossen. Das Haus ist mit einem Untergeschoss ausgestattet und bietet zusätzliche Räume sowie einen Wellness- und Fitnessbereich.
Die Villa wird mit einer großzügigen Terrasse ausgestattet sein, ein perfekter Platz im Freien, um die warmen Sonnenstrahlen zu genießen. Ein Infinity-Pool lädt zum Entspannen und Abkühlen ein, während Sie den atemberaubenden Blick auf die umliegende Landschaft und das Meer genießen. Diese Villa ist ein Traumobjekt für diejenigen, die eine luxuriöse und moderne Immobilie suchen, in der sie das Leben im Freien in vollen Zügen genießen können.
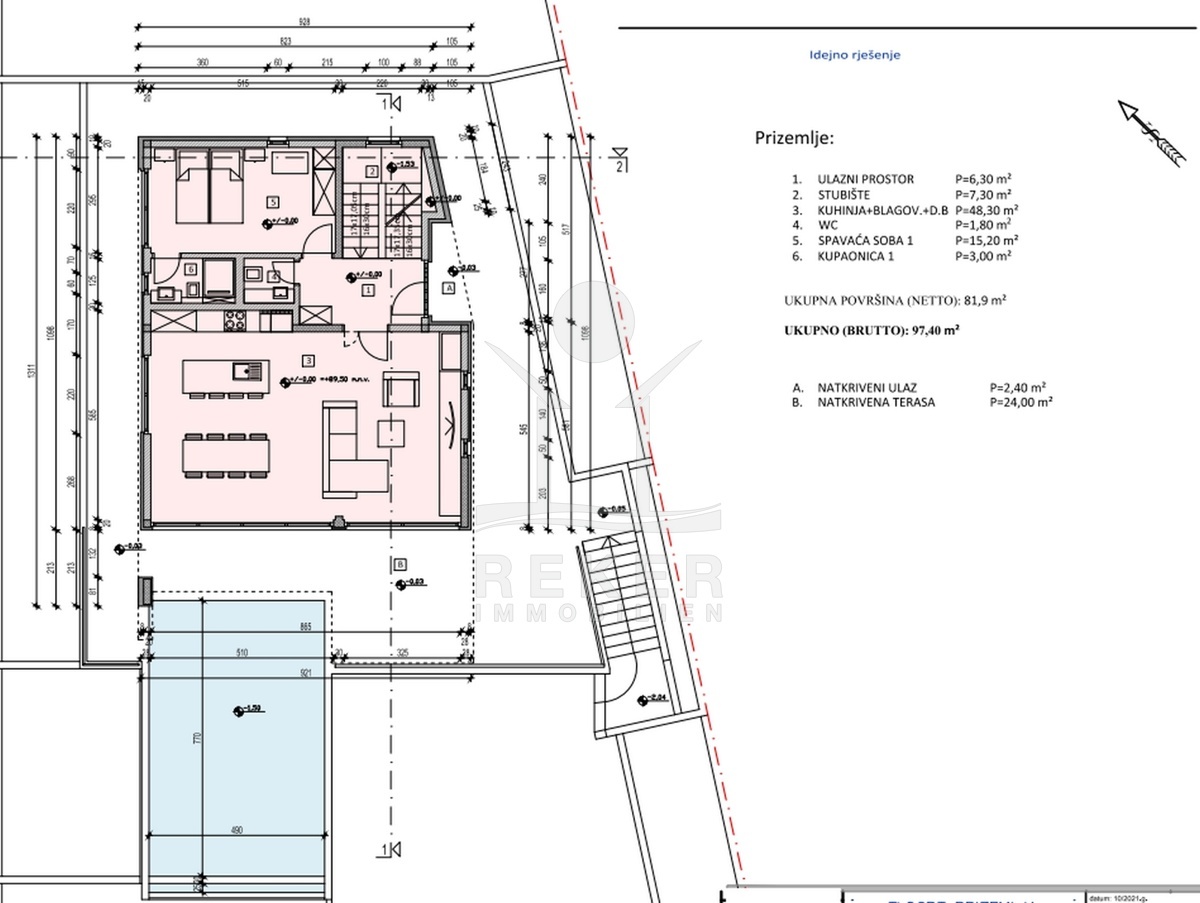
Innenraum & Interieur
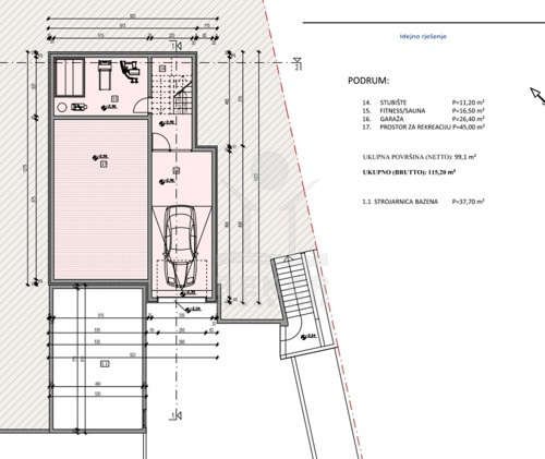
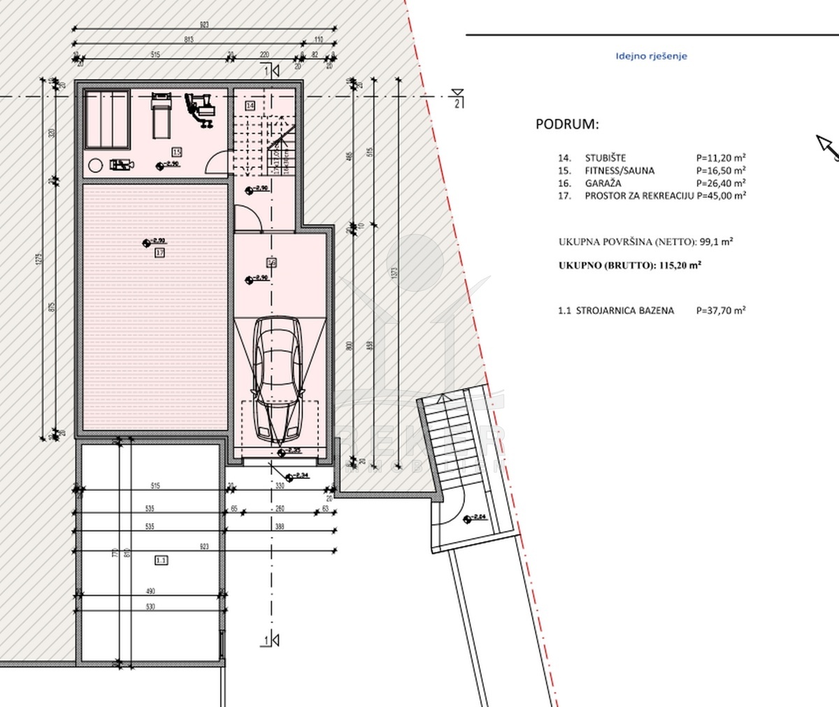
Die Immobilie punktet mit einer hochwertigen Ausstattung, die Luxus und Komfort verspricht. Im unteren Geschoss befinden sich eine Garage sowie ein privater Wellness- und Sportbereich mit Sauna und Fitnessbereich. Ein zusätzlicher Raum bietet die Möglichkeit, individuellen Wünschen und Bedürfnissen gerecht zu werden.
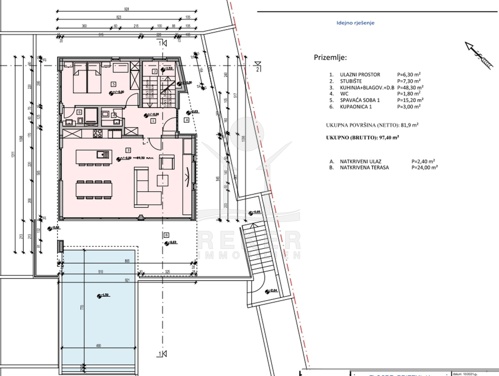
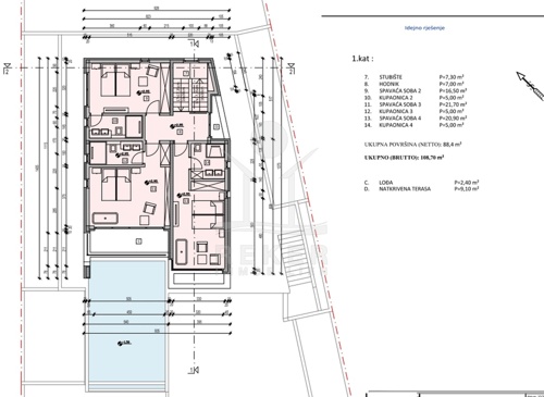
Im Erdgeschoss erwartet Sie ein offener und luftiger Wohn-, Ess- und Küchenbereich, der einen nahtlosen Übergang zum Außenbereich bietet. Die Terrasse lädt mit ihrem Pool zum Entspannen und Genießen ein. Ein Schlafzimmer mit eigenem Bad und Zugang zur Terrasse sowie ein Gäste-WC runden diese Etage ab. Im ersten Stock erwartet Sie ein beeindruckendes Hauptschlafzimmer mit eigenem Balkon, der einen wundervollen Ausblick bietet. Zudem stehen Ihnen zwei weitere Schlafzimmer zur Verfügung, die jeweils mit eigenem Bad ausgestattet sind.
Die Villa erwartet Sie in Split!
- Ort: Split (Stadt)
- Einwohnerzahl: 178.192 (2011)
- Region: Dalmatien-Split
- Autobahnentfernung: ca. 20 km *
- Nächster Flughafen: Split / ca. 25 km *
Immobiliendaten
- Objektart: Haus
- Objekttyp: Villa
- Baujahr: 2024
- ID: 5877
- Kaufpreis: 2.399.000 €
- Provision: 3,75 % inkl. MwSt. in Kroatien
- Grundstücksgröße: 910 m²
- Wohnfläche: 320 m²
- Anzahl Zimmer: 5
- Anzahl Schlafzimmer: 4
- Anzahl Badezimmer: 4
- Land: Kroatien
- Region: Dalmatien-Split
- Ort: Split
- Lage: Ortslage
- Meerentfernung: 500 m
Haben Sie Interesse die schöne Villa zu besitzen?
Nehmen Sie gerne Kontakt mit mir auf!
Ich bin Heiner Reker, Gründer und
Geschäftsführer von Reker Immobilien d.o.o. Ich begleite Sie bei Ihrer aufregenden Reise in die Welt der Immobilien in Kroatien.
Gerne organisiere ich persönlich mit meinen qualifizierten Partnern jeden Schritt bei Ihrem rechtssicheren und stressfreien Immobilienkauf in Kroatien.
Füllen Sie das Formular aus und ich melde mich gerne zum gewünschten Zeitpunkt bei Ihnen.
Bis bald
Exposé mitnehmen?
Laden Sie unser PDF-Exposé herunter und Sie haben die wichtigste Objektdaten & Bilder immer zur Hand
Exposé mitnehmen?
Nehmen Sie Kontakt mit uns auf, ein Exposé schicken wir gerne per E-Mail
Ihre Traum-Immobilie noch nicht gefunden?
Besuchen Sie diese Seiten!



































