EXKLUSIVE VILLA IN ROŽAT - EIN MEISTERWERK DER MODERNEN ARCHITEKTUR UND DES KOMPROMISSLOSEN KOMFORTS
Exklusive Villa in den Hügeln von Rožat
Die Luxus-Villa befindet sich in einer hervorragenden Lage, eingebettet in die sanften Hügel von Rožat. Nur 6 Kilometer von der Altstadt von Dubrovnik entfernt, genießen Sie hier die Ruhe und Schönheit der Natur und sind zugleich in unmittelbarer Nähe zu einer der beeindruckendsten historischen Städte Europas. Die Villa bietet einen atemberaubenden Ausblick auf die Landschaft und die umliegenden Hügel. Sie können sich in der Privatsphäre Ihres luxuriösen Anwesens entspannen und von Terrassen und Balkonen aus den Blick auf die malerische Umgebung genießen. Die Lage bietet auch perfekte Voraussetzungen für Aktivitäten wie Wandern, Radfahren oder Spaziergänge durch die Natur.
Das Anwesen liegt auf einem 426 m² großen, Hanggrundstück und ist teilweise von einer Steinmauer und einem Zaun umgeben. Das Grundstück bietet einen wunderschönen Ausblick in alle Himmelsrichtungen - Osten, Westen, Norden und Süden. Die Villa erstreckt sich über 3 Etagen und verfügt über eine Gesamtwohnfläche von 170 m². Sie wurde im Jahr 2020 gebaut und ist mit einer Sicherheitstür sowie einem Untergeschoss ausgestattet. Die Villa strahlt eine mediterrane Atmosphäre aus und versprüht einen einzigartigen Charme.
Die Anlage bietet eine großzügige Terrasse, die einen herrlichen Blick auf die umliegende Landschaft und Hügel bietet. Auf der Terrasse stehen Sonnenliegen bereit, um entspannte Stunden inmitten dieser traumhaften Kulisse zu genießen. Der große Pool lädt zu erfrischenden Schwimmrunden ein und schafft eine Oase der Ruhe und Verträumtheit. Diese großartige Terrasse ist der perfekte Ort, um die Schönheit der Umgebung voll und ganz zu genießen. Eine Garage bietet zudem Platz für Fahrzeuge und rundet das Gesamtpaket dieser luxuriösen Villa ab.
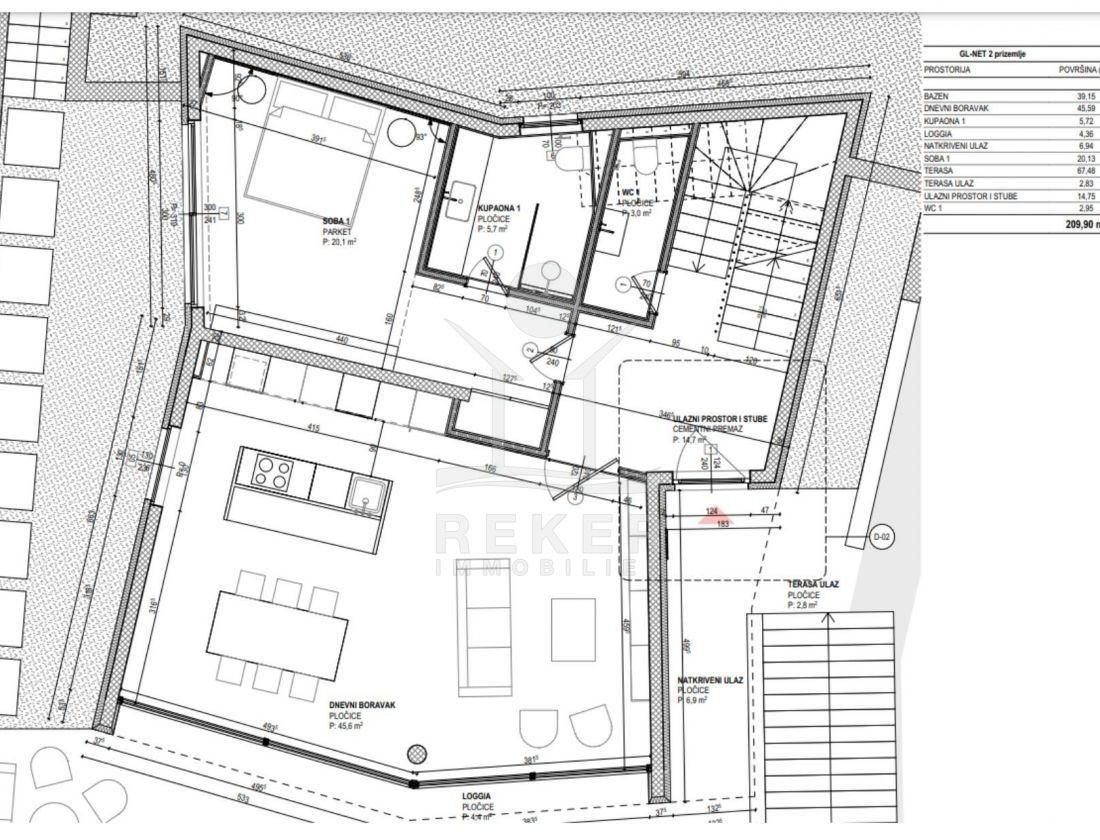
Einladende offene Grundrissgestaltung
Im Erdgeschoss erwartet Sie ein offener und luftiger Grundriss mit einem Wohn- und Essbereich und einer modernen Küche. Das Objekt verfügt über eine Klimaanlage und wird voll möbliert verkauft. Eine hohe, repräsentative Glasfront ermöglicht Zugang zur Terrasse und dem Pool im Außenbereich. Ein Schlafzimmer und ein Badezimmer vervollständigen diese Etage.
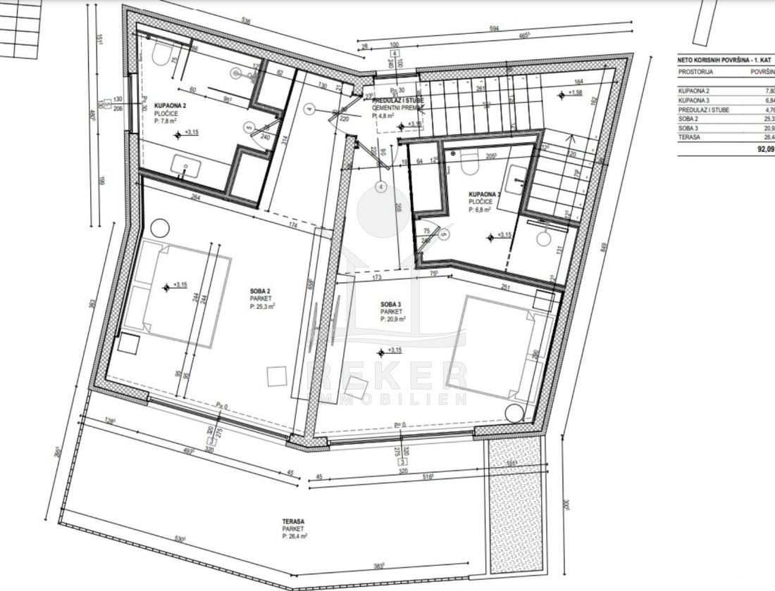
Panoramablick und Privatsphäre
Über eine interne Treppe gelangen Sie in den ersten Stock, wo sich zwei weitere Schlafzimmer mit eigenem Badezimmer befinden. Ein Balkon lädt dazu ein, die atemberaubende Panoramakulisse mit Blick auf die Natur und die sanften Hügel zu genießen.
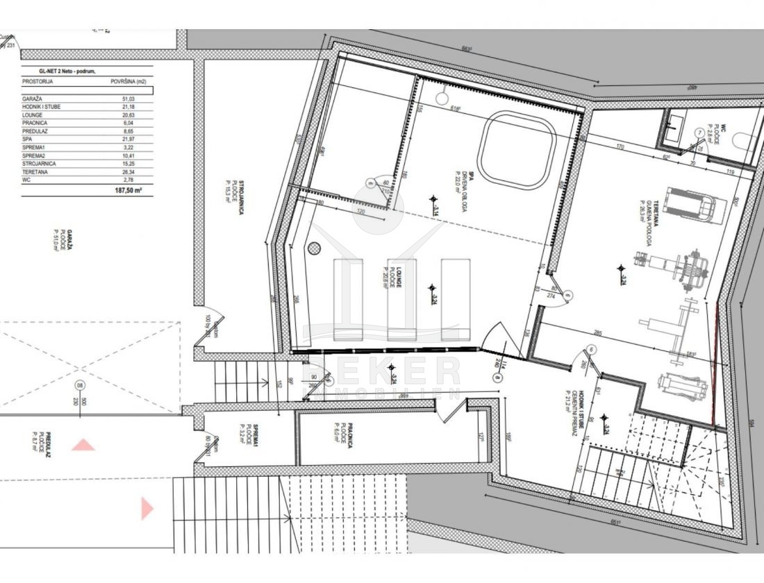
Entspannen und Trainieren im Untergeschoss
Im Untergeschoss der Wohnung finden Sie einen Fitnessraum, in dem Sie sich auspowern können, sowie eine Sauna und einen Jacuzzi für Momente der Entspannung und Entschleunigung. Ein moderner Weinkeller lädt für gesellige Stunden ein. Purer Luxus! Ein separater Trocken- und Waschraum sowie ein Abstellraum sorgen für zusätzlichen Komfort.
Die Villa erwartet Sie in Rožat!
- Ort: Rožat (Dorf)
- Einwohnerzahl: 340 (2011)
- Region: Dubrovnik-Neretva
- Autobahnentfernung: ca. 134 km *
- Nächster Flughafen: Dubrovnik / ca. 30 km *
Immobiliendaten
- Objektart: Haus
- Objekttyp: Villa
- Baujahr: 2020
- ID: 5696
- Kaufpreis: 2.500.000 €
- Provision: 3,75 % inkl. MwSt. in Kroatien
- Grundstücksgröße: 462 m²
- Wohnfläche: 170 m²
- Anzahl Zimmer: 4
- Anzahl Schlafzimmer: 3
- Anzahl Badezimmer: 3
- Land: Kroatien
- Region: Dubrovnik-Neretva
- Ort: Rožat
- Ortsmitte: 6 km
Haben Sie Interesse die schöne Villa zu besitzen?
Nehmen Sie gerne Kontakt mit mir auf!
Ich bin Heiner Reker, Gründer und
Geschäftsführer von Reker Immobilien d.o.o. Ich begleite Sie bei Ihrer aufregenden Reise in die Welt der Immobilien in Kroatien.
Gerne organisiere ich persönlich mit meinen qualifizierten Partnern jeden Schritt bei Ihrem rechtssicheren und stressfreien Immobilienkauf in Kroatien.
Füllen Sie das Formular aus und ich melde mich gerne zum gewünschten Zeitpunkt bei Ihnen.
Bis bald
Exposé mitnehmen?
Laden Sie unser PDF-Exposé herunter und Sie haben die wichtigste Objektdaten & Bilder immer zur Hand
Exposé mitnehmen?
Nehmen Sie Kontakt mit uns auf, ein Exposé schicken wir gerne per E-Mail
Ihre Traum-Immobilie noch nicht gefunden?
Besuchen Sie diese Seiten!





































