5 LUXUS-VILLEN IN ROGOZNICA: EIN WAHRES WOHNPARADIES
Luxus-Leben erster Klasse
In begehrenswerter Lage finden Sie Ihre neue Wohlfühl-Oase auf einem etwa 433 m² umfassenden Grundstück. Es gibt 3 Stellplätze im Freien neben der Luxus-Villa.
2 Stockwerke zum Staunen
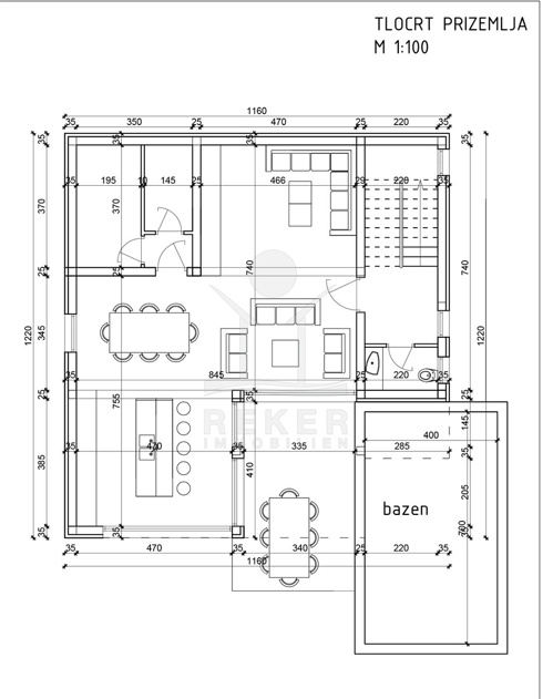
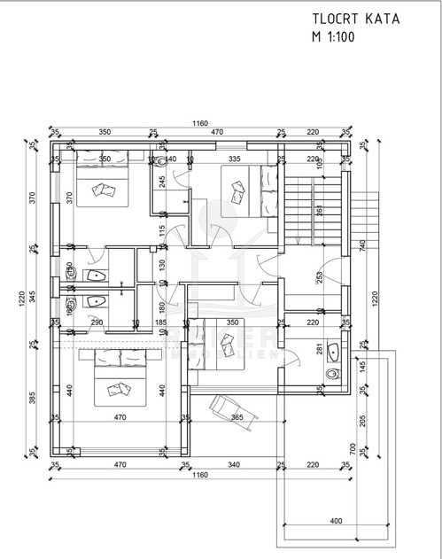
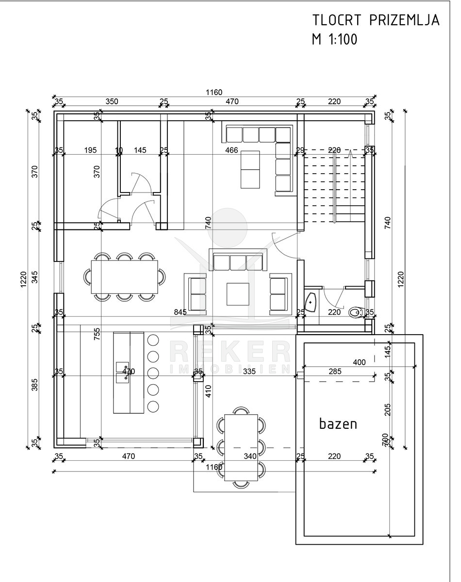
Im Erdgeschoss dieser Neubau-Villa aus 2023 finden Sie ein Gäste-WC und ein sehr geräumiges Wohnzimmer mit offener Küche und Essplatz, während das Obergeschoss mit 4 traumhaften Schlafzimmern mit jeweils eigenem Badezimmer begeistert.
Tauchen Sie im herrlichen Pool in Ihr neues Glück ein, oder genießen Sie die wärmenden Sonnenstrahlen auf dem Sonnendeck. Auf der überdachten Terrasse erwarten Sie Stunden voller Harmonie in bester Gesellschaft. Perfektioniert wird diese Luxus-Villa durch den Balkon mit magischem Meerblick.
Die Villa erwartet Sie in Rogoznica!
- Ort: Rogoznica (Gemeinde)
- Einwohnerzahl: 2.425 (2011)
- Region: Dalmatien-Sibenik
- Autobahnentfernung: ca. 39 km *
- Nächster Flughafen: Split / ca. 33 km *
Immobiliendaten
- Objektart: Haus
- Objekttyp: Villa
- Baujahr: 2023
- ID: 4840
- Kaufpreis: 1.000.000 €
- Provision: 3,75 % inkl. MwSt. in Kroatien
- Grundstücksgröße: 433 m²
- Anzahl Zimmer: 5
- Anzahl Schlafzimmer: 4
- Anzahl Badezimmer: 4
- Land: Kroatien
- Region: Dalmatien-Sibenik
- Ort: Rogoznica
- Meerentfernung: 70 m
Haben Sie Interesse die schöne Villa zu besitzen?
Nehmen Sie gerne Kontakt mit mir auf!
Ich bin Heiner Reker, Gründer und
Geschäftsführer von Reker Immobilien d.o.o. Ich begleite Sie bei Ihrer aufregenden Reise in die Welt der Immobilien in Kroatien.
Gerne organisiere ich persönlich mit meinen qualifizierten Partnern jeden Schritt bei Ihrem rechtssicheren und stressfreien Immobilienkauf in Kroatien.
Füllen Sie das Formular aus und ich melde mich gerne zum gewünschten Zeitpunkt bei Ihnen.
Bis bald
Exposé mitnehmen?
Laden Sie unser PDF-Exposé herunter und Sie haben die wichtigste Objektdaten & Bilder immer zur Hand
Exposé mitnehmen?
Nehmen Sie Kontakt mit uns auf, ein Exposé schicken wir gerne per E-Mail
Ihre Traum-Immobilie noch nicht gefunden?
Besuchen Sie diese Seiten!












