NEUBAU LUXUSVILLA IN PRIMOŠTEN - DIE PERFEKTE VERBINDUNG AUS ELEGANZ UND EXKLUSIVITÄT

Luxusvilla in ruhiger Umgebung umgeben von Natur
Die atemberaubende Luxusvilla liegt in einer ruhigen Umgebung in Primošten und bietet Ihnen eine unvergleichliche Atmosphäre. Umgeben von einer malerischen Landschaft und einer idyllischen Naturkulisse können Sie hier absolute Ruhe und Entspannung genießen. Das Meer ist nur 1,5 km entfernt und kann bequem erreicht werden. Auch Geschäfte, Banken und die Post befinden sich in der Nähe und sind leicht erreichbar. Diese Lage bietet Ihnen sowohl die Möglichkeit, die natürliche Schönheit der Umgebung zu erkunden, als auch die Annehmlichkeiten des täglichen Lebens in greifbarer Nähe zu haben. In dieser Luxusvilla in Primošten können Sie dem hektischen Alltag entfliehen und sich inmitten der Natur erholen.
Exquisite Luxusvilla mit Meerblick
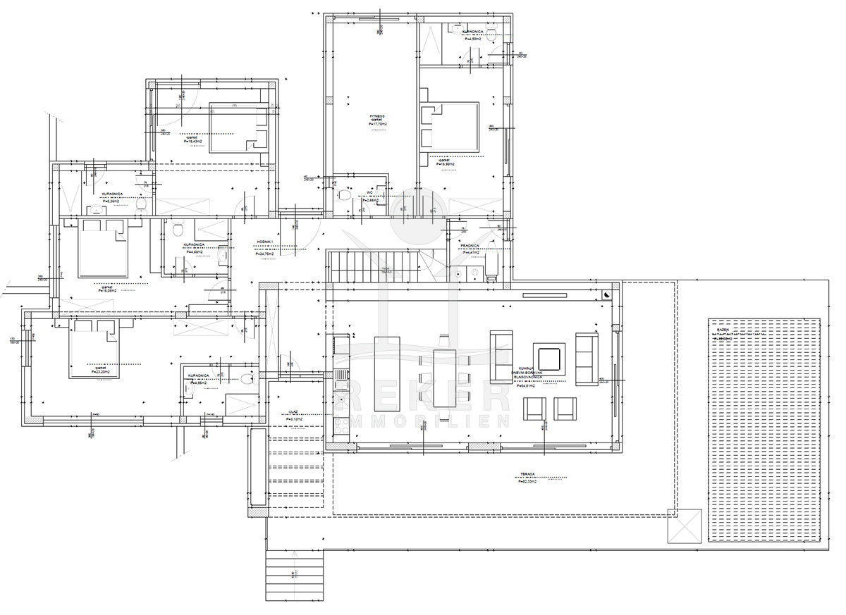
Auf einem beeindruckenden Grundstück erhebt sich diese luxuriöse Villa mit einer Fläche von 302 m² und erstreckt sich auf einer Etage mit Untergeschoss. Der Neubau mit Flachdach und Steinfassade bietet ein modernes und elegantes Design. Das Besondere an dieser Anlage ist, dass alle Villen so gebaut und positioniert sind, dass jede von ihnen einen freien Blick auf das atemberaubende Meerespanorama genießt. Ein wahrhaftiges, luxuriöses Wohngefühl erwartet Sie hier.
Die Terrasse mit einer Größe von 31 m² der Luxusvilla sorgt für ein unvergessliches Erlebnis im Freien. Mit einem Swimmingpool, Sonnenliegen und einer überdachten Terrasse bietet dieser Außenbereich den perfekten Ort, um sich zu entspannen und das mediterrane Klima zu genießen. Die Außenküche, der Außenkamin und der Grill sind ideal für Barbecues und Zusammenkünfte im Freien geeignet. Diese Traumvilla bietet einen luxuriösen Lebensstil und ermöglicht Ihnen, die Schönheit der Umgebung in vollen Zügen zu erleben.
Die Villa wird mit einer Klimaanlage ausgestattet, um Ihren Komfort zu gewährleisten. Das Erdgeschoss bietet insgesamt 4 Schlafzimmer, jedes mit eigenem Badezimmer. Es gibt auch eine separate Toilette, einen Fitnessraum und eine Waschküche für Ihre Bequemlichkeit. Geräumige Flure führen Sie zu einem großzügigen Wohnzimmer, einer gut ausgestatteten Küche und einem Esszimmer. Hier haben Sie viel Platz, um Gäste zu empfangen und gesellige Abende zu genießen. Ein großer Abstellraum und eine Garage sind ebenfalls vorhanden und befindet sich im Untergeschoss mit einer Fläche von 78 m², um Ihre persönlichen Gegenstände ordentlich verstauen zu können.










Die Immobilie
- Villa in Primošten, Dalmatien-Sibenik
- Baujahr: 2024
- Zustand: Erstbezug
- Wohnfläche: 302 m²
- Überdachte Terrasse
Mediterraner Garten
- Swimming Pool
- Aussenküche
- Mediterraner Grillplatz
- Steinmauer
Ausstattung
- Anzahl Zimmer: 5
- Anzahl Schlafzimmer: 4
- Anzahl Badezimmer: 4
- Heizung: Klimaanlage
- Wasch-, Trockenraum
- Unterkellert
Die Villa erwartet Sie in Primošten!
- Ort: Primošten (Gemeinde)
- Einwohnerzahl: 2.828 (2011)
- Region: Dalmatien-Sibenik
- Autobahnentfernung: ca. 30 km *
- Nächster Flughafen: Split / ca. 39 km *

Immobiliendaten
- Objektart: Haus
- Objekttyp: Villa
- Baujahr: 2024
- ID: 6390
- Kaufpreis: 1.260.000 €
- Provision: 3,75 % inkl. MwSt. in Kroatien
- Wohnfläche: 302 m²
- Anzahl Zimmer: 5
- Anzahl Schlafzimmer: 4
- Anzahl Badezimmer: 4
- Land: Kroatien
- Region: Dalmatien-Sibenik
- Ort: Primošten
- Meerentfernung: 2 km
Haben Sie Interesse die schöne Villa zu besitzen?
Nehmen Sie gerne Kontakt mit mir auf!
Ich bin Heiner Reker, Gründer und
Geschäftsführer von Reker Immobilien d.o.o. Ich begleite Sie bei Ihrer aufregenden Reise in die Welt der Immobilien in Kroatien.
Gerne organisiere ich persönlich mit meinen qualifizierten Partnern jeden Schritt bei Ihrem rechtssicheren und stressfreien Immobilienkauf in Kroatien.
Füllen Sie das Formular aus und ich melde mich gerne zum gewünschten Zeitpunkt bei Ihnen.
Bis bald

Exposé mitnehmen?
Laden Sie unser PDF-Exposé herunter und Sie haben die wichtigste Objektdaten & Bilder immer zur Hand
Exposé mitnehmen?
Nehmen Sie Kontakt mit uns auf, ein Exposé schicken wir gerne per E-Mail
Ihre Traum-Immobilie noch nicht gefunden?
Besuchen Sie diese Seiten!