ATEMBERAUBENDE LUXUSVILLA IN ERSTER REIHE: MEERBLICK AUS JEDER WOHNUNG
Lage & Außenbereich
Sie möchten direkt ans Meer? Diese moderne Villa aus dem Jahr 2018 liegt nur etwa 50 Meter vom Wasser entfernt – mit freiem Blick auf die Adria und nur zehn Gehminuten von der Altstadt von Opatija. Das Gebäude hat eine Gesamtfläche von 1.205 m² und steht auf einem rund 830 m² großen Grundstück. Sechs private Parkplätze gehören dazu, zusätzlich gibt’s einen öffentlichen Parkplatz direkt nebenan – ideal für Gäste oder Mieter. Auch Busverbindungen nach Opatija oder Rijeka sind gleich um die Ecke.
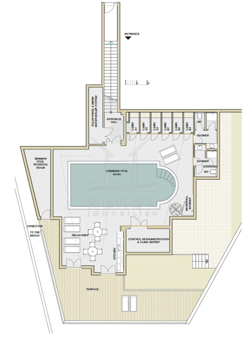
Im Außenbereich warten eine große Terrasse mit Meerblick und ein sonniger Garten. Das Highlight: ein beheizter Innenpool mit Ruheliegen, Umkleidekabinen und kleiner Küche – perfekt für entspannte Stunden zu jeder Jahreszeit.
Innenraum & Interieur
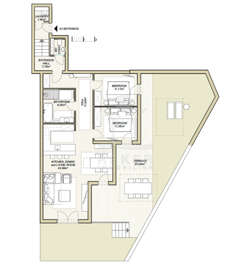
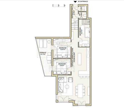
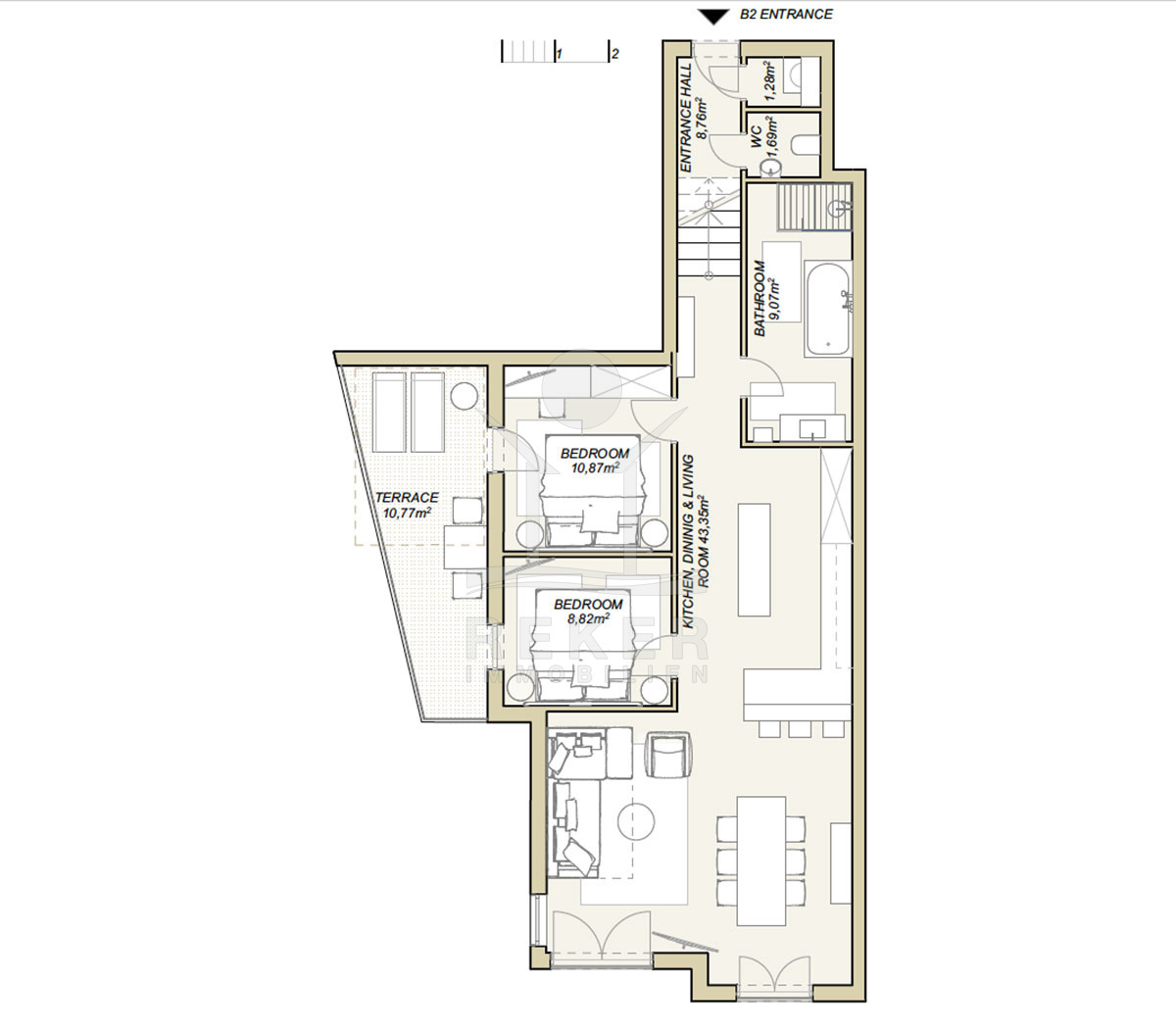
Die Villa ist auf vier Etagen verteilt: Untergeschoss, Erdgeschoss und zwei Obergeschosse. Insgesamt gibt es sechs vollständig ausgestattete Wohnungen – jede zwischen 84 m² und 153 m² groß. Alle Einheiten sind modern eingerichtet und wurden mit 4 bis 5 Sternen bewertet. Große Fenster und Terrassen sorgen für viel Licht und freie Sicht aufs Meer. Zur Ausstattung jeder Wohnung gehören eine voll eingerichtete Küche, ein Wohnbereich mit Sitzgruppe und Schreibtisch, Flachbild-TV, WLAN, Klimaanlage und Fußbodenheizung.
Ob Sie das Haus privat nutzen möchten oder als Investition für die touristische Vermietung – Lage, Qualität und Ausstattung sprechen für sich. Eine seltene Gelegenheit an der Riviera von Opatija, wenn Sie Wohnen mit Meerblick und hoher Flexibilität verbinden wollen.
Die Villa erwartet Sie in Opatija!
- Ort: Opatija (Stadt)
- Einwohnerzahl: 11.659 (2011)
- Region: Kvarner-Bucht
- Autobahnentfernung: ca. 4 km *
- Nächster Flughafen: Rijeka / ca. 40 km *
Immobiliendaten
- Objektart: Haus
- Objekttyp: Villa
- Baujahr: 2018
- ID: 9356
- Kaufpreis: 4.000.000 €
- Provision: 3,75 % inkl. MwSt. in Kroatien
- Grundstücksgröße: 830 m²
- Wohnfläche: 1205 m²
- Anzahl Zimmer: 21
- Anzahl Schlafzimmer: 14
- Anzahl Badezimmer: 9
- Land: Kroatien
- Region: Kvarner-Bucht
- Ort: Opatija
- Meerentfernung: 50 m
Haben Sie Interesse die schöne Villa zu besitzen?
Nehmen Sie gerne Kontakt mit mir auf!
Ich bin Heiner Reker, Gründer und
Geschäftsführer von Reker Immobilien d.o.o. Ich begleite Sie bei Ihrer aufregenden Reise in die Welt der Immobilien in Kroatien.
Gerne organisiere ich persönlich mit meinen qualifizierten Partnern jeden Schritt bei Ihrem rechtssicheren und stressfreien Immobilienkauf in Kroatien.
Füllen Sie das Formular aus und ich melde mich gerne zum gewünschten Zeitpunkt bei Ihnen.
Bis bald
Exposé mitnehmen?
Laden Sie unser PDF-Exposé herunter und Sie haben die wichtigste Objektdaten & Bilder immer zur Hand
Exposé mitnehmen?
Nehmen Sie Kontakt mit uns auf, ein Exposé schicken wir gerne per E-Mail
Ihre Traum-Immobilie noch nicht gefunden?
Besuchen Sie diese Seiten!
























































