TRAUMVILLA IN KAŠTELIR MIT BEHEIZTEM POOL UND HOCHWERTIGER AUSSTATTUNG
Villa in ausgezeichneter Lage in Kaštelir
Die beeindruckende Villa liegt in einer ausgezeichneten Lage in Kaštelir. Sie genießen hier die Ruhe und Privatsphäre, die dieses schöne Städtchen bietet. Das Meer ist nur 6 km entfernt und das Zentrum von Kaštelir ist nur 1 km entfernt, sodass Sie sowohl die Schönheit der Küste als auch die Annehmlichkeiten der Stadt in Reichweite haben. Die Umgebung ist von malerischen Hügeln und Weinbergen geprägt, die zu Spaziergängen und Fahrradtouren einladen. Hier können Sie die traditionelle mediterrane Lebensweise in vollen Zügen genießen.
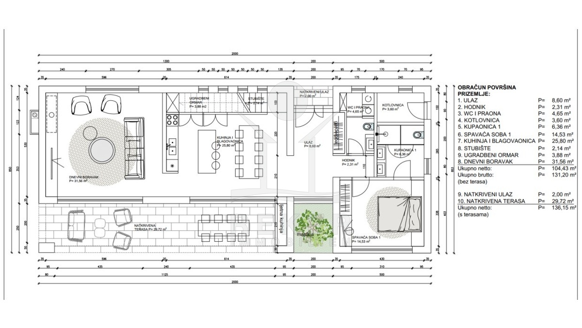
Das Anwesen befindet sich auf einem großzügigen Grundstück von 1.020 m². Das Gebäude erstreckt sich über 2 Etagen mit einer Wohnfläche von 250 m² und wird voraussichtlich im zweiten Quartal 2024 fertiggestellt. Mit modernsten Ausstattungsmerkmalen wie einer Wärmepumpe, einem Sicherheitsalarm und Videokameras wird höchster Komfort und Sicherheit geboten.
Im großzügigen Garten entsteht eine traumhafte Terrasse, die sich perfekt für entspannte Stunden im Freien eignet. Ein beheizter Pool lädt zum Baden und Relaxen ein. Die Villa bietet auch ausreichend Platz für das Auto mit zwei Stellplätzen. Diese luxuriöse Villa verspricht ein unvergleichliches Wohngefühl in einer traumhaften Umgebung.
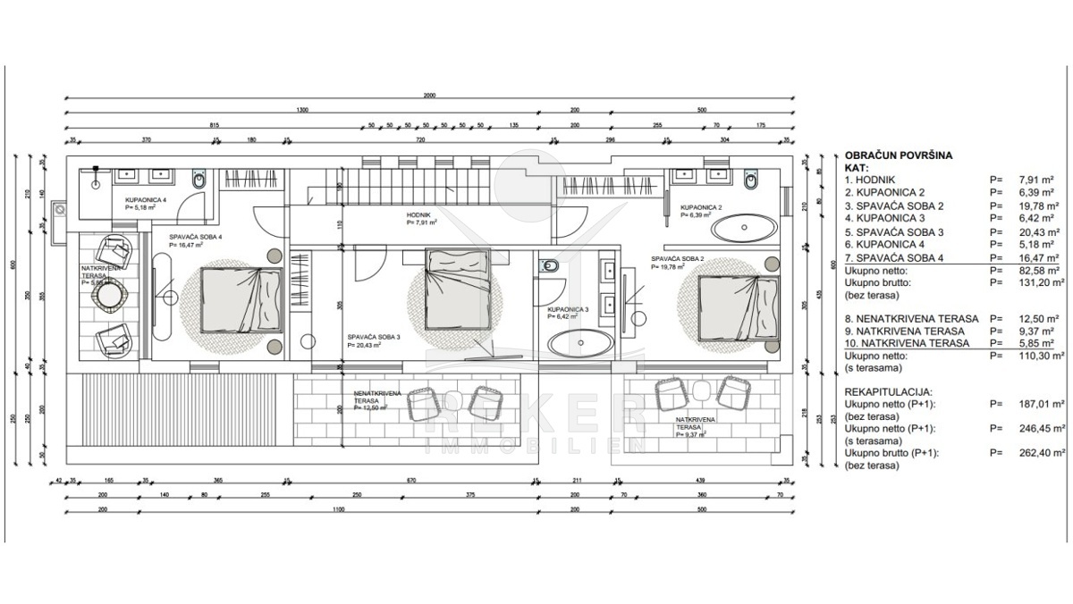
Das Objekt verfügt eine hochwertige Ausstattung mit Fußbodenheizung und Klimaanlage für ultimativen Komfort. Im Erdgeschoss erwartet Sie ein Schlafzimmer mit eigenem Bad, ein Wohnzimmer mit offener Küche, die zu einer großzügigen Terrasse und einem Swimmingpool von einer Größe von 49 m² führt.
Im ersten Stock erwarten Sie drei Schlafzimmer, jedes mit eigenem en suite Badezimmer. Jedes Schlafzimmer hat auch eine eigene überdachte Terrasse, von der aus Sie einen freien Blick auf das Meer genießen können. Diese privaten Rückzugsorte bieten Ihnen Entspannung und Erholung.




Das Adriatische Meer
- Meerentfernung: 6 km
- Aussicht: Meerblick
Die Immobilie
- Villa in Kaštelir, Istrien
- Baujahr: 2023
- Zustand: Erstbezug
- Wohnfläche: 250 m² – Grundstücksgröße: 1020 m²
- Etagenzahl: 2
- Überdachte Terrasse
Mediterraner Garten
- Beheizter Pool
Ausstattung
- Anzahl Zimmer: 5
- Anzahl Schlafzimmer: 4
- Anzahl Badezimmer: 4
- Heizung: Wärmepumpe, Fußbodenheizung, Klimaanlage, Kamin
- Sicherheit: Alarmanlage, Kamera
Immobiliendaten
- Objektart: Haus
- Objekttyp: Villa
- Baujahr: 2023
- ID: 5891
- Kaufpreis: 1.350.000 €
- Provision: 3,75 % inkl. MwSt. in Kroatien
- Grundstücksgröße: 1020 m²
- Wohnfläche: 250 m²
- Anzahl Zimmer: 5
- Anzahl Schlafzimmer: 4
- Anzahl Badezimmer: 4
- Land: Kroatien
- Region: Istrien
- Ort: Kaštelir
- Meerentfernung: 6 km
- Ortsmitte: 1 km
Haben Sie Interesse die schöne Villa zu besitzen?
Nehmen Sie gerne Kontakt mit mir auf!
Ich bin Heiner Reker, Gründer und
Geschäftsführer von Reker Immobilien d.o.o. Ich begleite Sie bei Ihrer aufregenden Reise in die Welt der Immobilien in Kroatien.
Gerne organisiere ich persönlich mit meinen qualifizierten Partnern jeden Schritt bei Ihrem rechtssicheren und stressfreien Immobilienkauf in Kroatien.
Füllen Sie das Formular aus und ich melde mich gerne zum gewünschten Zeitpunkt bei Ihnen.
Bis bald
Exposé mitnehmen?
Laden Sie unser PDF-Exposé herunter und Sie haben die wichtigste Objektdaten & Bilder immer zur Hand
Exposé mitnehmen?
Nehmen Sie Kontakt mit uns auf, ein Exposé schicken wir gerne per E-Mail
Ihre Traum-Immobilie noch nicht gefunden?
Besuchen Sie diese Seiten!

