NEUBAU LUXUSVILLA IN CRIKVENICA MIT POOL UND GERADLINIGEM DESIGN
Moderne Villa umgeben von grüner Natur in Crikvenica
Die neu erbaute Villa befindet sich in einer attraktiven und grünen Umgebung in Crikvenica. Hier genießen Sie die Ruhe und Privatsphäre eines exklusiven Wohngebiets, nur 500 Meter vom Meer entfernt. Die Umgebung ist von üppiger Vegetation und mediterraner Flora geprägt, was ein Gefühl von Harmonie und Serenität vermittelt. Erholen Sie sich auf Ihrer Terrasse und genießen Sie den Blick auf die umliegende Natur. Gleichzeitig sind Sie nur einen Spaziergang vom erfrischenden Meer entfernt, wo Sie sich an den wunderschönen Stränden sonnen oder im kristallklaren Wasser schwimmen können. Die Lage bietet Ihnen somit die ideale Kombination aus ländlicher Idylle und Strandnähe.
Die Villa erstreckt sich über ein 722 m² großes Grundstück mit einer atemberaubenden Südausrichtung und Blick auf das Meer. Eine elegante Steinmauer umgibt das Anwesen und verleiht ihm eine luxuriöse Note. Das Gebäude erstreckt sich über 2 Etagen und bietet eine Wohnfläche von 345 m². Die Immobilie ist mit elektrischen Jalousien, die per Fernbedienung gesteuert werden, ausgestattet. Zimmertüren verfügen über unsichtbare Stangen und Magnetschlösser für ein sauberes Erscheinungsbild. Eine Wärmepumpe sorgt für eine effiziente Heizung und Kühlung. Das Neubau - Projekt verfügt über einen Keller, der zusätzlichen Raum für Lagerräume oder einen Fitnessbereich und wird voraussichtlich im August 2023 abgeschlossen sein.
Die Anlage zeigt wahre Großzügigkeit mit ihrer erweiterten Terrasse und einem wunderschönen Pool. Die Terrasse bietet ausreichend Platz für Sonnenliegen und Outdoor-Möbel, perfekt geeignet zum Entspannen und Genießen des sonnigen Klimas. Der Pool lädt zum Abkühlen und Schwimmen ein und wird zu einem Zentrum der Entspannung im Freien. Die Freifläche bietet Parkmöglichkeiten für drei Fahrzeuge, während eine Tiefgarage geplant ist, um zusätzlichen Schutz zu bieten. Diese neue Villa ist perfekt für diejenigen, die Luxus, Raum und Entspannung suchen.




Das Adriatische Meer
- Meerentfernung: 500 m
- Aussicht: Meerblick
Die Immobilie
- Villa in Crikvenica, Kvarner-Bucht
- Baujahr: 2023
- Zustand: Neuwertig
- Wohnfläche: 345 m² – Grundstücksgröße: 772 m²
- Etagenzahl: 2
- Überdachte Terrasse
Mediterraner Garten
- Swimming Pool
- Steinmauer
Parken
- Anzahl: 3
- Tiefgarage
- Stellplatz im Freien
Luxuriöses Wohnen - zahlreiche Vorteile
Die Immobilie bietet Ihnen eine Vielzahl an Komfort, darunter eine Klimaanlage und Fußbodenheizung für das perfekte Raumklima. Im Untergeschoss finden Sie eine Garage, einen Heizraum sowie eine private Wellnessoase mit Sauna, Dusche und WC, in der Sie vom Alltag abschalten und neue Energie tanken können.
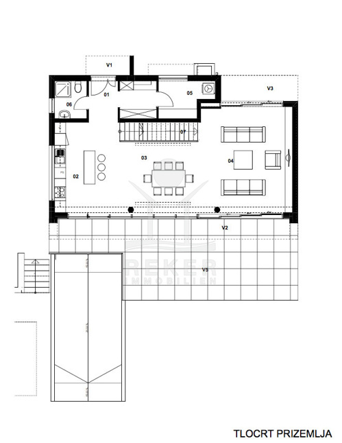
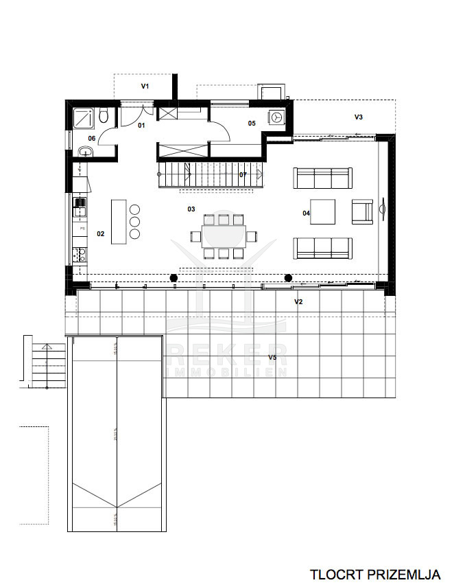
Im Erdgeschoss erwartet Sie ein luftiger Wohn- und Essbereich mit offener Küche. Dieses offene Konzept besticht durch eine 12 Meter lange Glaswand mit einer Höhe von 2,6 Metern, die für eine lichtdurchflutete Atmosphäre sorgt. Zusätzlich finden Sie hier ein Badezimmer, einen begehbaren Kleiderschrank und einen Wasch- und Trockenraum.
Über eine elegante Innentreppe gelangen Sie in den 1. Stock, der vier Schlafzimmer und vier Badezimmer bietet. Ein Schlafzimmer verfügt über einen begehbaren Kleiderschrank und ein Badezimmer mit einer frei stehenden Badewanne. Zudem haben Sie direkten Zugang zum Balkon mit Blick auf das Meer.
Die Villa erwartet Sie in Crikvenica!
- Ort: Crikvenica (Stadt)
- Einwohnerzahl: 11.122 (2011)
- Region: Kvarner-Bucht
- Autobahnentfernung: ca. 1 km *
- Nächster Flughafen: Rijeka / ca. 20 km *
Immobiliendaten
- Objektart: Haus
- Objekttyp: Villa
- Baujahr: 2023
- ID: 5630
- Kaufpreis: 1.440.000 €
- Provision: 3,75 % inkl. MwSt. in Kroatien
- Grundstücksgröße: 772 m²
- Wohnfläche: 345 m²
- Anzahl Zimmer: 5
- Anzahl Schlafzimmer: 4
- Anzahl Badezimmer: 5
- Land: Kroatien
- Region: Kvarner-Bucht
- Ort: Crikvenica
- Meerentfernung: 500 m
Haben Sie Interesse die schöne Villa zu besitzen?
Nehmen Sie gerne Kontakt mit mir auf!
Ich bin Heiner Reker, Gründer und
Geschäftsführer von Reker Immobilien d.o.o. Ich begleite Sie bei Ihrer aufregenden Reise in die Welt der Immobilien in Kroatien.
Gerne organisiere ich persönlich mit meinen qualifizierten Partnern jeden Schritt bei Ihrem rechtssicheren und stressfreien Immobilienkauf in Kroatien.
Füllen Sie das Formular aus und ich melde mich gerne zum gewünschten Zeitpunkt bei Ihnen.
Bis bald
Exposé mitnehmen?
Laden Sie unser PDF-Exposé herunter und Sie haben die wichtigste Objektdaten & Bilder immer zur Hand
Exposé mitnehmen?
Nehmen Sie Kontakt mit uns auf, ein Exposé schicken wir gerne per E-Mail
Ihre Traum-Immobilie noch nicht gefunden?
Besuchen Sie diese Seiten!









