SPÜREN SIE DIE SCHÖNHEIT VON BRELA: NEUBAU LUXUSVILLA MIT PANORAMABLICK UND EXKLUSIVEM WOHNAMBIENTE

Mediterranes Traumleben in Brela
Die extravagante Neubau Luxusvilla liegt in unmittelbarer Nähe zum Meer und ermöglicht einen komfortablen Zugang zu den malerischen Badebuchten in Brela. Die natürliche Schönheit der Stadt und ihre ausgezeichnete Infrastruktur mit Supermärkten, Schulen und Sportanlagen in Gehweite machen sie zu einem idealen Ort, um das mediterrane Lebensgefühl in vollen Zügen zu genießen. Mit ihren bezaubernden Stränden und kristallklaren Gewässern erfüllt Brela alle Ansprüche an ein traumhaftes Küstenleben. Der Flughafen von Split ist ebenfalls bequem zu erreichen, was die Villa zu einem äußerst attraktiven Standort macht.
Modernes Meisterwerk in natürlichem Ambiente
Eingebettet in eine atemberaubende Hügellandschaft liegt diese Luxusvilla mit einer Wohnfläche von 268 m² auf einem 379 m² großen Grundstück, das von schöner Natur und Pinienbäumen umgeben ist. Das Gebäude erstreckt sich über 3 Etagen und befindet sich derzeit im Bau, mit einer geplanten Fertigstellung im Mai 2024. Das Haus verfügt über ein Untergeschoss. Die Villa bietet erstklassige Aluminiumtischlerei, Keramik- und Sanitärkeramik, Multi-Klimaanlagen und Fußbodenheizung in den Bädern für eine luxuriöse und komfortable Atmosphäre.
Der Außenbereich präsentiert eine überdachte Terrasse, die perfekt zum Entspannen und Genießen der herrlichen Umgebung geeignet ist. Ein Pool mit 25 m² und ein angelegter Garten bieten zusätzlichen Raum für Freizeitgestaltung und Entspannung. Darüber hinaus bietet der Außenbereich ausreichend Platz für bis zu 3 Autos auf dem Parkplatz. Dieses Anwesen ist eine Oase der Ruhe und Erholung inmitten einer beeindruckenden Naturlandschaft und ein wahres Meisterwerk moderner Architektur.
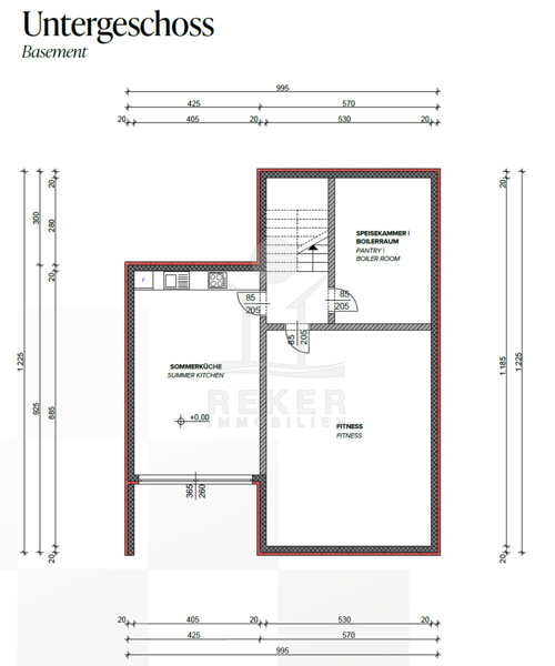
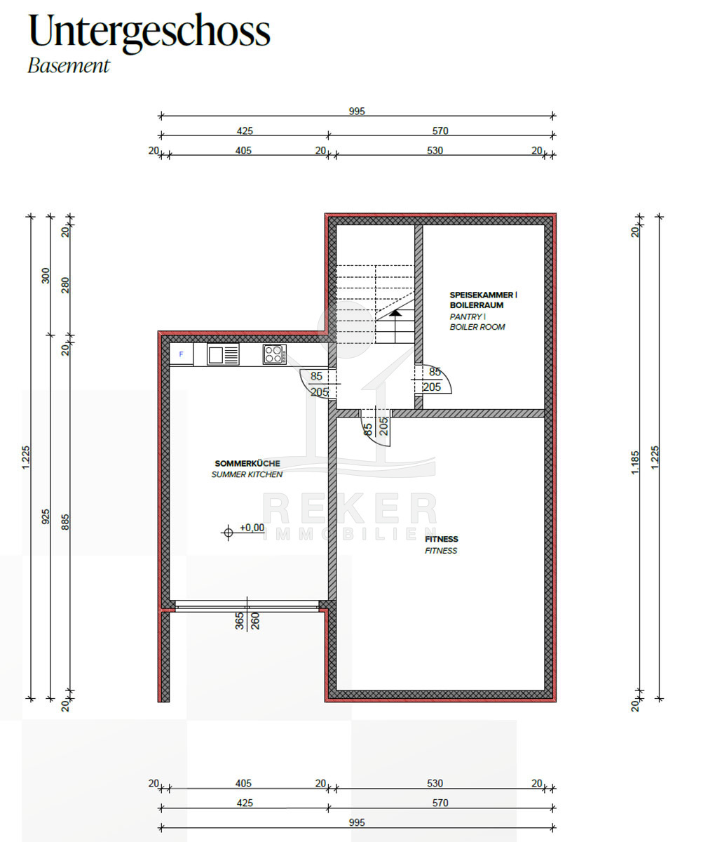
Ein Paradies für Komfort und Unterhaltung
Das Untergeschoss bietet auf einer großzügigen Fläche von 103,60 m² einen Fitnessraum für aktive Stunden sowie eine Outdoor-Küche für gesellige Abende und Zusammenkünfte. Ein Heizraum rundet die Etage ab.
Luxuriöses und großzügiges Wohnen
Das Erdgeschoss (81 m²) umfasst ein offenes Konzept mit Wohn-, Ess- und Küchenbereich, ein Badezimmer und ein Schlafzimmer, die alle mit hochwertigen Einbaumaterialien der Spitzenklasse ausgestattet werden.
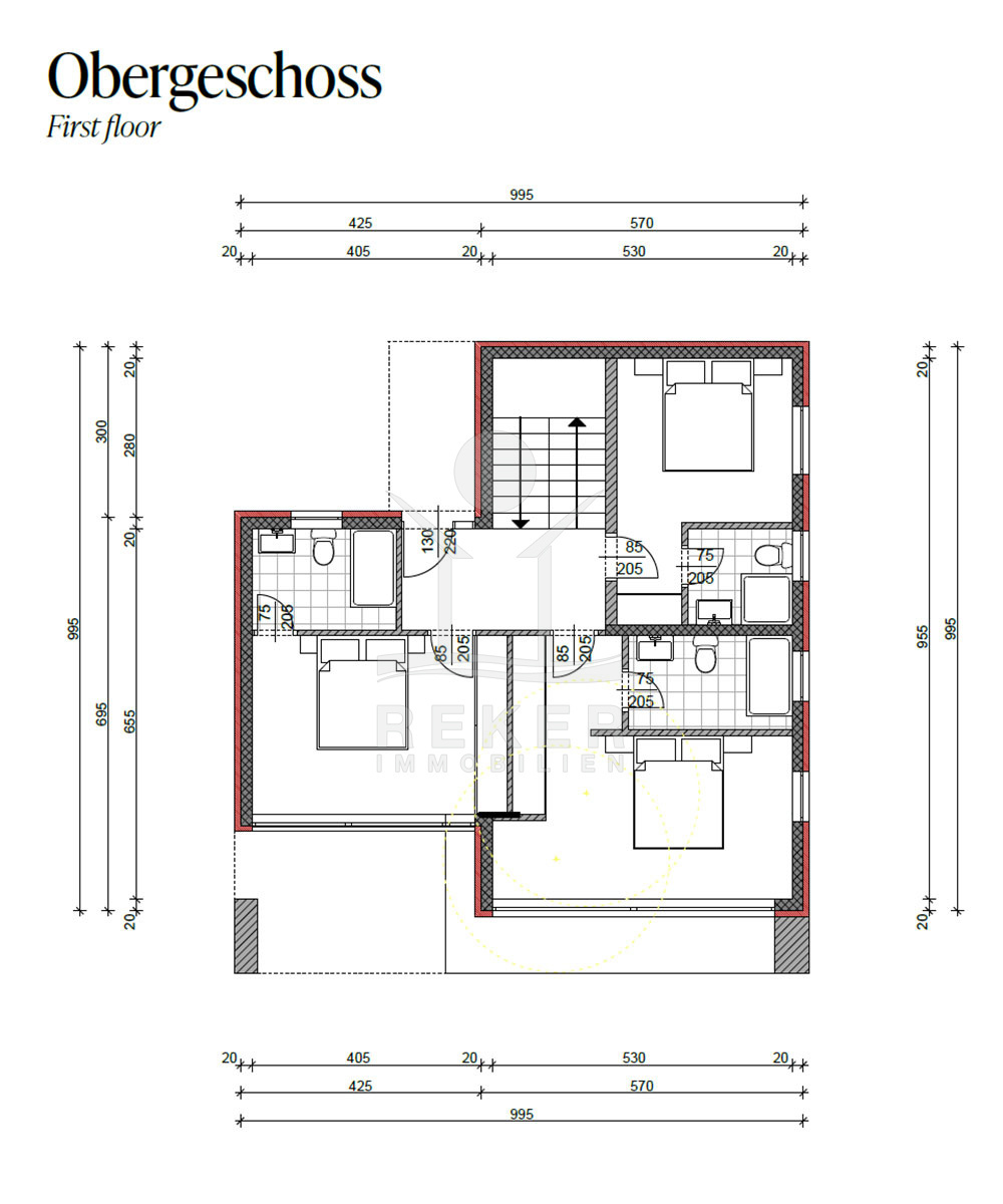
Eleganz und Entspannung mit Meerblick
Im Obergeschoss (84 m²) befinden sich drei Schlafzimmer, jede mit eigenem Bad, sowie ein ausgedehnter Balkon mit einem wundervollen Blick auf das Meer und die Umgebung.
Immobiliendaten
- Objektart: Haus
- Objekttyp: Villa
- Baujahr: 2024
- ID: 6373
- Kaufpreis: 980.000 €
- Provision: 3,75 % inkl. MwSt. in Kroatien
- Grundstücksgröße: 379 m²
- Wohnfläche: 268 m²
- Anzahl Zimmer: 5
- Anzahl Schlafzimmer: 4
- Anzahl Badezimmer: 5
- Land: Kroatien
- Region: Dalmatien-Split
- Ort: Brela
- Meerentfernung: 600 m
Haben Sie Interesse die schöne Villa zu besitzen?
Nehmen Sie gerne Kontakt mit mir auf!
Ich bin Heiner Reker, Gründer und
Geschäftsführer von Reker Immobilien d.o.o. Ich begleite Sie bei Ihrer aufregenden Reise in die Welt der Immobilien in Kroatien.
Gerne organisiere ich persönlich mit meinen qualifizierten Partnern jeden Schritt bei Ihrem rechtssicheren und stressfreien Immobilienkauf in Kroatien.
Füllen Sie das Formular aus und ich melde mich gerne zum gewünschten Zeitpunkt bei Ihnen.
Bis bald

Exposé mitnehmen?
Laden Sie unser PDF-Exposé herunter und Sie haben die wichtigste Objektdaten & Bilder immer zur Hand
Exposé mitnehmen?
Nehmen Sie Kontakt mit uns auf, ein Exposé schicken wir gerne per E-Mail
Ihre Traum-Immobilie noch nicht gefunden?
Besuchen Sie diese Seiten!