HOHER ROHBAU, HOHE KLASSE: 176 M² WOHNFLÄCHE UND POOL MIT MEERBLICK
            Lage & Außenbereich
Vodnjan, ein charmantes istrisches Städtchen mit Geschichte, Olivenöl und ruhigem Lebensrhythmus. Hier entsteht ein modernes Haus mit weitem Blick auf die Brijuni-Inseln. Nur rund 4,5 km trennen Sie vom Meer. Eine schöne Kombination aus Küstennähe und entspannter Umgebung.
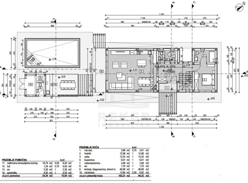
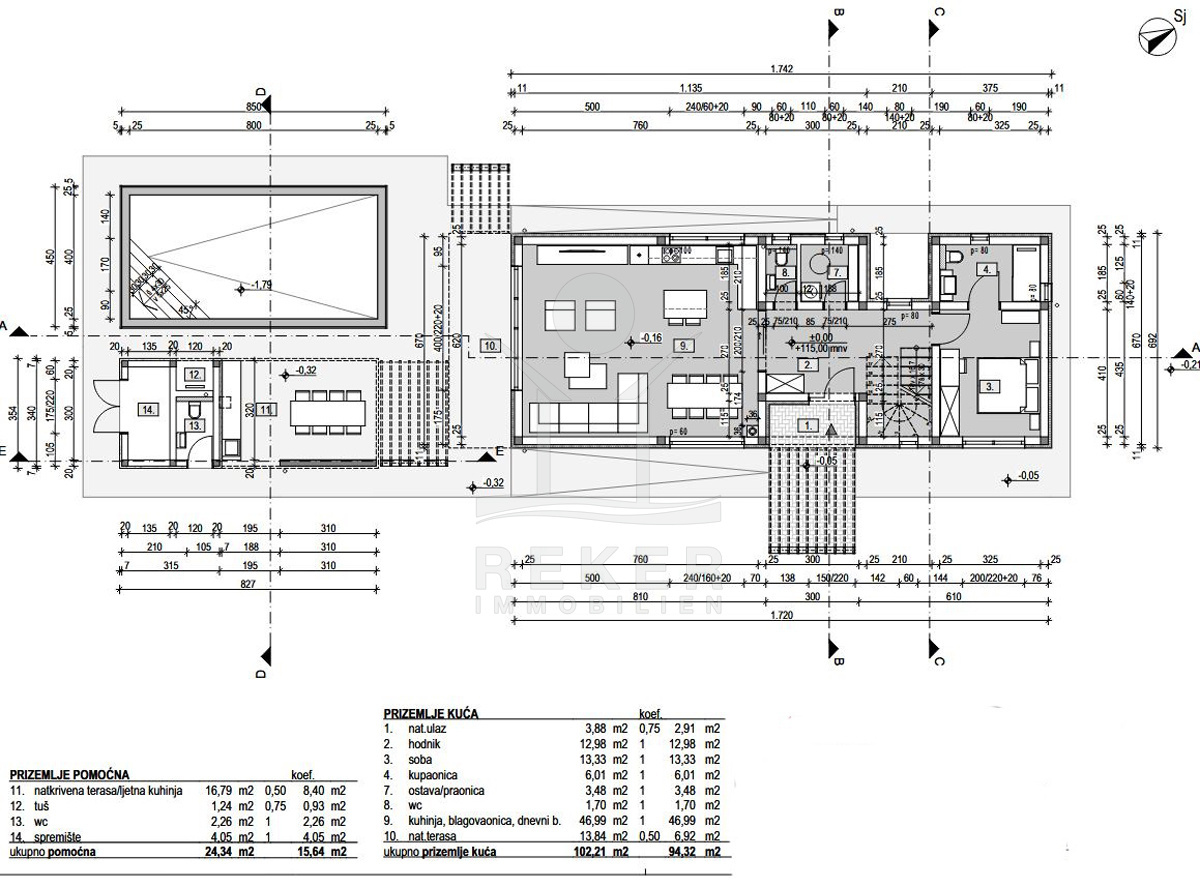
Das 890 m² große Grundstück bietet viel Platz für das Leben im Freien. Der Pool mit 8 × 4 m bildet das Zentrum des Gartens. Rundherum bleibt Raum für eine Sonnenterrasse oder Grünfläche nach Ihrem Geschmack. Ein separates Nebengebäude mit überdachter Terrasse, Sommerküche, Dusche, WC und Abstellraum erweitert den Außenbereich … ideal für gesellige Stunden im Sommer.
Innenraum & Interieur
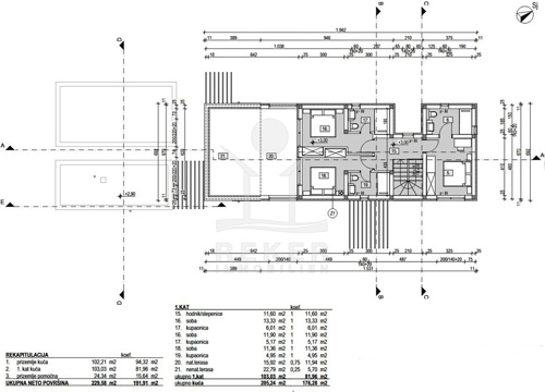
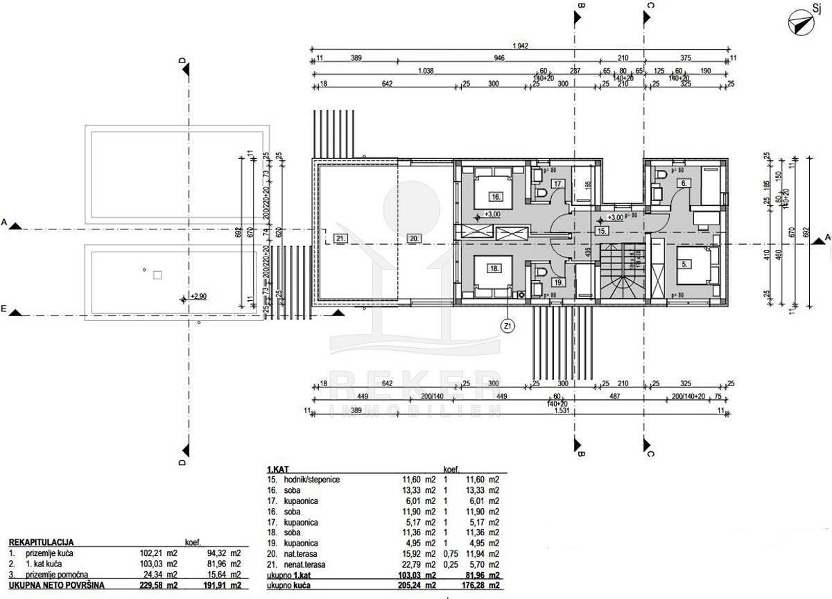
Das Haus umfasst 176,28 m² Wohnfläche auf zwei Etagen. Im Erdgeschoss (94,32 m²) erwarten Sie Eingang, Flur, Zimmer, Bad, Gäste-WC, Waschküche, Küche mit Essbereich und ein Wohnzimmer mit Zugang zur Terrasse. Im Obergeschoss (81,96 m²) befinden sich drei großzügige Schlafzimmer, jeweils mit eigenem Bad. Dazu eine überdachte und eine offene Terrasse mit schönem Blick auf das Meer und die Brijuni-Inseln.
Das Gebäude steht im hohen Rohbauzustand. Fenster und Türen sind bereits eingebaut, der Innenausbau kann individuell gestaltet werden. Materialien, Farben, Ausstattung – alles nach Ihren Vorstellungen. Die Fertigstellung ist für 2026 geplant. Geheizt wird mit Klimaanlage, der Anschluss ans neue Stromnetz erfolgt, die Versorgung ist im Aufbau.
Die Villa erwartet Sie in Vodnjan!
- Ort: Vodnjan (Stadt)
 - Einwohnerzahl: 6.119 (2011)
 - Region: Istrien
 - Autobahnentfernung: ca. 8 km *
 - Nächster Flughafen: Pula / ca. 18 km *
 
                Immobiliendaten
- Objektart: Haus
 - Objekttyp: Villa
 - Baujahr: 2026
 - ID: 9409
 - Kaufpreis: 750.000 €
 - Provision: 3,75 % inkl. MwSt. in Kroatien
 
- Grundstücksgröße: 890 m²
 - Wohnfläche: 176 m²
 - Anzahl Zimmer: 5
 - Anzahl Schlafzimmer: 4
 - Anzahl Badezimmer: 4
 
- Land: Kroatien
 - Region: Istrien
 - Ort: Vodnjan
 - Meerentfernung: 5 km
 
Haben Sie Interesse die schöne Villa zu besitzen?
Nehmen Sie gerne Kontakt mit mir auf!
Ich bin Heiner Reker, Gründer und
                    Geschäftsführer von Reker Immobilien d.o.o. Ich begleite Sie bei Ihrer aufregenden Reise in die Welt der Immobilien in Kroatien.
                    
Gerne organisiere ich persönlich mit meinen qualifizierten Partnern jeden Schritt bei Ihrem rechtssicheren und stressfreien Immobilienkauf in Kroatien.
Füllen Sie das Formular aus und ich melde mich gerne zum gewünschten Zeitpunkt bei Ihnen.
Bis bald
            Exposé mitnehmen?
Laden Sie unser PDF-Exposé herunter und Sie haben die wichtigste Objektdaten & Bilder immer zur Hand
Exposé mitnehmen?
Nehmen Sie Kontakt mit uns auf, ein Exposé schicken wir gerne per E-Mail
Ihre Traum-Immobilie noch nicht gefunden?
Besuchen Sie diese Seiten!



















