PRIVATER POOL & RUHE PUR: EXKLUSIVE NEUBAU-VILLA MIT MEDITERRANEM LEBENSGEFÜHL UND VIEL PRIVATSPHÄRE
Lage & Außenbereich
Diese moderne Villa in ruhiger, grüner Umgebung nahe Šibenik bietet alles, was man sich an der dalmatinischen Küste wünscht. Nur 500 Meter trennen Sie vom Meer. Das Grundstück mit rund 459 m² ist von einer Steinmauer umgeben und durch dichte Bepflanzung geschützt. Drei Parkplätze befinden sich vor dem Haus, im geschlossenen Hof stehen weitere Stellflächen bereit.
Der Außenbereich zeigt sich typisch mediterran. Ein privater Pool mit Außendusche, eine großzügige Terrasse für sonnige Nachmittage und laue Abende, dazu ein pflegeleichter Garten. Alles fügt sich harmonisch zusammen und schafft Raum für Erholung.
Innenraum & Interieur
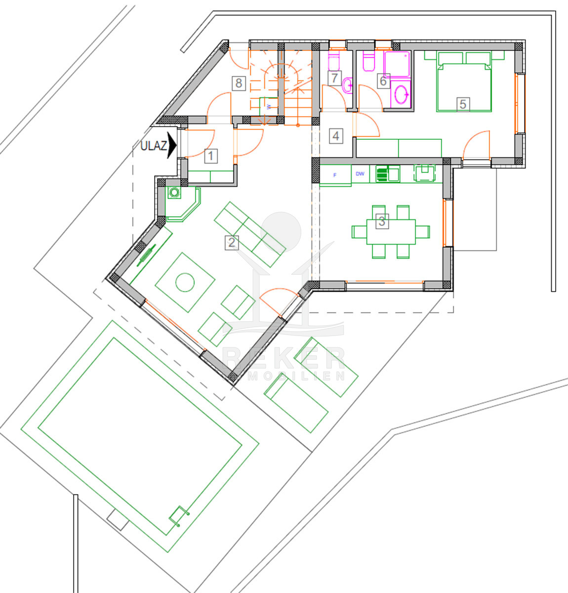
Innen erwartet Sie ein helles, modernes Ambiente mit klarer Architektur und praktischer Aufteilung. Im Erdgeschoss liegen der offene Wohn- und Essbereich mit Küche und Zugang zur Poolterrasse, ein Gäste-WC und ein Schlafzimmer mit eigenem Bad. Im Obergeschoss befinden sich drei weitere Schlafzimmer: eines mit privater Terrasse und Bad en suite, zwei mit gemeinsamer kleiner Terrasse und zusätzlichem Bad. Zwei Zimmer sind bereits möbliert, was einen schnellen Einzug ermöglicht.
Die Wohnfläche von rund 105 m² (Erdgeschoss 75,61 m², Obergeschoss 71,13 m² plus drei Terrassen mit zusammen über 20 m²) bietet viel Platz für Familien oder Feriengäste. Der Neubau aus dem Jahr 2024 steht im Erstbezug. Solide Bauqualität, moderne Ausstattung und klare Formen verbinden sich hier zu einem harmonischen Wohnkonzept, das Ruhe, Komfort und Meeresnähe vereint.
Die Villa erwartet Sie in Šibenik!
- Ort: Šibenik (Stadt)
- Einwohnerzahl: 34.302 (2011)
- Region: Dalmatien-Sibenik
- Autobahnentfernung: ca. 8 km *
- Nächster Flughafen: Split / ca. 50 km *
Immobiliendaten
- Objektart: Haus
- Objekttyp: Villa
- Baujahr: 2024
- ID: 4376
- Kaufpreis: 550.000 €
- Provision: 3,75 % inkl. MwSt. in Kroatien
- Grundstücksgröße: 459 m²
- Wohnfläche: 167 m²
- Anzahl Zimmer: 5
- Anzahl Schlafzimmer: 4
- Anzahl Badezimmer: 3
- Land: Kroatien
- Region: Dalmatien-Sibenik
- Ort: Šibenik
- Meerentfernung: 500 m
Haben Sie Interesse die schöne Villa zu besitzen?
Nehmen Sie gerne Kontakt mit mir auf!
Ich bin Heiner Reker, Gründer und
Geschäftsführer von Reker Immobilien d.o.o. Ich begleite Sie bei Ihrer aufregenden Reise in die Welt der Immobilien in Kroatien.
Gerne organisiere ich persönlich mit meinen qualifizierten Partnern jeden Schritt bei Ihrem rechtssicheren und stressfreien Immobilienkauf in Kroatien.
Füllen Sie das Formular aus und ich melde mich gerne zum gewünschten Zeitpunkt bei Ihnen.
Bis bald
Exposé mitnehmen?
Laden Sie unser PDF-Exposé herunter und Sie haben die wichtigste Objektdaten & Bilder immer zur Hand
Exposé mitnehmen?
Nehmen Sie Kontakt mit uns auf, ein Exposé schicken wir gerne per E-Mail
Ihre Traum-Immobilie noch nicht gefunden?
Besuchen Sie diese Seiten!







































