INVESTIEREN IN RIJEKA: IMMOBILIE MIT POOL, MEERBLICK UND UMBAUGENEHMIGUNG
Lage & Außenbereich
Nur 3 Kilometer vom Zentrum Rijekas entfernt liegt diese besondere Gewerbeimmobilie mit Weitblick aufs Meer. Die Lage verbindet Urbanität mit mediterraner Nähe, das Meer ist nur 700 Meter entfernt. Das Grundstück ist südlich ausgerichtet und erlaubt sonnige Tage, vom Frühstück bis in den Abend hinein. Eine seltene Gelegenheit für alle, die in Rijeka investieren möchten … zentral, aussichtsreich und genehmigt.
Innenraum & Interieur
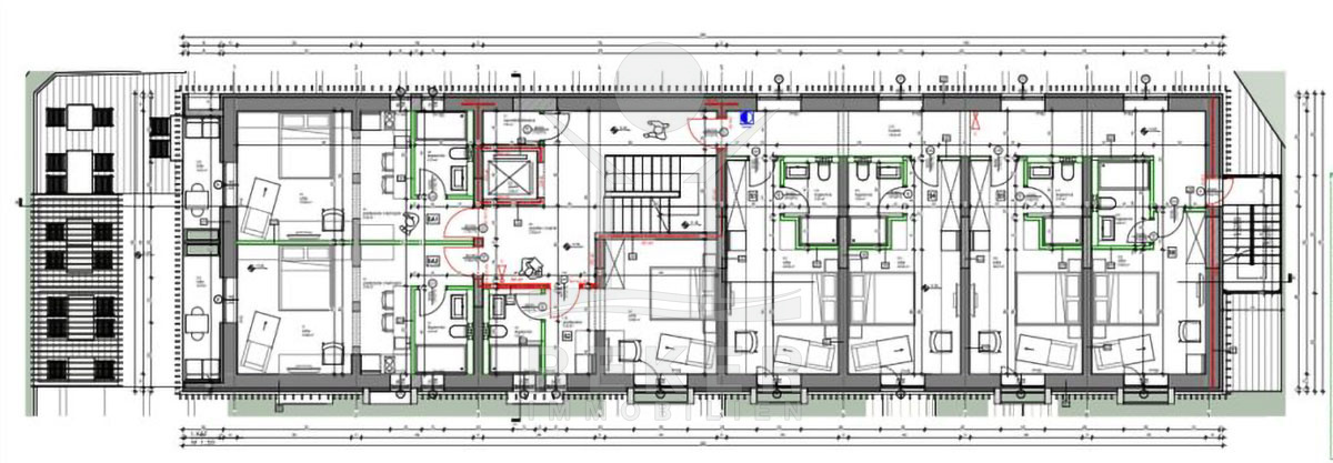
Geplant sind 22 Wohneinheiten auf 297 m² Nutzfläche … die Genehmigung für Umbau und Umwandlung liegt bereits vor. Ein großer Vorteil für alle, die sofort loslegen möchten. Die Struktur eignet sich hervorragend für Boutique-Hotellerie oder Serviced Apartments. Die Basis steht, jetzt braucht es nur noch eine Vision und jemanden, der sie umsetzt.
Das Mehrfamilienhaus erwartet Sie in Rijeka!
- Ort: Rijeka (Stadt)
- Einwohnerzahl: 128.624 (2011)
- Region: Kvarner-Bucht
- Autobahnentfernung: ca. 2 km *
- Nächster Flughafen: Rijeka / ca. 35 km *
Immobiliendaten
- Objektart: Haus
- Objekttyp: Mehrfamilienhaus
- ID: 8938
- Kaufpreis: 1.500.000 €
- Provision: 3,75 % inkl. MwSt. in Kroatien
- Grundstücksgröße: 689 m²
- Wohnfläche: 297 m²
- Land: Kroatien
- Region: Kvarner-Bucht
- Ort: Rijeka
- Lage: Stadtzentrum
- Meerentfernung: 700 m
Haben Sie Interesse das schöne Mehrfamilienhaus zu besitzen?
Nehmen Sie gerne Kontakt mit mir auf!
Ich bin Heiner Reker, Gründer und
Geschäftsführer von Reker Immobilien d.o.o. Ich begleite Sie bei Ihrer aufregenden Reise in die Welt der Immobilien in Kroatien.
Gerne organisiere ich persönlich mit meinen qualifizierten Partnern jeden Schritt bei Ihrem rechtssicheren und stressfreien Immobilienkauf in Kroatien.
Füllen Sie das Formular aus und ich melde mich gerne zum gewünschten Zeitpunkt bei Ihnen.
Bis bald
Exposé mitnehmen?
Laden Sie unser PDF-Exposé herunter und Sie haben die wichtigste Objektdaten & Bilder immer zur Hand
Exposé mitnehmen?
Nehmen Sie Kontakt mit uns auf, ein Exposé schicken wir gerne per E-Mail
Ihre Traum-Immobilie noch nicht gefunden?
Besuchen Sie diese Seiten!




