MEHRFAMILIENHAUS IN BILICE MIT 3 EIGENSTÄNDIGEN APARTMENTS FÜR IHRE INVESTITION
Traumhafte Lage, Nähe zum Meer und zu Sibenik
Das Mehrfamilienhaus befindet sich in Bilice, nur etwa 300 Meter vom Meer entfernt. Es ist ideal gelegen, um die beeindruckende Schönheit Dalmatiens zu genießen. In unmittelbarer Nähe befindet sich das Zentrum von Bilice für Einkaufsmöglichkeiten und das malerische Sibenik ist nur 5 Autominuten entfernt. Mit seinen historischen Sehenswürdigkeiten, Restaurants und Cafés lädt Sibenik dazu ein, die kroatische Kultur zu erleben. Hier werden auch öfters Promis wie Bill Gates, Mark Zuckerberg und weitere Persönlichkeiten gesichtet. Die Nähe zu Skradin, einem beliebten Reiseziel für Prominente, sowie zum Nationalpark Krka bietet zahlreiche Freizeitmöglichkeiten und Abenteuer. Erleben Sie die atemberaubenden Wasserfälle des Parks und tauchen Sie ein in die Natur Dalmatiens.
Investitionsmöglichkeit mit Charakter
Das Anwesen mit 3 Apartments bietet auf einem 670 m² großen Grundstück eine einzigartige Lage. Der mediterran gestaltete Garten und Hof mit einer niedrigen Steinmauer verleihen dem Anwesen einen charmanten Charakter. Das Gebäude erstreckt sich über 3 Etagen mit einer Gesamtwohnfläche von 400 m² und wird mit Klimaanlage ausgestattet. Die letzte Modernisierung fand 2023 statt. Ein Parkplatz steht zur Verfügung. Diese Immobilie verspricht sowohl als Investition als auch als Zuhause viel Potenzial.
Gesellige Stunden im Freien verbringen
Eine überdachte Terrasse vor dem Eingang des Mehrfamilienhauses lädt Bewohner und Gäste ein, gesellige Stunden im Freien zu verbringen und den Tag entspannt ausklingen zu lassen. Die Möglichkeit, im Freien zu verweilen, bietet Raum für Erholung und Gemeinschaft.
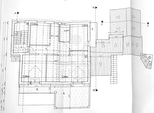
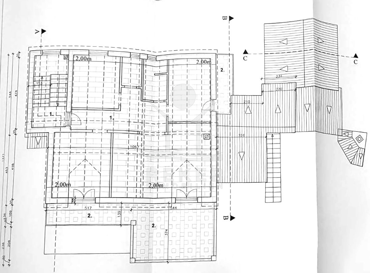
Die Immobilie bietet vielfältige Entwicklungsmöglichkeiten
Errichtet von einem ortsansässigen Bauunternehmer, bewohnt dieser selbst die 1. Etage. Das Erdgeschoss (183 m²) und die Obergeschoss-Wohnung (154 m²) sind bereits ausgebaut, wobei nur das OG bewohnt ist. Das Erdgeschoss wird derzeit als Lager für Kleingeräte genutzt. Das 2. Obergeschoss ist noch nicht ausgebaut und bietet Platz für weitere 4 Zimmer auf ca. 108 m². Zusätzliche Nutzflächen befinden sich im Garagen-Anbau, was eine breite Palette an Nutzungsmöglichkeiten für diesen vielseitigen Raum bietet.
Immobiliendaten
- Objektart: Haus
- Objekttyp: Mehrfamilienhaus
- Baujahr: 2015
- ID: 6450
- Kaufpreis: 360.000 €
- Provision: 3,75 % inkl. MwSt. in Kroatien
- Grundstücksgröße: 668 m²
- Wohnfläche: 400 m²
- Anzahl Zimmer: 10
- Anzahl Schlafzimmer: 4
- Anzahl Badezimmer: 2
- Land: Kroatien
- Region: Dalmatien-Sibenik
- Ort: Bilice
- Meerentfernung: 300 m
- Ortsmitte: 900 m
Haben Sie Interesse das schöne Mehrfamilienhaus zu besitzen?
Nehmen Sie gerne Kontakt mit mir auf!
Ich bin Heiner Reker, Gründer und
Geschäftsführer von Reker Immobilien d.o.o. Ich begleite Sie bei Ihrer aufregenden Reise in die Welt der Immobilien in Kroatien.
Gerne organisiere ich persönlich mit meinen qualifizierten Partnern jeden Schritt bei Ihrem rechtssicheren und stressfreien Immobilienkauf in Kroatien.
Füllen Sie das Formular aus und ich melde mich gerne zum gewünschten Zeitpunkt bei Ihnen.
Bis bald
Exposé mitnehmen?
Laden Sie unser PDF-Exposé herunter und Sie haben die wichtigste Objektdaten & Bilder immer zur Hand
Exposé mitnehmen?
Nehmen Sie Kontakt mit uns auf, ein Exposé schicken wir gerne per E-Mail
Ihre Traum-Immobilie noch nicht gefunden?
Besuchen Sie diese Seiten!






















