LUXUS-WOHNUNG IN VOLOSKO: 3 ZIMMER, POOL UND AUSSENKÜCHE
Fabelhafte Lage
Lediglich etwa 3 km vom Ortszentrum Opatijas entfernt finden Sie Ihren neuen Wohntraum. Für Ihr Auto steht ein Carport-Stellplatz zur Verfügung. Weitere Fahrzeuge können ggf. kostenpflichtig auf der Straße oder auf ausgewiesenen Stellplätzen geparkt werden.
Ein Rückzugsort zum Verlieben
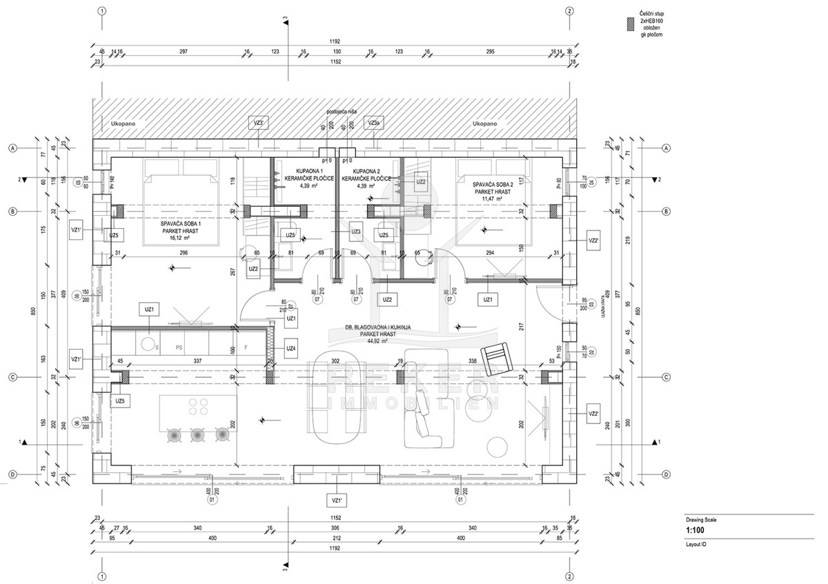
Diese spektakuläre Luxuswohnung befindet sich im Erdgeschoss und verfügt über eine großzügige Wohnfläche von ca. 103 m². Sie wird 2023 komplett renoviert und voraussichtlich im Mai 2023 bezugsfertig sein. Die gesamte Länge des Zauns (ca. 18 Meter) wurde mit einem Glaszaun anstelle eines Metallzauns versehen, um die Aussicht noch besser zur Geltung zu bringen. Tauchen Sie im ca. 17 m² großen, beheizbaren Pool in Ihre neue Lebensfreude ein und genießen Sie puren Genuss in Vollendung auf der überdachten Terrasse, neben der fantastischen Außenküche mit Grill.
2 traumhafte Schlafzimmer
Sie finden in dieser Luxus-Wohnung einen geräumigen Wohnbereich mit Essplatz, die Küche und 2 Schlafzimmer mit jeweils eigenen Bädern. Die gesamte Wohnung ist klimatisiert und stilvoll möbliert. Fast alle Möbel stammen von der spanischen Firma Kave Home. Im Jahr 2023 wurde eine hochwertigere Schreinerküche eingebaut.
Die Erdgeschosswohnung erwartet Sie in Opatija!
- Ort: Opatija (Stadt)
- Einwohnerzahl: 11.659 (2011)
- Region: Kvarner-Bucht
- Autobahnentfernung: ca. 4 km *
- Nächster Flughafen: Rijeka / ca. 40 km *
Immobiliendaten
- Objektart: Wohnung
- Objekttyp: Erdgeschosswohnung
- ID: 4929
- Kaufpreis: 850.000 €
- Provision: 3,75% inkl. MwSt. in Kroatien
- Wohnfläche: 103 m²
- Anzahl Zimmer: 3
- Anzahl Schlafzimmer: 2
- Anzahl Badezimmer: 2
- Land: Kroatien
- Region: Kvarner-Bucht
- Ort: Opatija
- Meerentfernung: 250 m
- Ortsmitte: 3 km
Haben Sie Interesse die schöne Erdgeschosswohnung zu besitzen?
Nehmen Sie gerne Kontakt mit mir auf!
Ich bin Heiner Reker, Gründer und
Geschäftsführer von Reker Immobilien d.o.o. Ich begleite Sie bei Ihrer aufregenden Reise in die Welt der Immobilien in Kroatien.
Gerne organisiere ich persönlich mit meinen qualifizierten Partnern jeden Schritt bei Ihrem rechtssicheren und stressfreien Immobilienkauf in Kroatien.
Füllen Sie das Formular aus und ich melde mich gerne zum gewünschten Zeitpunkt bei Ihnen.
Bis bald
Exposé mitnehmen?
Laden Sie unser PDF-Exposé herunter und Sie haben die wichtigste Objektdaten & Bilder immer zur Hand
Exposé mitnehmen?
Nehmen Sie Kontakt mit uns auf, ein Exposé schicken wir gerne per E-Mail
Ihre Traum-Immobilie noch nicht gefunden?
Besuchen Sie diese Seiten!










