EIN GARTEN, DER MEERBLICK HAT: ERDGESCHOSSWOHNUNG MIT 54 M² GRÜNFLÄCHE IN VODICE
Lage & Außenbereich
Diese Erdgeschosswohnung gehört zu einem neuen Gebäude mit nur vier Einheiten in Vodice. Die Umgebung wirkt angenehm ruhig. Einfamilienhäuser und moderne Villen prägen das Wohngebiet. Das Haus umfasst drei Etagen und befindet sich etwa 1 km vom Meer entfernt. Durch die leichte Hanglage genießen Sie einen schönen Blick auf das Meer. Praktisch im Alltag: Ein eigener Parkplatz direkt vor dem Gebäude gehört zur Wohnung.
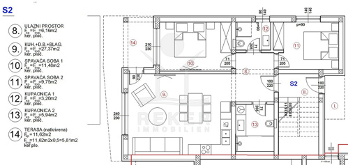
Direkt vor der Wohnung erwartet Sie eine überdachte Terrasse mit 11,62 m². Von hier aus gelangen Sie in den 54 m² großen, angelegten Garten. Eine Außenfläche, die den Wohnbereich spürbar erweitert. Hier verbringen Sie entspannte Stunden im Freien oder treffen sich mit Familie und Freunden. Die Südwest-Ausrichtung bringt viel Sonne und sorgt für eine freundliche Wohnstimmung.
Innenraum & Interieur
Im Inneren stehen Ihnen 63,90 m² Wohnfläche zur Verfügung. Der Grundriss beginnt mit einem Flur. Von hier aus erreichen Sie zwei Schlafzimmer und zwei Badezimmer. Das Wohnzimmer verbindet Küche und Essbereich zu einem offenen Wohnraum. Von dort gelangen Sie direkt auf die Terrasse. Die Wohnung wird vollständig möbliert und ausgestattet verkauft.
Auch die Ausstattung überzeugt. In allen Wohnräumen wurden Keramikfliesen in Parkettoptik verlegt. Die Badezimmer sind mit hellen Fliesen ausgestattet. Zusätzlich sorgt dort eine elektrische Fußbodenheizung für Komfort. Klimaanlagen im Wohnzimmer und in beiden Schlafzimmern regulieren die Temperaturen. Moskitonetze an allen Öffnungen erhöhen den Wohnkomfort. Im Wohnzimmer befindet sich ein TV-/SAT-Anschluss. Jede Wohnung im Gebäude besitzt außerdem einen eigenen Schornstein.
Die Erdgeschosswohnung erwartet Sie in Vodice!
- Ort: Vodice (Stadt)
- Einwohnerzahl: 8.875 (2011)
- Region: Dalmatien-Sibenik
- Autobahnentfernung: ca. 16 km *
- Nächster Flughafen: Zadar / ca. 62 km *
Immobiliendaten
- Objektart: Wohnung
- Objekttyp: Erdgeschosswohnung
- Baujahr: 2026
- ID: 9666
- Kaufpreis: 225.000 €
- Provision: 3,75 % inkl. MwSt. in Kroatien
- Wohnfläche: 75 m²
- Gartenfläche: 54 m²
- Anzahl Zimmer: 3
- Anzahl Schlafzimmer: 2
- Anzahl Badezimmer: 2
- Land: Kroatien
- Region: Dalmatien-Sibenik
- Ort: Vodice
- Meerentfernung: 1 km
Haben Sie Interesse die schöne Erdgeschosswohnung zu besitzen?
Nehmen Sie gerne Kontakt mit mir auf!
Ich bin Heiner Reker, Gründer und
Geschäftsführer von Reker Immobilien d.o.o. Ich begleite Sie bei Ihrer aufregenden Reise in die Welt der Immobilien in Kroatien.
Gerne organisiere ich persönlich mit meinen qualifizierten Partnern jeden Schritt bei Ihrem rechtssicheren und stressfreien Immobilienkauf in Kroatien.
Füllen Sie das Formular aus und ich melde mich gerne zum gewünschten Zeitpunkt bei Ihnen.
Bis bald
Exposé mitnehmen?
Laden Sie unser PDF-Exposé herunter und Sie haben die wichtigste Objektdaten & Bilder immer zur Hand
Exposé mitnehmen?
Nehmen Sie Kontakt mit uns auf, ein Exposé schicken wir gerne per E-Mail
Ihre Traum-Immobilie noch nicht gefunden?
Besuchen Sie diese Seiten!














































