ERDGESCHOSS NEUBAUWOHNUNG IN 1. REIHE MIT UNVERBAUBAREM MEERBLICK IN VODICE
Neubauwohnung nur wenige Schritte vom Strand entfernt in Vodice
An diesem idyllischen Ort entsteht eine moderne Neubauwohnung direkt neben dem Strand in Vodice. Mit nur 40 Metern Entfernung zum Wasser genießen Sie hier eine hervorragende Lage für entspannte Tage am Strand. Das Zentrum von Vodice mit seinen vielfältigen Restaurants und Ausgehmöglichkeiten ist ebenfalls in unmittelbarer Nähe. Von hier aus können Sie die Umgebung erkunden, Sehenswürdigkeiten wie Sibenik, Zadar, Primosten und Split besichtigen und die Geschichte Kroatiens kennenlernen. Erleben Sie aufregende Abenteuer und unvergessliche Momente in dieser einzigartigen Umgebung.
Kompakte Wohlfühloase mit Terrasse
In Kürze entsteht im Erdgeschoss eines geplanten Neubauprojekts eine moderne und luxuriöse Wohnung. Das Gesamtprojekt umfasst den Bau von zwei Mehrfamilienhäusern mit insgesamt sieben exklusiven Apartments. Der Baubeginn ist für März 2024 geplant, und die Neubauwohnungen werden den höchsten Standards entsprechen, um Ihnen ein komfortables und zeitgemäßes Zuhause zu bieten. Ein Stellplatz steht zur Verfügung.
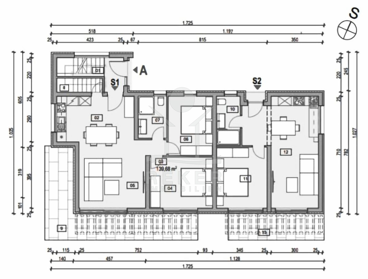
Das Apartment mit 62 m² Wohnfläche bietet einen einladenden Eingangsbereich und einen offenen Grundriss mit Wohn-, Ess- und Küchenzimmer. Ein Schlafzimmer und ein Badezimmer vervollständigen das gemütliche Zuhause. Genießen Sie entspannte Stunden auf der Terrasse und lassen Sie den Alltag hinter sich.
Die Erdgeschosswohnung erwartet Sie in Vodice!
- Ort: Vodice (Stadt)
- Einwohnerzahl: 8.875 (2011)
- Region: Dalmatien-Sibenik
- Autobahnentfernung: ca. 16 km *
- Nächster Flughafen: Zadar / ca. 62 km *
Immobiliendaten
- Objektart: Wohnung
- Objekttyp: Erdgeschosswohnung
- Baujahr: 2024
- ID: 6698
- Kaufpreis: auf Anfrage €
- Provision: 3,75 % inkl. MwSt. in Kroatien
- Wohnfläche: 62 m²
- Anzahl Zimmer: 2
- Anzahl Schlafzimmer: 1
- Anzahl Badezimmer: 1
- Land: Kroatien
- Region: Dalmatien-Sibenik
- Ort: Vodice
- Meerentfernung: 40 m
- Ortsmitte: 1500 m
Haben Sie Interesse die schöne Erdgeschosswohnung zu besitzen?
Nehmen Sie gerne Kontakt mit mir auf!
Ich bin Heiner Reker, Gründer und
Geschäftsführer von Reker Immobilien d.o.o. Ich begleite Sie bei Ihrer aufregenden Reise in die Welt der Immobilien in Kroatien.
Gerne organisiere ich persönlich mit meinen qualifizierten Partnern jeden Schritt bei Ihrem rechtssicheren und stressfreien Immobilienkauf in Kroatien.
Füllen Sie das Formular aus und ich melde mich gerne zum gewünschten Zeitpunkt bei Ihnen.
Bis bald
Exposé mitnehmen?
Laden Sie unser PDF-Exposé herunter und Sie haben die wichtigste Objektdaten & Bilder immer zur Hand
Exposé mitnehmen?
Nehmen Sie Kontakt mit uns auf, ein Exposé schicken wir gerne per E-Mail
Ihre Traum-Immobilie noch nicht gefunden?
Besuchen Sie diese Seiten!



















