INSEL VIR: NEUBAU IM ERDGESCHOSS MIT TERRASSE IN KURZER DISTANZ ZUM MEER
Lage & Außenbereich
Das Neubauprojekt befindet sich auf der Insel Vir, in ruhiger Wohnlage und nur wenige Schritte vom Meer entfernt. Rund 200 m bis zur Küste schaffen Nähe, ohne den Wohnbereich zu beeinträchtigen. Die Nachbarschaft ist von kleiner Wohnbebauung geprägt. Insgesamt entsteht ein zurückgezogener Eindruck. Passend für Käufer, die Ruhe suchen und zugleich Wert auf eine klare Wohnstruktur legen.
Das Gebäude stammt aus dem Baujahr 2025. Die Bauarbeiten sind abgeschlossen. Das Wohnhaus verteilt sich auf drei Etagen. Pro Etage ist jeweils nur eine Wohneinheit vorgesehen. Erdgeschoss, Obergeschoss und zweites Obergeschoss sind klar voneinander getrennt. Im zweiten Obergeschoss steht zusätzlich eine private Dachterrasse zur Verfügung. Stellplätze befinden sich vor dem Haus und sind bequem erreichbar.
Innenraum & Interieur
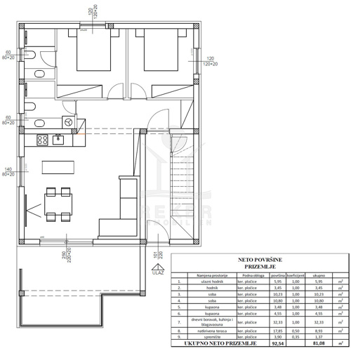
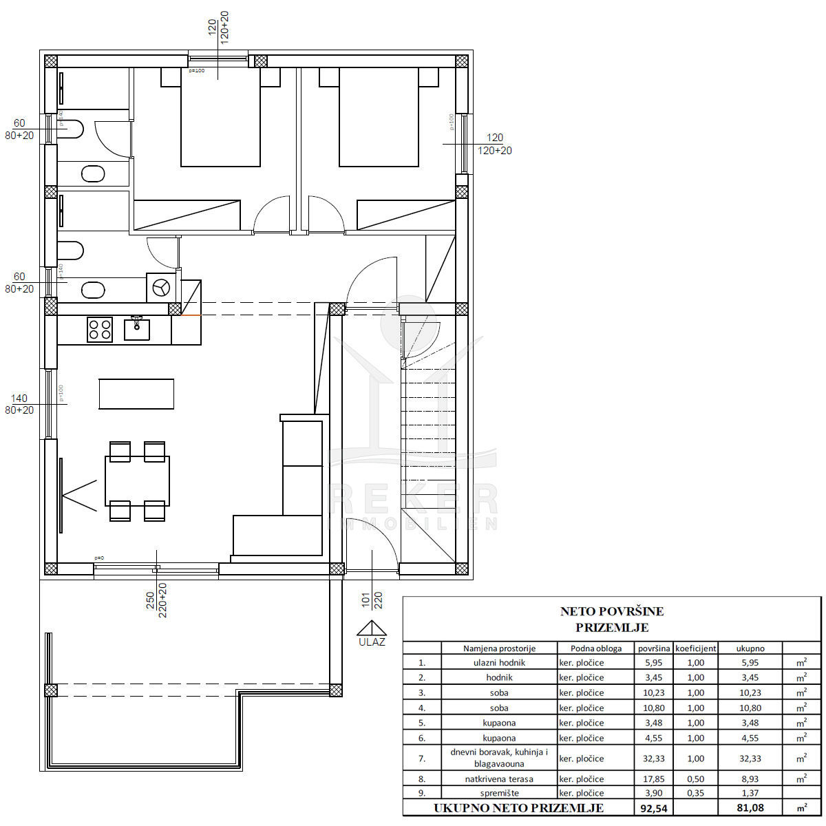
Der Mittelpunkt der Wohnung ist der offene Wohnraum mit 33 m². Kochen, Essen und Wohnen greifen hier fließend ineinander. Große Öffnungen verbinden den Innenbereich direkt mit der überdachten Terrasse. Ein offenes Wohngefühl. Das Master-Schlafzimmer bietet ein privates Badezimmer. Ein weiteres Badezimmer ergänzt die Raumaufteilung sinnvoll. Ein Abstellraum schafft Ordnung im Alltag. Die Wohnung wird unmöbliert übergeben.
Klimatisierung in allen Räumen sowie elektrische Fußbodenheizung in den Badezimmern sorgen für spürbaren Komfort. Elektrische Jalousien, Moskitonetze, großformatige Keramikfliesen im Format 90 × 90 mm, Travertin, Gebrite-Fliesen, Sanitärkeramik von Grohe, maßgefertigte Badezimmermöbel und LED-Ambientebeleuchtung in allen Räumen unterstreichen den hochwertigen Ausbaustandard. Zur Wohnung gehört ein 12,5 m² großer Außenstellplatz direkt vor dem Haus.
Die Erdgeschosswohnung erwartet Sie in Vir!
- Ort: Vir (Stadt)
- Einwohnerzahl: 1.600 (2011)
- Region: Dalmatien-Zadar
- Insel: Vir
- Autobahnentfernung: ca. 38 km *
- Nächster Flughafen: Zadar / ca. 36 km *
Immobiliendaten
- Objektart: Wohnung
- Objekttyp: Erdgeschosswohnung
- Baujahr: 2025
- ID: 9539
- Kaufpreis: 320.000 €
- Provision: 3,75 % inkl. MwSt. in Kroatien
- Wohnfläche: 94 m²
- Anzahl Zimmer: 3
- Anzahl Schlafzimmer: 2
- Anzahl Badezimmer: 2
- Land: Kroatien
- Region: Dalmatien-Zadar
- Ort: Vir
- Meerentfernung: 200 m
Haben Sie Interesse die schöne Erdgeschosswohnung zu besitzen?
Nehmen Sie gerne Kontakt mit mir auf!
Ich bin Heiner Reker, Gründer und
Geschäftsführer von Reker Immobilien d.o.o. Ich begleite Sie bei Ihrer aufregenden Reise in die Welt der Immobilien in Kroatien.
Gerne organisiere ich persönlich mit meinen qualifizierten Partnern jeden Schritt bei Ihrem rechtssicheren und stressfreien Immobilienkauf in Kroatien.
Füllen Sie das Formular aus und ich melde mich gerne zum gewünschten Zeitpunkt bei Ihnen.
Bis bald
Exposé mitnehmen?
Laden Sie unser PDF-Exposé herunter und Sie haben die wichtigste Objektdaten & Bilder immer zur Hand
Exposé mitnehmen?
Nehmen Sie Kontakt mit uns auf, ein Exposé schicken wir gerne per E-Mail
Ihre Traum-Immobilie noch nicht gefunden?
Besuchen Sie diese Seiten!




















