ERDGESCHOSSWOHNUNG MIT 152 M² PRIVATER GRÜNFLÄCHE UND SÜDWEST-AUSRICHTUNG
Lage & Außenbereich
In Sukošan, einem beliebten Küstenort in Dalmatien, entsteht ein modernes Wohnhaus, nur 250 Meter vom Meer entfernt. Die südwestliche Ausrichtung sorgt für helle Räume und angenehme Sonnenstunden am Nachmittag. Das Umfeld ist ruhig, grün und vermittelt ein Gefühl von Leichtigkeit. Ein Ort, an dem Wohnen und Erholung selbstverständlich zusammenfinden.
Das kompakte Gebäude umfasst sechs Wohneinheiten, jeweils zwei pro Etage. Klare Linien und moderne Architektur bestimmen den Stil. Der Bau schreitet planmäßig voran, die Fertigstellung ist bis spätestens 15. März 2026 vorgesehen. Jede Wohnung verfügt über einen eigenen Parkplatz direkt vor dem Haus.
Innenraum & Interieur
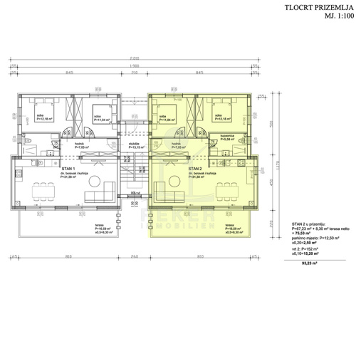
Die Erdgeschosswohnung auf der rechten Seite überzeugt durch einen großzügigen Grundriss mit 67,23 m² Innenraumfläche. Der offene Wohn- und Essbereich bildet den Mittelpunkt, ergänzt durch zwei Schlafzimmer und ein Badezimmer mit Fußbodenheizung. Hochwertige Marazzi-Keramik und maßgefertigte Innenausbauten unterstreichen das klare Design und den gehobenen Anspruch. Aluminiumfenster mit Dreifachverglasung, Daikin-Inverter-Klimaanlagen in allen Räumen und eine durchdachte Wärmedämmung schaffen ein komfortables Wohnklima zu jeder Jahreszeit. Für Sicherheit und Komfort sorgen eine einbruchsichere Eingangstür, eine Video-Türsprechanlage und elektrische Rollläden.
Von der 16,59 m² großen Terrasse öffnet sich der Zugang zu einem beeindruckenden Garten mit 152 m² Fläche … eine außergewöhnliche Größe für eine Wohnung dieser Kategorie. Der Außenbereich bietet Raum für Lounge, Essplatz oder Gestaltung nach eigenen Vorstellungen. Ein privater Rückzugsort, der den Wohnraum wirkungsvoll erweitert.
Die Erdgeschosswohnung erwartet Sie in Sukošan!
- Ort: Sukošan (Gemeinde)
- Einwohnerzahl: 4.583 (2011)
- Region: Dalmatien-Zadar
- Autobahnentfernung: ca. 15 km *
- Nächster Flughafen: Zadar / ca. 11 km *
Immobiliendaten
- Objektart: Wohnung
- Objekttyp: Erdgeschosswohnung
- Baujahr: 2026
- ID: 9462
- Kaufpreis: 326.305 €
- Provision: 3,75 % inkl. MwSt. in Kroatien
- Wohnfläche: 83 m²
- Gartenfläche: 152 m²
- Anzahl Zimmer: 3
- Anzahl Schlafzimmer: 2
- Anzahl Badezimmer: 1
- Land: Kroatien
- Region: Dalmatien-Zadar
- Ort: Sukošan
- Meerentfernung: 250 m
Haben Sie Interesse die schöne Erdgeschosswohnung zu besitzen?
Nehmen Sie gerne Kontakt mit mir auf!
Ich bin Heiner Reker, Gründer und
Geschäftsführer von Reker Immobilien d.o.o. Ich begleite Sie bei Ihrer aufregenden Reise in die Welt der Immobilien in Kroatien.
Gerne organisiere ich persönlich mit meinen qualifizierten Partnern jeden Schritt bei Ihrem rechtssicheren und stressfreien Immobilienkauf in Kroatien.
Füllen Sie das Formular aus und ich melde mich gerne zum gewünschten Zeitpunkt bei Ihnen.
Bis bald
Exposé mitnehmen?
Laden Sie unser PDF-Exposé herunter und Sie haben die wichtigste Objektdaten & Bilder immer zur Hand
Exposé mitnehmen?
Nehmen Sie Kontakt mit uns auf, ein Exposé schicken wir gerne per E-Mail
Ihre Traum-Immobilie noch nicht gefunden?
Besuchen Sie diese Seiten!


















